We bring market insights, news and lifestyle updates direct to your inbox.

Sign up to our newsletters

See the properties 
defining luxury in the 
Luxury Homes magazine

Property main details

6
3
6

Home For Sale

  • Sold
  • Under Offer
  • House

Specifications

  • Property Type
    House
  • Land
    2.96 ha

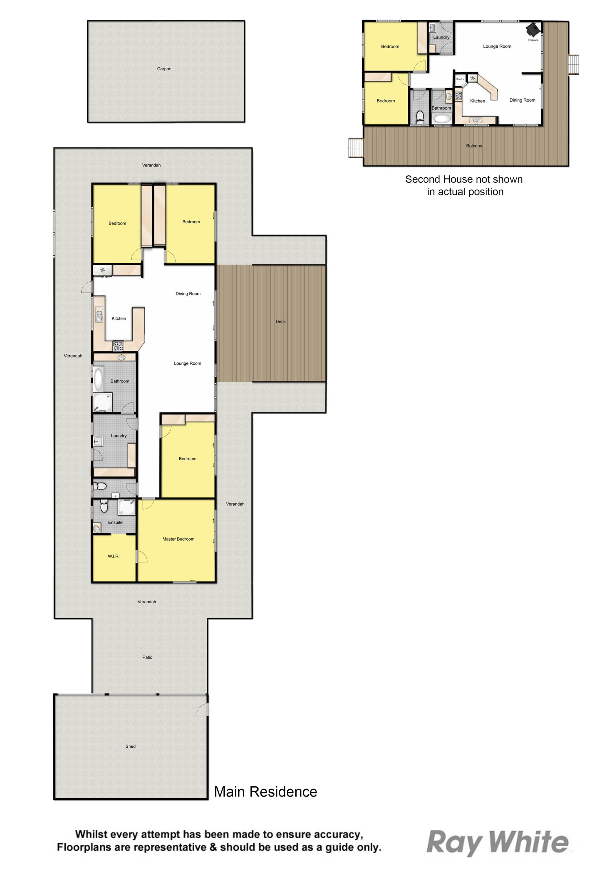
2 Homes For The Price Of 1!

Offering 2 homes plus a massive shed all on over 7 private acres bordering the fabulous Cedar Creek.

Main House:

The main family home is located well off the road at the end of a beautiful tree lined bitumen driveway leading you to the large Balinese infused low-set log family home. The inviting floor plan offers 4 large bedrooms all with built-ins, main with ensuite and walk-in robe, huge main bathroom, massive air-conditioned open plan living area adjacent to the brand new modern kitchen which offers soft close drawers, gas cook-top and oven, extra wide bench-tops, large sliding pantry and a double fridge space.

Leading out from the open plan living area all your outdoor entertainment occasions will become a breeze. The huge East facing 7m x 7.2m covered deck blends effortlessly with the immediate surrounds giving you a sense of elevation, pure relaxation and being at one with nature. Your family and friends will be absolutely envious of your slice of heaven; every day will be like a holiday.

With the combination of the newly laid imported 600mm x 600mm porcelain tiles throughout, stunning exposed timber feature beams, raked timber ceilings, freshly painted, Balinese fans, new carpet and the brand new modern kitchen, this property has it all, leaving you to enjoy life as it should be.

The wide full length verandah's create a relaxed environment embracing the immediate feature gardens, child friendly lawns, mature tropical gardens and path ways leading you to various hidden gardens and sitting areas, be at one with nature anytime anywhere.

2nd House:

The 2nd house is registered with council and offers 2 bedrooms, 1 bathroom with a separate toilet, open plan living area with a fireplace, country kitchen and an East facing covered deck overlooking the mesmerizing and absolutely peaceful view of Cedar Creek. The land surrounding the 2nd house is child friendly and easy maintenance with room for extending and a shed.

For the hobbyist or handy man there is a huge powered 3 bay shed with a double carport which is attached also to the house, this is perfect for storage or the ultimate man cave.

The 7 acres has been cleverly landscaped with a tropical theme surrounding the main house and natural low maintenance bushland on the outer edge. There is even room for a couple of ponies, chooks and goats.

Additional property info:
- 3 bay carport attached to the main house with additional car parking
- 4 built-in bedrooms, 3 with access outside
- Crimsafe
- Electric gates with key pad and remotes
- Horse stables
- Chook pen
- 2 phone lines
- Gas hot water for both houses
- Tank water
- Bore (not connected)
- Sealed driveway
- Feature ponds and water falls
- Fenced rear paddock
- Main house yard dog fenced
- 2nd house currently being rented, receiving $200 per week
- This property has 2 registered street addresses, extremely rare
- The famous and secretive Cedar Creek falls is under a 10 minute walk

If you are looking for something a little unique, hidden from the outside world or the rarity of dual living, then this is it, "Lanchawin" One of Cedar Creeks finest.

Get in touch

We'd love to hear from you

If you're interested in looking at properties around the area, or want the latest information on the market in your neighbourhood, we'd love to hear from you. 

948 and 950 Cedar Creek Road Cedar Creek 4520, Queensland
Back to top