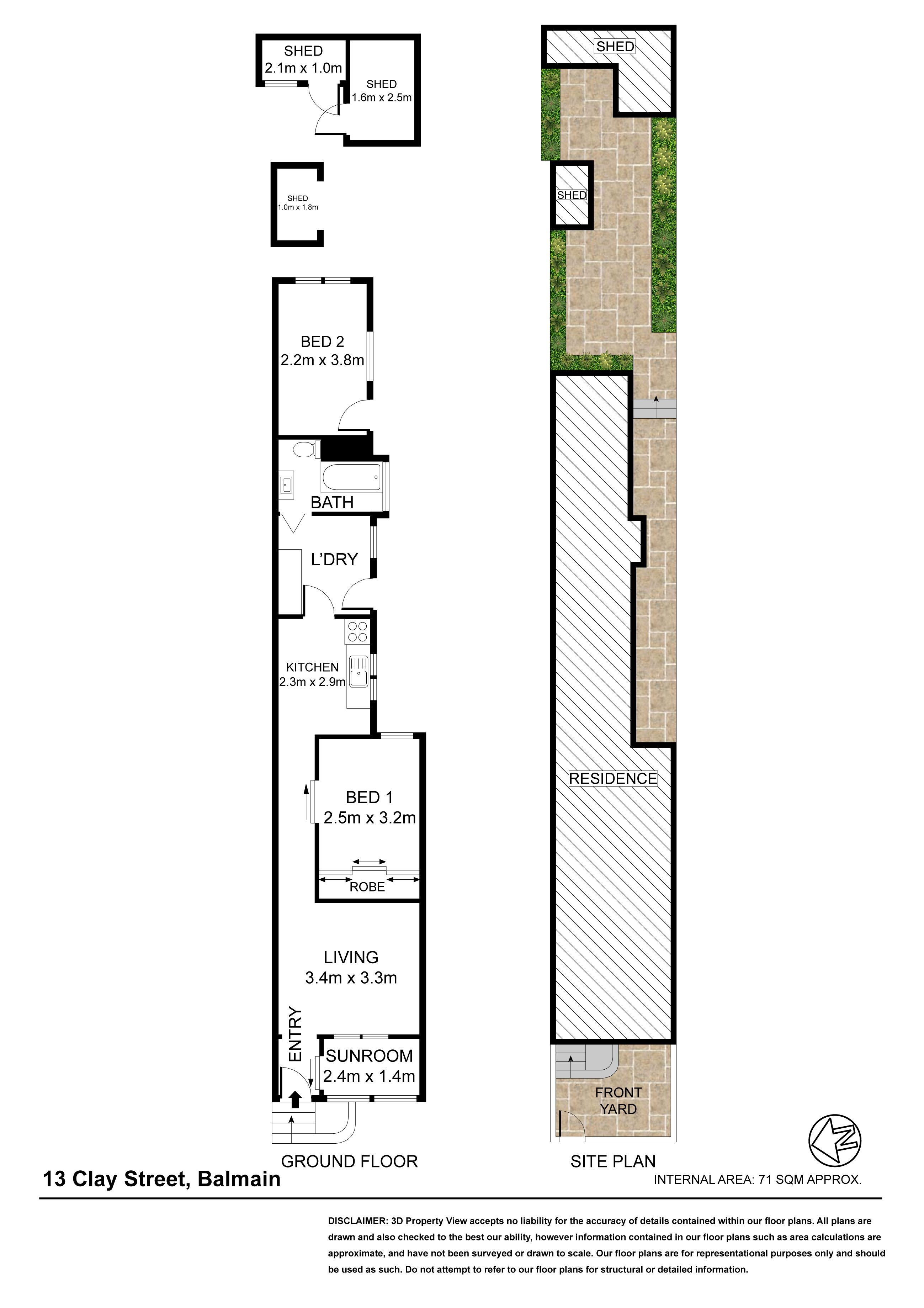
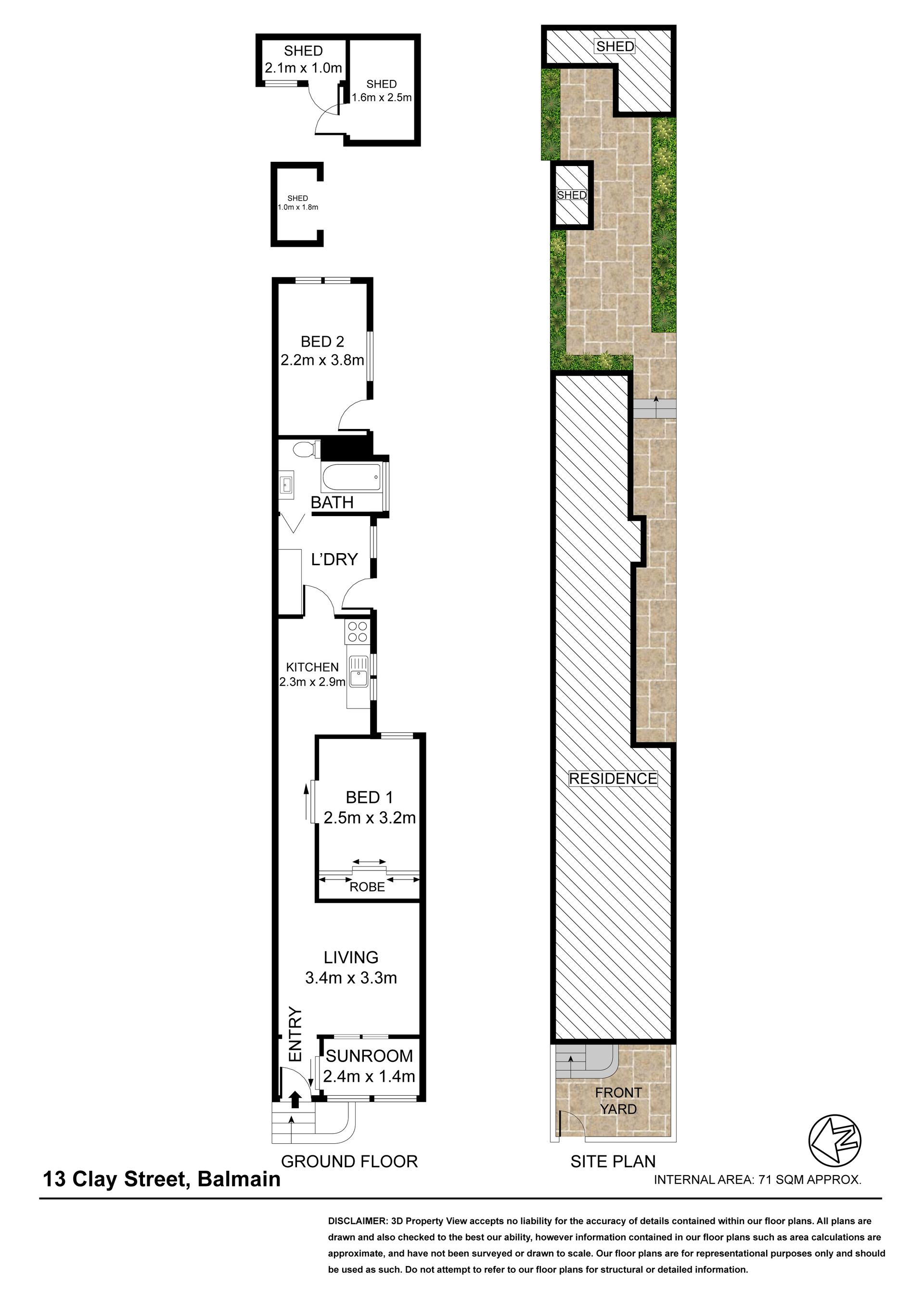
When they say renovate or detonate, this is what they are talking about. Offered for the first time in over fifty years, this charming single-level terrace in a quiet Balmain cul-de-sac is ready for a new lease on life. Build your dream home (STCA) and enjoy the ultimate lifestyle with endless dining options, waterside parks and village amenities all within easy reach.
- Ideal entry-level home for first home buyers, builders or investors - Potential to add value and add 2nd storey (STCA) - Flexible floor plan with 1-2 bedrooms and living areas - Good-sized yard offering privacy and plenty of light - Quiet cul-de-sac location convenient to amenities - Easy walk to Balmain and Rozelle villages, schools and parks - Footsteps to buses and the planned Sydney Metro rail network
Get in touch
We'd love to hear from you
If you're interested in looking at properties around the area, or want the latest information on the market in your neighbourhood, we'd love to hear from you.