We bring market insights, news and lifestyle updates direct to your inbox.

Sign up to our newsletters

See the properties 
defining luxury in the 
Luxury Homes magazine

Property main details

5
3
4

Home For Sale

$1,675,000
  • Under Offer
  • House

Specifications

  • Property Type
    House
  • Building
    280 m2
  • Land
    2023 m2

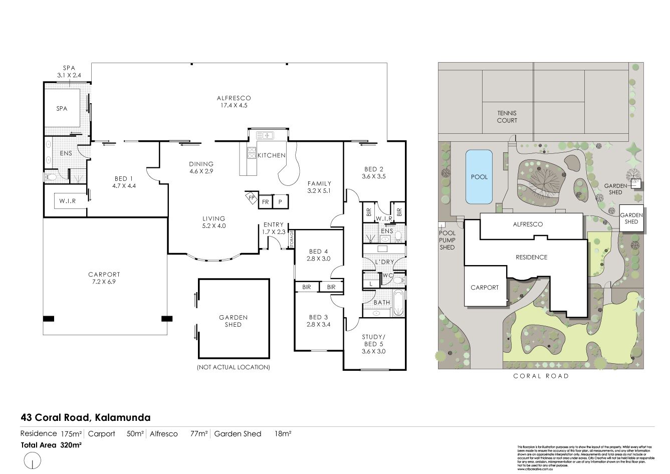
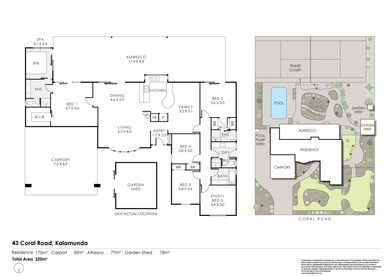
Magnificent Family Estate With Pool, Tennis Court & Dual Masters

Some homes grow with their families, evolving over time into something truly special - and this expansive Kalamunda residence is exactly that.
Tucked away in a quiet cul-de-sac, this impressive five-bedroom, three-bathroom home began its life in the late 80s/early 90s and has since been thoughtfully extended to create exceptional flexibility for large families, multi-generational living or those who love to entertain.

Inside the home unfolds with warmth and space. Two master suites offer a rare level of comfort and versatility, with the newer master wing presenting as a private retreat complete with walk-in robe, elegant ensuite and direct access to a four-six person spa that flows effortlessly to the pool area.
The remaining bedrooms are generously sized and supported by a family bathroom.

Living zones provide room for every stage of family life, from formal lounge and dining to a relaxed family room off the kitchen. Bamboo flooring adds cohesion and character, while evaporative air conditioning ensures comfort year-round.
The kitchen enjoys pride of place, overlooking the pool, tennis court and gardens with Corian benchtops and stainless-steel appliances making it both a functional and inviting space.

Step outside and the property reveals its true personality... A home built for gatherings, celebrations and long summer days.

Contained within the massive 2023 sqm (zoned R10 potential subdivision) block lies a sparkling below ground pool, full-size tennis court and vast paved entertaining areas are framed by a large vaulted patio that spans to the rear of the home - a spectacular setting for hosting family and friends.

Features you'll love:

- Five bedrooms, three bathrooms
- Two master bedrooms, each with ensuite
- Renovated bathroom areas
- Evaporative air conditioning
- Bamboo flooring
- Spacious formal and informal living zones
- Corian kitchen benchtops + stainless steel appliances
- Below-ground pool
- Full-size tennis court
- Four-six person spa with poolside access
- Huge vaulted outdoor entertaining area
- Double carport + abundant parking
- 6kw Solar Panels
- Fully fenced with attractive period-style brick and iron fencing
- Reticulated gardens
- Quiet cul-de-sac location close to Kalamunda town centre... Plus so much more!

This is a residence that offers space, privacy, versatility and lifestyle in equal measure, all just moments from the heart of Kalamunda.

For more information, please contact Nigel Aldridge on 0411 757 738 or Chelsea Owen on 0459 117 854, we look forward to welcoming you home.

Get in touch

We'd love to hear from you

If you're interested in looking at properties around the area, or want the latest information on the market in your neighbourhood, we'd love to hear from you. 

43 Coral Road Kalamunda 6076, Western Australia
Back to top