We bring market insights, news and lifestyle updates direct to your inbox.

Sign up to our newsletters

See the properties 
defining luxury in the 
Luxury Homes magazine

Property main details

2

Commercial

  • Sold For $630,000
  • Medical/Consulting

Specifications

  • Property Type
    Medical/Consulting
  • Building
    165 m2
  • Land
    189 m2

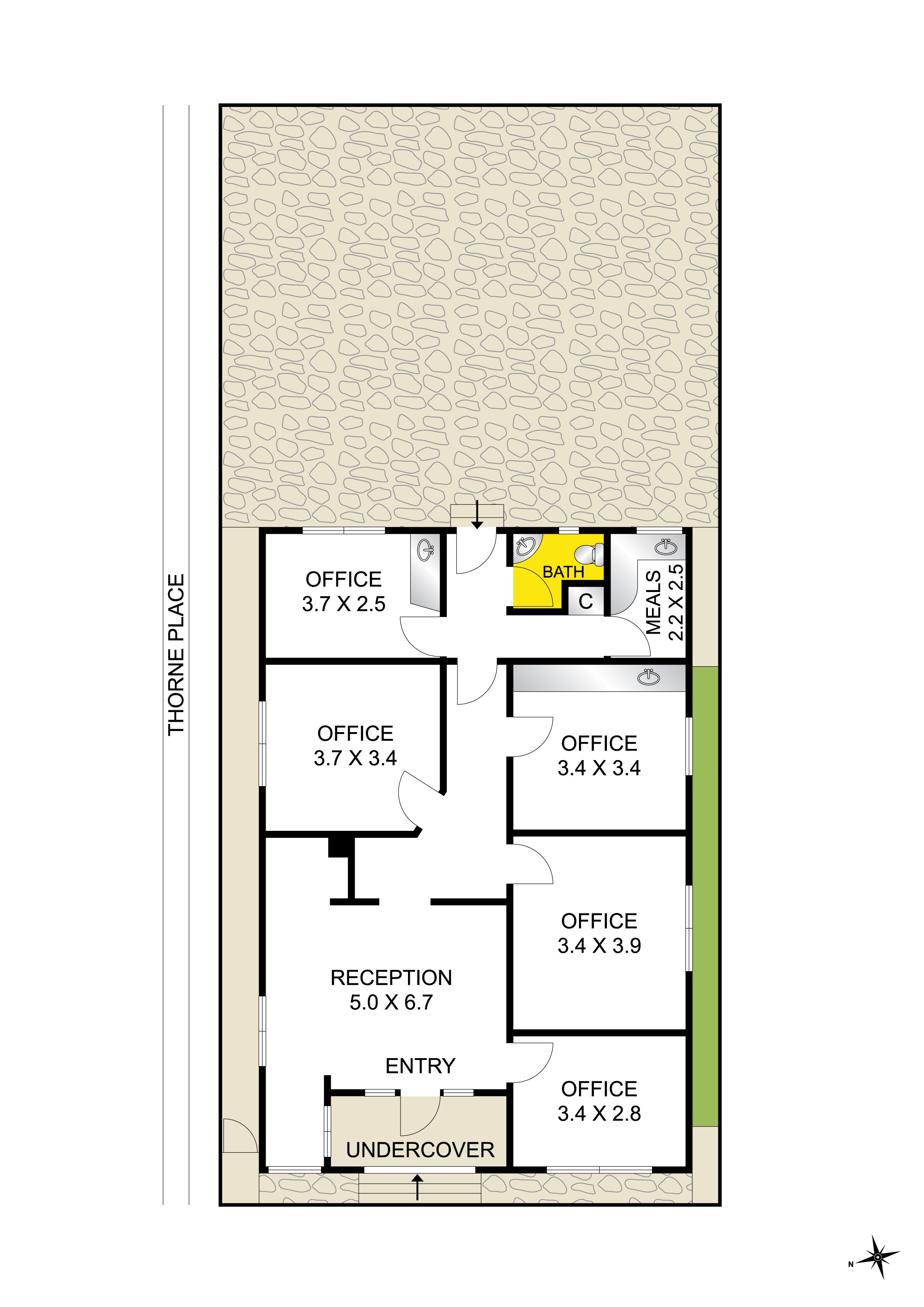
Versatile Inner City Opportunity

A centrally located commercial opportunity, offering a multitude of possibilities to invest or occupy in this prime CBD locale.

• High Exposure Street Frontage
• Spacious Reception Area
• 5 Consulting Rooms/Offices
• Kitchen Area
• Seperate Toilet
• Ducted Heating & Cooling
• Rear On-Site Car Parking (2 Cars)

Adjacent the University Hospital and in the heart of the medical catchment precinct, only a short stroll to central Geelong and the Waterfront.

Contact Adam Natonewski on 0419 611 121 for further details or to arrange your private viewing.

All information about the property has been provided to Ray White by third parties. Ray White has not verified the information and does not warrant its accuracy or completeness. Parties should make and rely on their own enquiries in relation to the property.

Due diligence checklist for home and residential property buyers.

Get in touch

We'd love to hear from you

If you're interested in looking at properties around the area, or want the latest information on the market in your neighbourhood, we'd love to hear from you. 

37 Swanston Street Geelong 3220, Victoria
Back to top