We bring market insights, news and lifestyle updates direct to your inbox.

Sign up to our newsletters

See the properties 
defining luxury in the 
Luxury Homes magazine

Property main details

3
3
1

Home For Sale

  • Sold For $1,305,000
  • House

Specifications

  • Property Type
    House
  • Building
    209 m2
  • Land
    650 m2

Timeless Elegance - Charming Character Bungalow In The Heart Of Grange

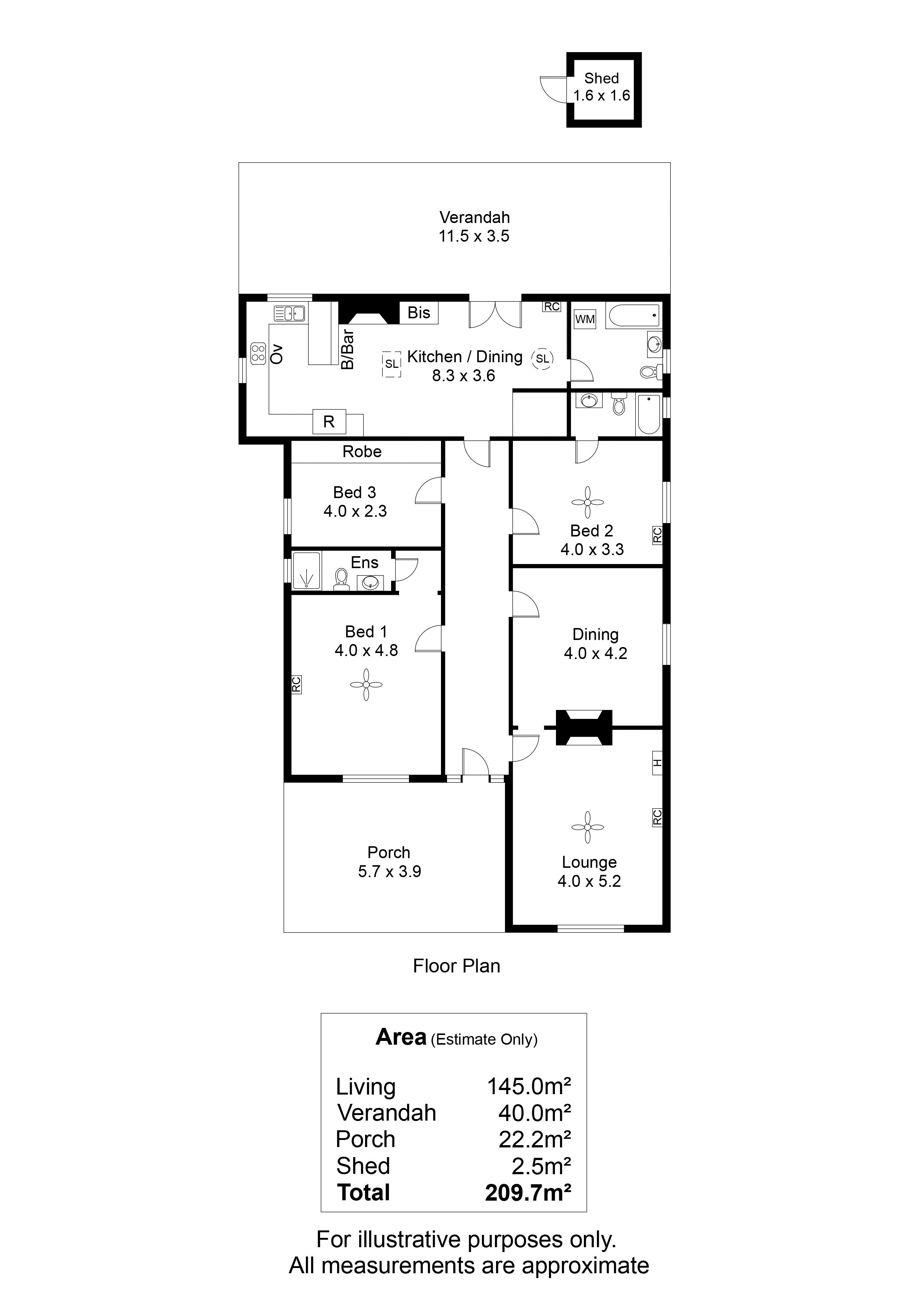
Look no further, we've found the perfect home for you! Located just minutes from Grange Beach, whether you're looking for a permanent home or a great investment opportunity with excellent return on investment potential, this amazing property with valuable rear lane access is everything you've ever dreamed of. With three bedrooms and three bathrooms, it offers plenty of space to satisfy all of your lifestyle needs.

Nestled within the charming neighbourhood of Grange, 637 Grange Road welcomes you with its classical construction and picturesque surroundings. The beautiful slanted roof architecture is adorned by meticulously manicured bushes, setting a serene ambience. Step onto the inviting porch and feel the warmth of this lovely abode.

Inside, the home exudes a timeless charm. The kitchen with ample wooden cabinetry and generous bench space invites culinary adventures and gatherings with loved ones. The open-plan kitchen/dining area effortlessly flows into a more formal dining space, perfect for hosting intimate dinners or festive celebrations. A separate lounge area provides a cozy haven for unwinding after a long day.

With three bedrooms and three bathrooms, including the master with an ensuite bathroom, convenience and privacy are paramount. Plush carpeting and ceiling fans grace the bedrooms, offering cozy retreats for relaxation. To top it all off, you can enjoy leisurely moments on the rear verandah while you sip your morning cup of coffee.

Key Features:
• Beautiful classical construction with a charming slanted roof
• Gorgeous porch at the front, perfect for enjoying the outdoors
• Kitchen with ample wooden cabinetry and plenty of bench space
• Bedrooms featuring plush carpeting and ceiling fans for comfort
• Open-plan kitchen/dining area, plus a separate more formal dining area
• Lounge area ideal for relaxation and entertainment
• Three bedrooms and three bathrooms, including master with ensuite bathroom
• Verandah offering a tranquil outdoor retreat
• Side road access via High Street
• Rear lane access

Located in the heart of Grange, this residence offers proximity to Kirkcaldy Reserve, providing ample opportunities for outdoor recreation and leisurely strolls. Families will appreciate the convenience of nearby Grange Primary School, ensuring quality education for young learners. The Western Hospital ensures peace of mind with accessible healthcare services, while the vibrant local scene boasts Grange Jetty Cafe and Coffee Journey, offering delightful social gatherings.

Embrace the quintessential Grange lifestyle at 637 Grange Road.


Disclaimer: As much as we aimed to have all details represented within this advertisement be true and correct, it is the buyer/ purchaser's responsibility to complete the correct due diligence while viewing and purchasing the property throughout the active campaign.

Property Details:

Council | CHARLES STURT
Zone | EN - Established Neighbourhood
Land | 650sqm(Approx.)
House | 209sqm(Approx.)
Built | 1926
Council Rates | $TBC pa
Water | $TBC pq
ESL | $TBC pa

Get in touch

We'd love to hear from you

If you're interested in looking at properties around the area, or want the latest information on the market in your neighbourhood, we'd love to hear from you. 

637 Grange Road Grange 5022, South Australia
Back to top