We bring market insights, news and lifestyle updates direct to your inbox.

Sign up to our newsletters

See the properties 
defining luxury in the 
Luxury Homes magazine

Property main details

2
1
1

Home For Sale

  • Sold For $2,110,000
  • House

Specifications

  • Property Type
    House
  • Building
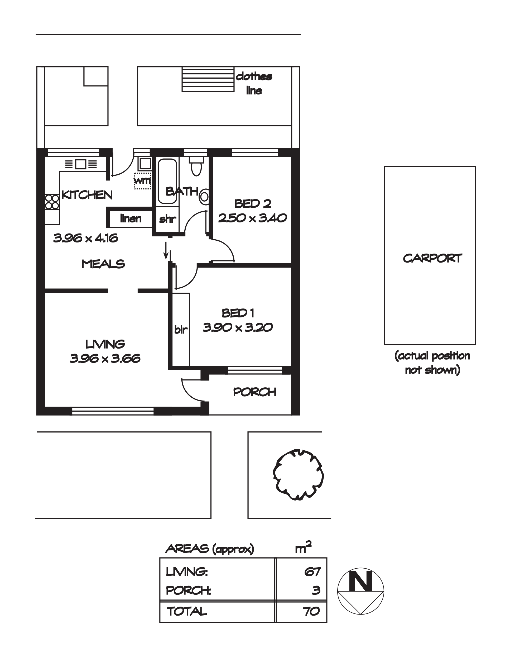
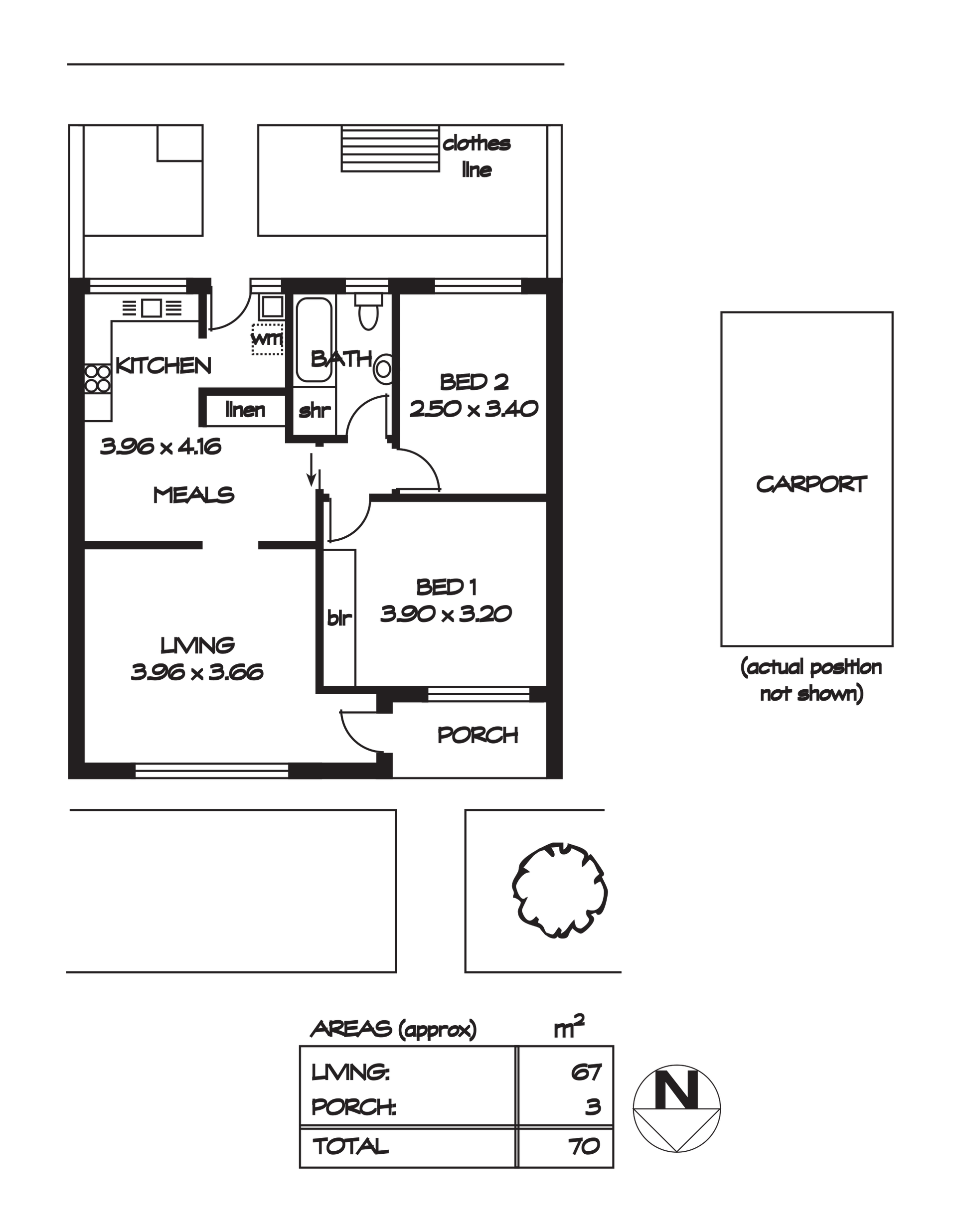
    70 m2

Rare Release - Exciting Investment Opportunity - 5 Solid Brick Units

*All units to be sold as a whole -Photography and Floor Plan is based off of vacant Unit 4*

Delightfully positioned on the city fringe, within easy walking distance to Burnside Village and Glenunga Reserve, this group of 5 solid brick units is being offered to the modern market for the first time and presents an exciting investment opportunity with the promise of a regular income stream.

Most of the units are currently rented and are in original condition with minor upgrades. The units offer a two-bedroom configuration with separate living room and combined kitchen/meals. Laundry and bathroom facilities are inclusive to each unit.

A single carport space is allocated to each unit, enhancing the rent-ability and appeal. All set on a manicured garden allotment with established trees and plantings.

Purchase now and enjoy the rewarding rental returns while you consider the future growth potential of renovating and upgrading.

Get creative and do the numbers, these 5 solid brick units provide a rare and exciting opportunity to secure an entire group.

Briefly:
* 5 solid brick units in well maintained, original condition
* Opportunity to secure the entire group
* Most units currently rented to reliable tenants
* Great city fringe location
* Walk to Burnside Village & Glenunga Reserve
* Close to public transport
* Each unit offers a two-bedroom configuration
* Generous living room and combined kitchen/meals
* Separate bathroom and laundry facilities
* Small rear courtyard
* Single carport space
* Manicured, well maintained grounds

Quietly located on the city fringe with access to all facilities. Glenunga Reserve and the Adelaide Parkland belt will provide ample open space for your sport and recreational needs. Burnside Village is just a casual walk to international quality shopping.

Walk, ride or bus to The Adelaide CBD, easily and conveniently accessed.

Enjoy elite school zoning to Linden Park Primary School and Glenunga International High School. Private schools in the area include Pembroke School, St Raphael's, Loreto College & Seymour College.

Zoning information is obtained from www.education.sa.gov.au Purchasers are responsible for ensuring by independent verification its accuracy, currency or completeness.

Ray White Norwood are taking preventive measures for the health and safety of its clients and buyers entering any one of our properties. Please note that social distancing will be required at this open inspection.

Property Details:
Council | Burnside
Zone | SN - Suburban Neighbourhood//
Land | TBCsqm(Approx.)
House | 70 sqm(Approx.) for each unit
Built | 1970
Council Rates | $TBC pa
Water | $TBC pq
ESL | $TBC pq

Auction Pricing - In a campaign of this nature, our clients have opted to not state a price guide to the public. To assist you, please reach out to receive the latest sales data or attend our next inspection where this will be readily available. During this campaign, we are unable to supply a guide or influence the market in terms of price.

Vendors Statement: The vendor's statement may be inspected at 249 Greenhill Road, Dulwich for 3 consecutive business days immediately preceding the auction; and at the auction for 30 minutes before it starts.
RLA 278530

Get in touch

We'd love to hear from you

If you're interested in looking at properties around the area, or want the latest information on the market in your neighbourhood, we'd love to hear from you. 

1-5/1 L'Estrange Street Glenside 5065, South Australia
Back to top