We bring market insights, news and lifestyle updates direct to your inbox.

Sign up to our newsletters

See the properties 
defining luxury in the 
Luxury Homes magazine

Property main details

5

Commercial

  • Sold
  • Retail

Specifications

  • Property Type
    Retail
  • Building
    300 m2

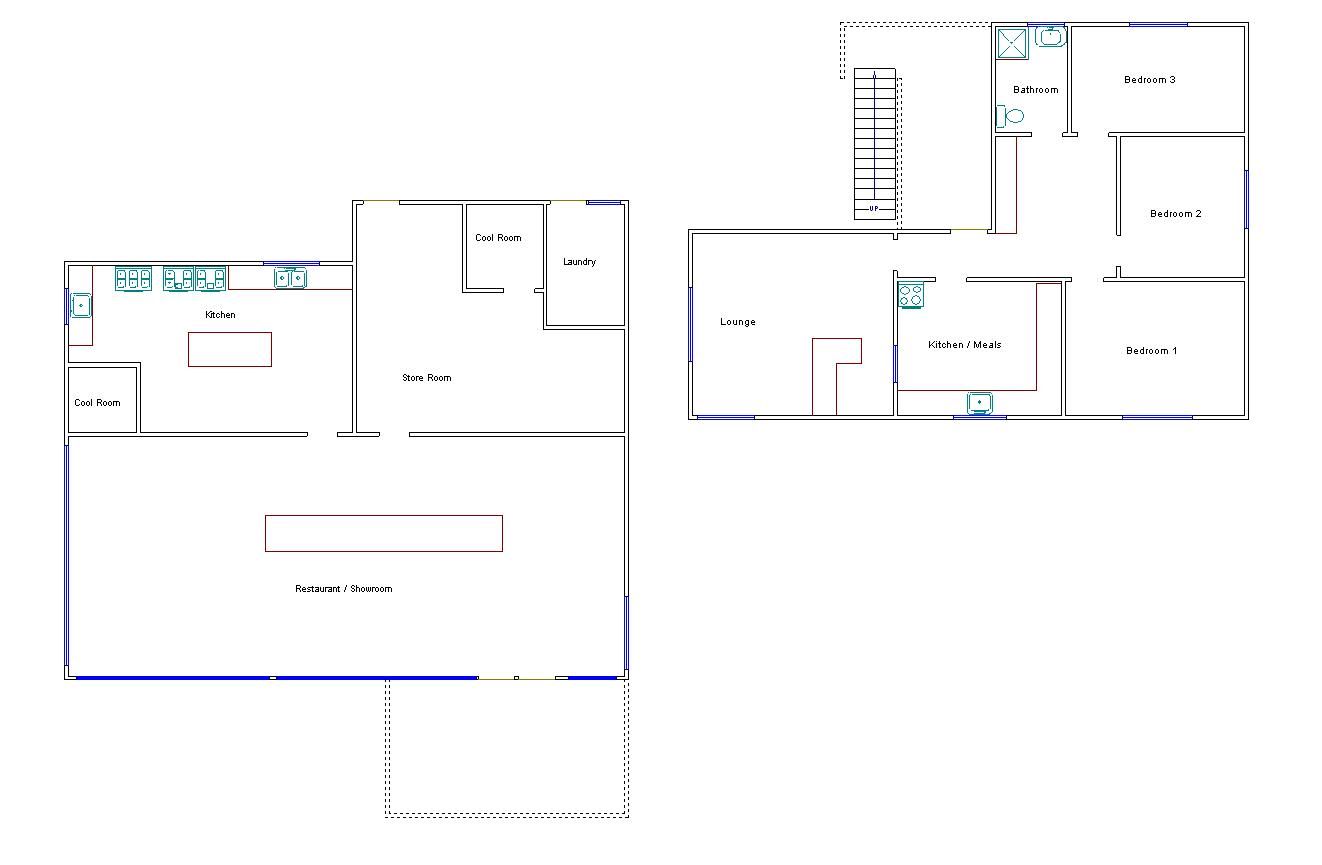
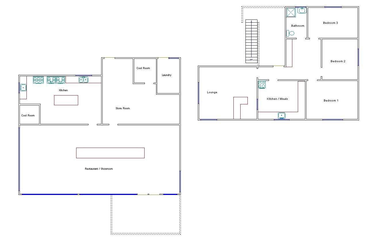
Commercial Opportunity

Prime commercial site on a high exposure corner allotment close by fuel outlets and local Hotel.
Lower level features dining area for both travellers and local alike, serviced by a partially equipped kitchen and walk-in cool room.
There are 5 undercover car parking bays, plus other open air parking spaces.
The upper level comprises a 3 bedroom residence with gas heating and air conditioning. Situated on approx 889 sqm site, this building offers affordable business and investment opportunity.
Both the unit and Shop are currently tenanted for $555.00 per week (approx $28,000 per year)
RLA153432

Get in touch

We'd love to hear from you

If you're interested in looking at properties around the area, or want the latest information on the market in your neighbourhood, we'd love to hear from you. 

60 North Terrace Bordertown 5268, South Australia
Back to top