We bring market insights, news and lifestyle updates direct to your inbox.

Sign up to our newsletters

See the properties 
defining luxury in the 
Luxury Homes magazine

Property main details

2
2
1

Home For Sale

  • Sold For $480,000
  • Apartment

Specifications

  • Property Type
    Apartment

Walk to Garden City!

Owners are keen to sell!
All serious offers will be considered.

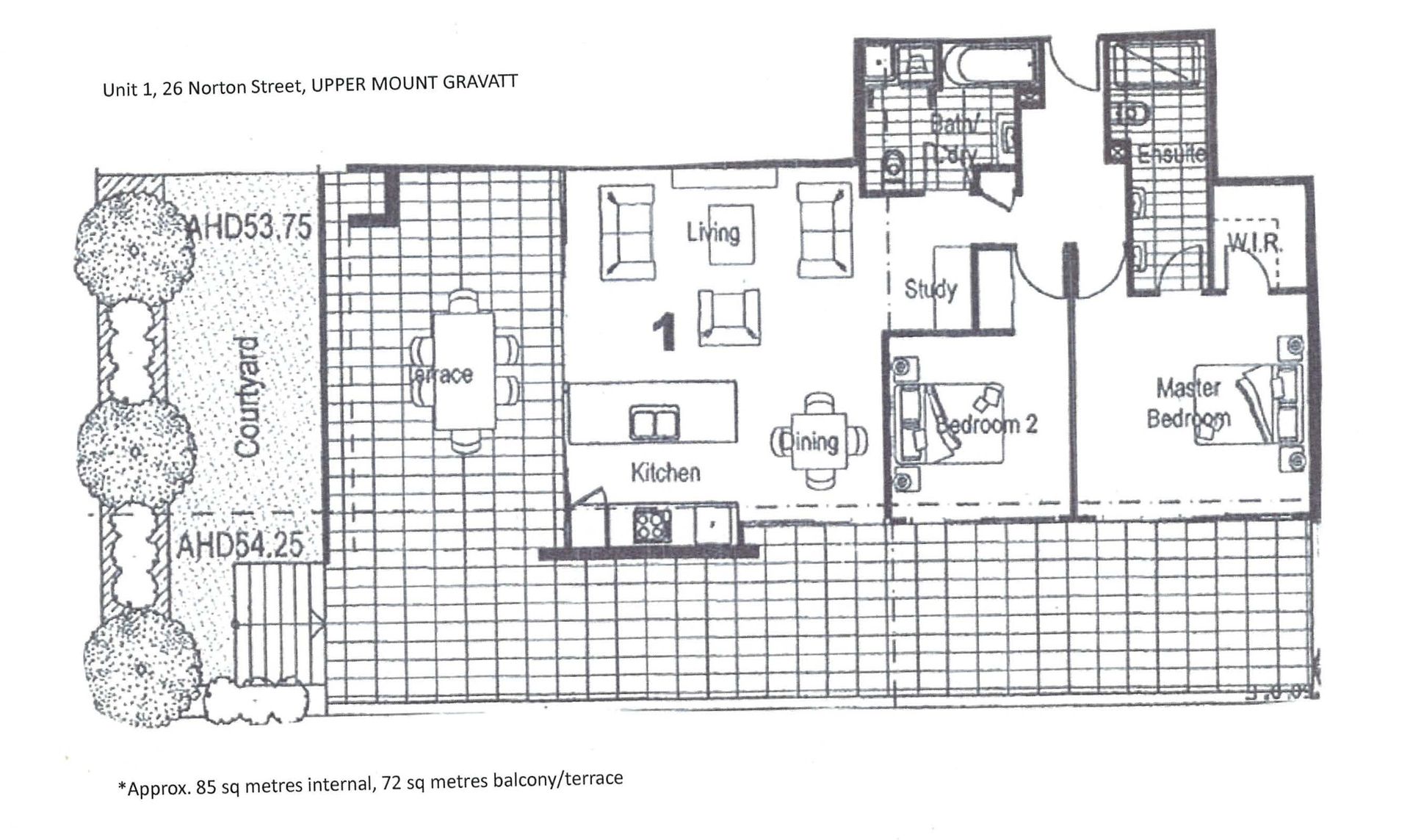
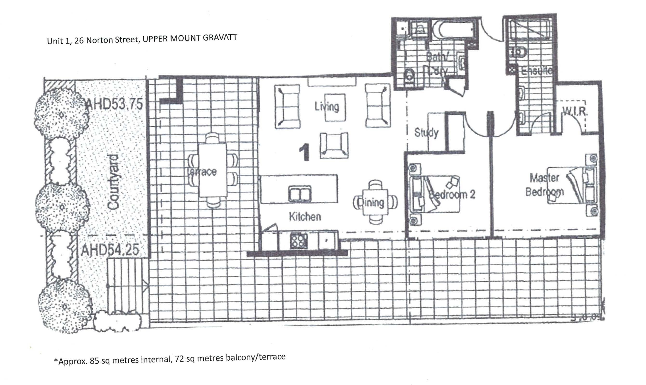
This spectacular apartment offers all the luxuries of home. It has all the conveniences located in the heart of Upper Mount Gravatt. Walking distance to the Village Shopping Centre and Westfield Garden City. Restaurants, cafes , bars, shops, public transport and schools all a stone's throw away. Finished with a superior level of quality appliances and immaculately presented in a well maintained, secure building. Open plan living with soaring high ceilings and a wrap around balcony that makes for a huge entertaining area.

- 2 good sized bedrooms, main with walk-in robe and second bedroom with built-ins
- Ensuite plus combined second bathroom and laundry
- Split system air conditioning in living area
- Fans throughout
- Intercom system and Crimsafe security
- Lift access from garage
- Secure basement parking

Get in touch

We'd love to hear from you

If you're interested in looking at properties around the area, or want the latest information on the market in your neighbourhood, we'd love to hear from you. 

1/26 Norton Street Upper Mount Gravatt 4122, Queensland
Back to top