We bring market insights, news and lifestyle updates direct to your inbox.

Sign up to our newsletters

See the properties 
defining luxury in the 
Luxury Homes magazine

Property main details

3
2
2

Home For Sale

  • Sold For $301,000
  • Townhouse

Specifications

  • Property Type
    Townhouse

Awesome Tenant Loves It Here! Buy and Relax!

Highly desirable as a rental property in this highly desired resort, what a superb investment to begin or add to your rental portfolio and it is so easy for you too... a very good tenant is already in place on a fixed term tenancy of $360pw with further growth potential and the property has been well cared for by the longstanding onsite manager.

This complex has excellent resort style facilities including pool, spa, gym and entertaining area. The property is situated in an ideal location with plenty of options for excellent government or private schooling, plenty of shopping centers nearby, close to the M1 for commuting to Brisbane or making the most of the beautiful Gold Coast beaches we have on offer. Close to public transport, Dream World a few minutes away and Movie World nearby too
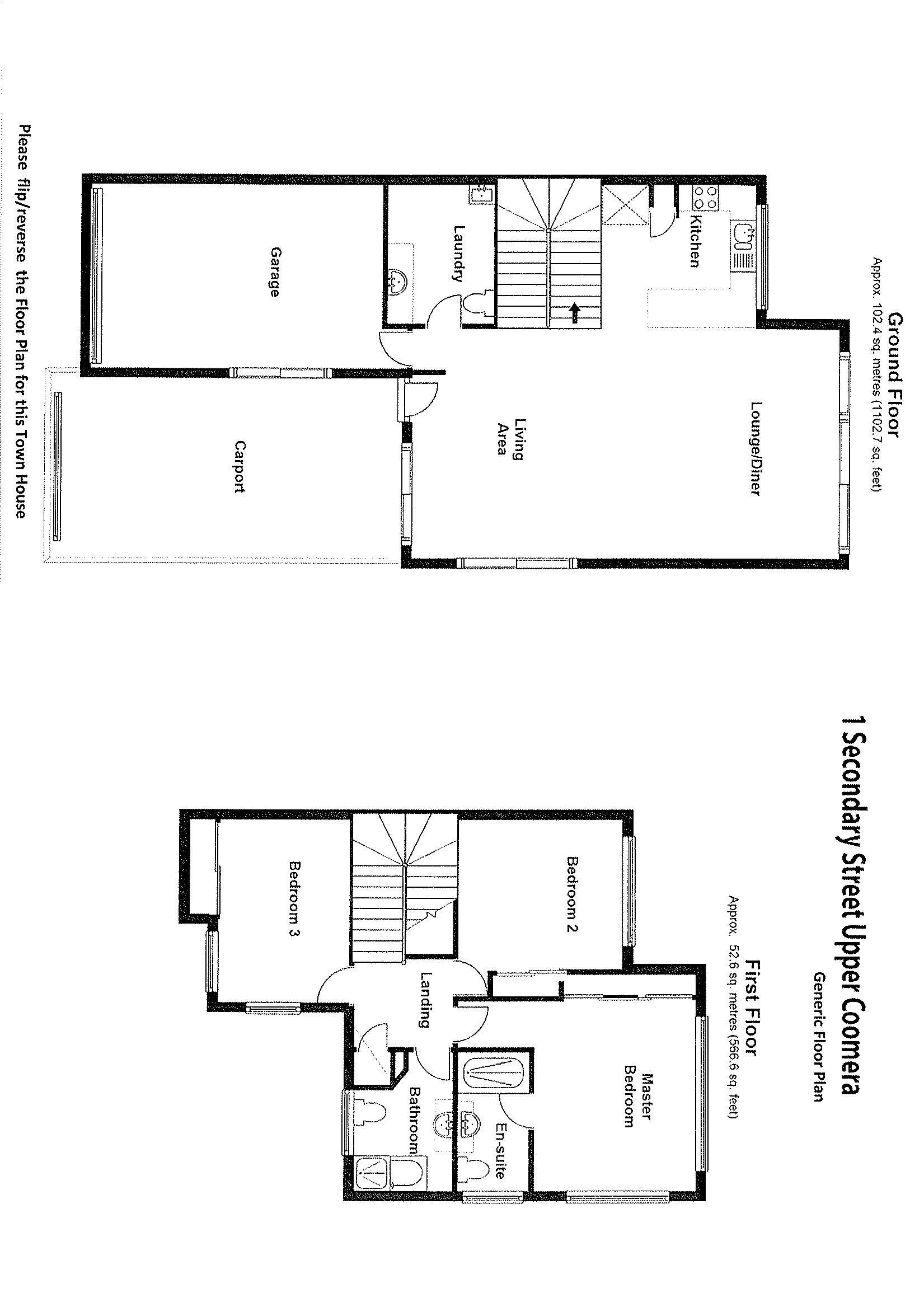
All three bedrooms are good sizes with built in wardrobes and fans. The main bedroom includes an ensuite. The family bathroom has both a shower and bath. The home has a large living area plus separate laundry, powder room and storage. Some of the other great features are a single lock up garage, carport and room for a further two cars on the driveway if desired, air-conditioning, outdoor entertaining area, secure gated entrance, fully fenced back yard with courtyard and set within a friendly and quiet complex location.

The Vendors Wants This Property To Sell Quickly! Be Quick! Viewing is highly recommended.

Some of the Features you will enjoy:

* Motivated Vendor!
* Pool, Gym and Recreation room within the complex.
* Tenants secured at $360pw
* Split system air conditioning x 2
* Spacious open plan living area
* Ensuite, family bathroom
* Covered outdoor alfresco area
* Flat back and easy care
* Ceiling fans
* Well fenced for pets
* Modern styling
* Single garage, carport and further of street parking.

The Owners Say Sell! This is really an opportunity not to miss!

Get in touch

We'd love to hear from you

If you're interested in looking at properties around the area, or want the latest information on the market in your neighbourhood, we'd love to hear from you. 

10/1 Secondary Street Upper Coomera 4209, Queensland
Back to top