This Queenslander with its tongue and groove walls and magnificent wide timber flooring is an absolute must to inspect. Beautifully renovated by its current owner with high ceilings and stained glass doors gives you that old-time charm.
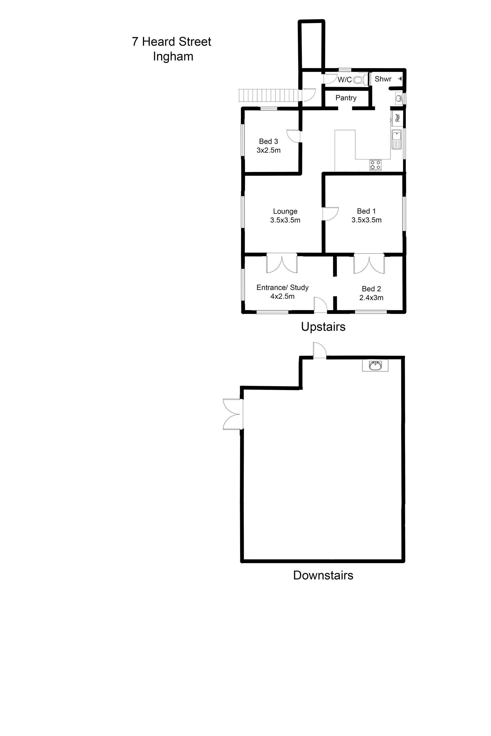
Features include: Brand new Kitchen with built in breakfast bar Spacious central loungeroom Compact renovated bathroom with separate toilet 3 bedrooms plus sleepout/office/Study Polished timber floors boards Downstairs laundry Boasting a 1012 sqm over average allotment Established yard & gardens Plenty of room for boat/caravan
Conveniently located close to shops, hospital, schools, and other local amenities. This home has been recently painted inside and out, making it a clean slate for the lucky buyer.
A must to inspect to appreciate.
What are you waiting for? North Queensland is waiting for you :)
Call Marie direct on 0448 347 722. today to discuss further and to arrange your viewing virtually or in person.
Get in touch
We'd love to hear from you
If you're interested in looking at properties around the area, or want the latest information on the market in your neighbourhood, we'd love to hear from you.