We bring market insights, news and lifestyle updates direct to your inbox.

Sign up to our newsletters

See the properties 
defining luxury in the 
Luxury Homes magazine

Property main details

4
2
2

Home For Sale

  • Sold
  • House

Specifications

  • Property Type
    House

SOLD - Price Undisclosed

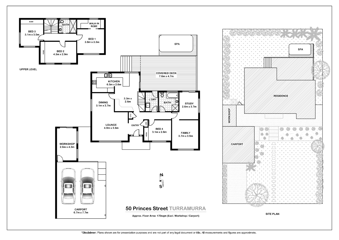
Set in a wonderful family neighbourhood, yet so accessible and convenient to the main travel arteries to the city and beaches, this welcoming home has a well designed and versatile floorplan that will easily accommodate your family's needs. You will appreciate the immaculate, stylish presentation, and the North to rear aspect ensures abundant natural light and a fresh feel throughout. The energy and water smart features ensure it is also a clever option.

Well established hedged perimeter gardens frame an inviting rear deck, level lawn and spa area, perfect for family gatherings and year round entertaining. Perfectly located with a stroll to Princes Street village shops and caf, and within walking distance to both Pymble Public School and Kent oval playing field and tennis courts, this is a home and lifestyle you will love.

Accommodation includes:

*Stylish living area plus dining room
*Family room provides ideal separation of second living space
*Elegant and contemporary eat in kitchen with caesarstone benchtops and Bosch appliances, including 5 burner gas cooktop
*Master with generous walk-in-robe
*All additional bedrooms with built in robes
*Flexible study/guest room/home office/5th bed option
*Additional study area adjacent to kitchen
*Main bathroom with heated towel rail and plantation shutters
*Large, covered timber deck with stylish glass panel finish
*Generous 4.3m swim spa with jets and off peak solar panel heating for year round use
*Double carport with adjacent workshop

Additional features include:

*Polished floorboards to lower level living areas
*New wool carpet to upstairs bedrooms
*Well insulated ceilings and walls cool in summer, warm in winter
*Under house wine cellar plus plenty of storage
*Solar panels to reduce energy costs (1kw system)
*Rainwater tank 4500l
*Land size 780 sqm (approx.)

Location aspects:

*700m walk to Pymble Public School (catchment area)
*Stroll to Princes Street shops and cafe
*650m walk to Kent oval and tennis courts
*15 minute walk to Bannockburn oval
*Close to elite North Shore schooling options
*Easy bus access to Pymble rail


Disclaimer: All information contained herein is gathered from sources we believe reliable. We have no reason to doubt its accuracy, however we cannot guarantee it.

Get in touch

We'd love to hear from you

If you're interested in looking at properties around the area, or want the latest information on the market in your neighbourhood, we'd love to hear from you. 

50 Princes Street TURRAMURRA 2074, New South Wales
Back to top