We bring market insights, news and lifestyle updates direct to your inbox.

Sign up to our newsletters

See the properties 
defining luxury in the 
Luxury Homes magazine

Property main details

2
2

Home For Sale

  • Sold
  • Other

Specifications

  • Property Type
    Other

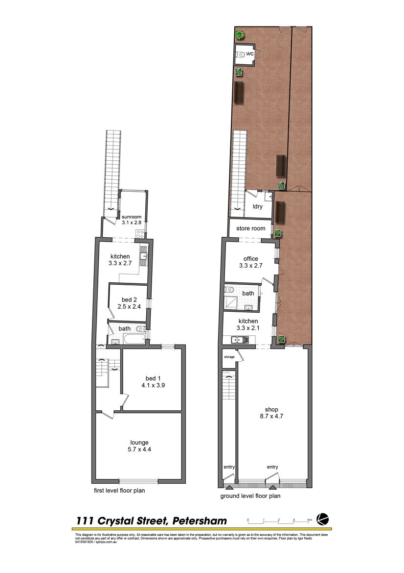
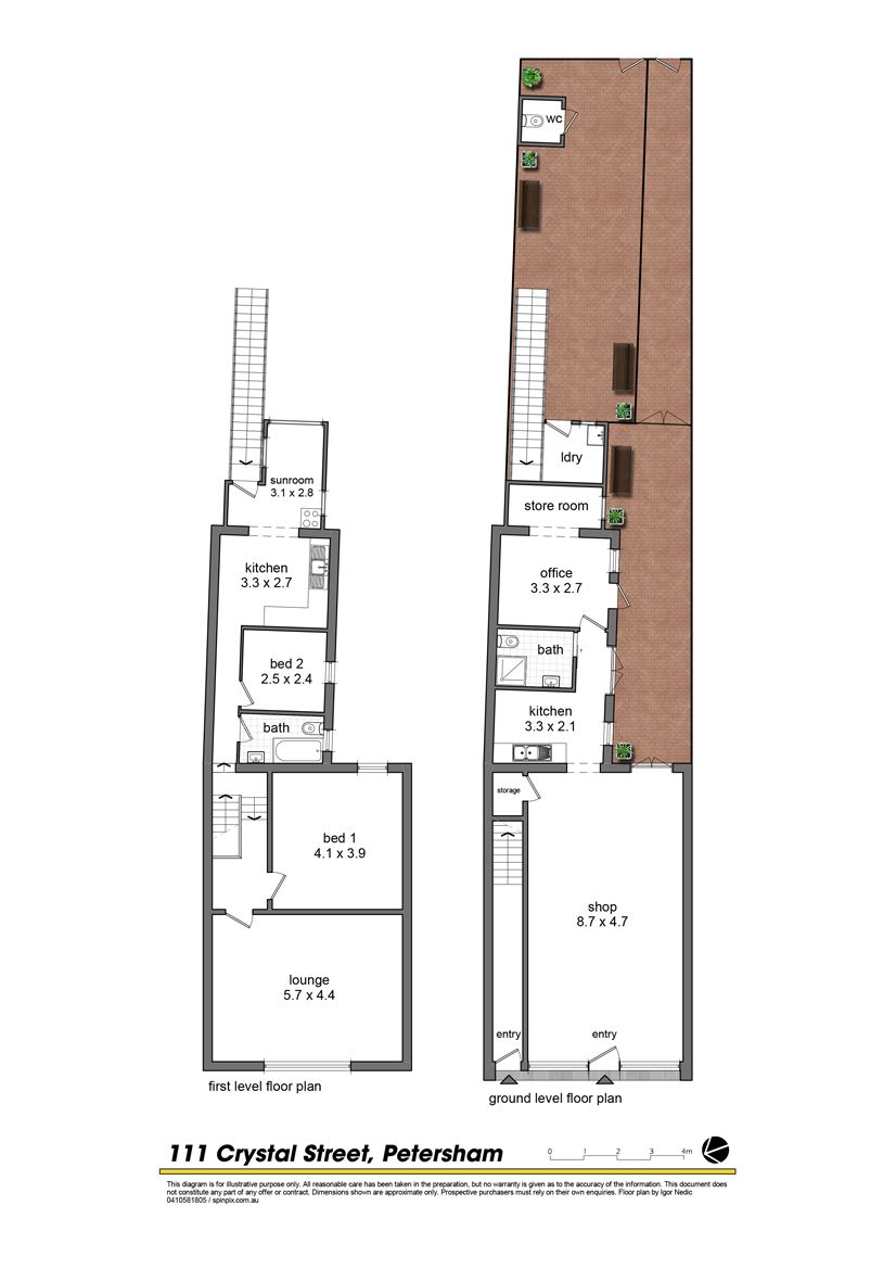
Shop and Residence in Prime Position

This prominently positioned shop & residence is located within the Petersham Village precinct.
Offered with a mix vacant possession and existing tenancies this property would suit a myriad of
retail/residential uses. Ground level comprises of an open plan retail space with a large kitchen,
bathroom, office and courtyard with both front and rear access. The upper level of the property
with its own private entry is currently configured as a separate two bedroom residence, with
separate lounge & dining, large kitchen & bathroom and delightful rear garden with rear lane
access. Additional features include potential off street parking, separate laundry and storage
area and the commercial and residential spaces being seperatly metered. This character
building would be the perfect spot for a cafe/restaurant or any number of other business
enterprises. Work from home or capitalise on its high potential rental returns.

- Landmark building in the heart of Petersham Village
- positioned in the heart of Petershams thriving retail precinct.
- Ground level comprises open plan retail spaces with WC & kitchen/and rear lane access
- Private two bedroom residence upstairs with separate access
- Total building area 171 sqms, zoning B1.
- Blue chip investment or fantastic business opportunity

Get in touch

We'd love to hear from you

If you're interested in looking at properties around the area, or want the latest information on the market in your neighbourhood, we'd love to hear from you. 

111 Crystal Street Petersham 2049, New South Wales
Back to top