We bring market insights, news and lifestyle updates direct to your inbox.

Sign up to our newsletters

See the properties 
defining luxury in the 
Luxury Homes magazine

Property main details

4
3
1

Home For Sale

  • Sold
  • House

Specifications

  • Property Type
    House

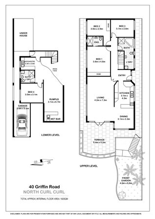
Dual occupancy by the sea

This 2 storey brick home is ideal for a family looking for a beachside lifestyle. Offering ample accommodation with two living areas or an optional self contained apartment on the first level. Rarely do you find an opportunity to purchase a home with ocean views in such an affordable price range.

Grab your surfboard, get set for summer, its just a short stroll to the beach!

Polished timber floorboards
Large entertaining terrace with ocean views
Wet bar in rumpus room
Under house storage
Close to public transport, beaches and schools.


Open Time: Saturday 2nd October 2010 at 1pm to 1.40pm

Price Guide: $900,000+

Get in touch

We'd love to hear from you

If you're interested in looking at properties around the area, or want the latest information on the market in your neighbourhood, we'd love to hear from you. 

1/40 Griffin Road NORTH CURL CURL 2099, New South Wales
Back to top