We bring market insights, news and lifestyle updates direct to your inbox.

Sign up to our newsletters

See the properties 
defining luxury in the 
Luxury Homes magazine

Property main details

Commercial

  • Sold
  • Offices

Specifications

  • Property Type
    Offices
  • Building
    558 m2
  • Land
    1073 m2

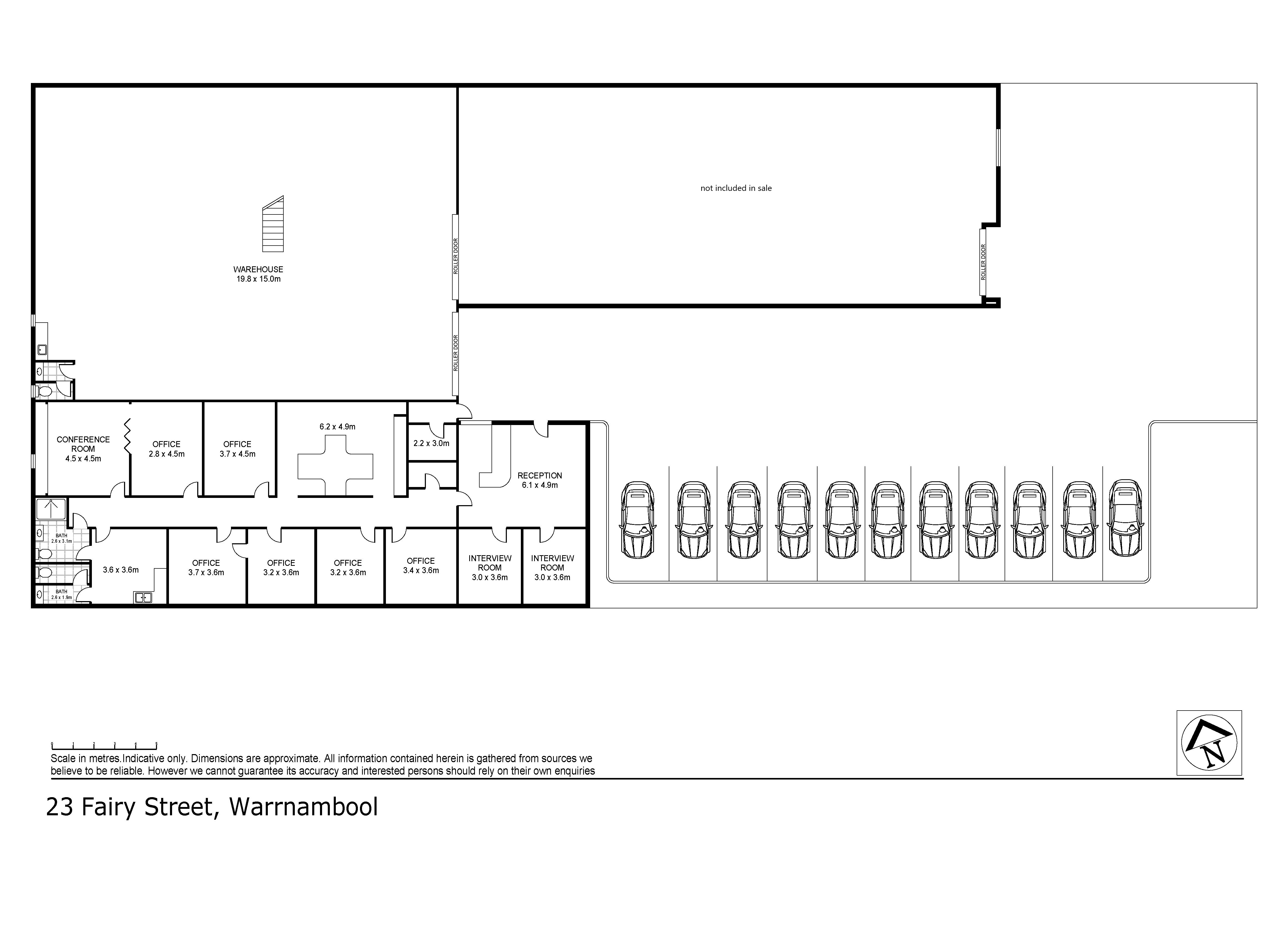
Rare Commercial Offering

Offering 1073sqm of land approximately with extensive car parking, this dynamic commercial site offers a mixture of commercial office space with reception, meeting room, bathroom and kitchen.

Whilst adjoining a large industrial shed/warehouse 19.8m x 15m, ideal for storage or further development potential (STCA).

303sqm Warehouse area
255sqm Office area

Selling fully furnished with vacant possession, this centrally located site offers an array of opportunities with potential to lease out or take both the lease and freehold and operate your business accordingly.

Located close to train station, supermarkets and many other commercial premises, this is the ideal site to operate any expanding business with potential to develop further.

All information about the property has been provided to Ray White by third parties. Ray White has not verified the information and does not warrant its accuracy or completeness. Parties should make and rely on their own enquiries in relation to the property.

Due diligence checklist for home and residential property buyers.

Get in touch

We'd love to hear from you

If you're interested in looking at properties around the area, or want the latest information on the market in your neighbourhood, we'd love to hear from you. 

23 Fairy Street Warrnambool 3280, Victoria
Back to top