We bring market insights, news and lifestyle updates direct to your inbox.

Sign up to our newsletters

See the properties 
defining luxury in the 
Luxury Homes magazine

Property main details

2
1
2

Home For Sale

  • Sold For $600,000
  • House

Specifications

  • Property Type
    House

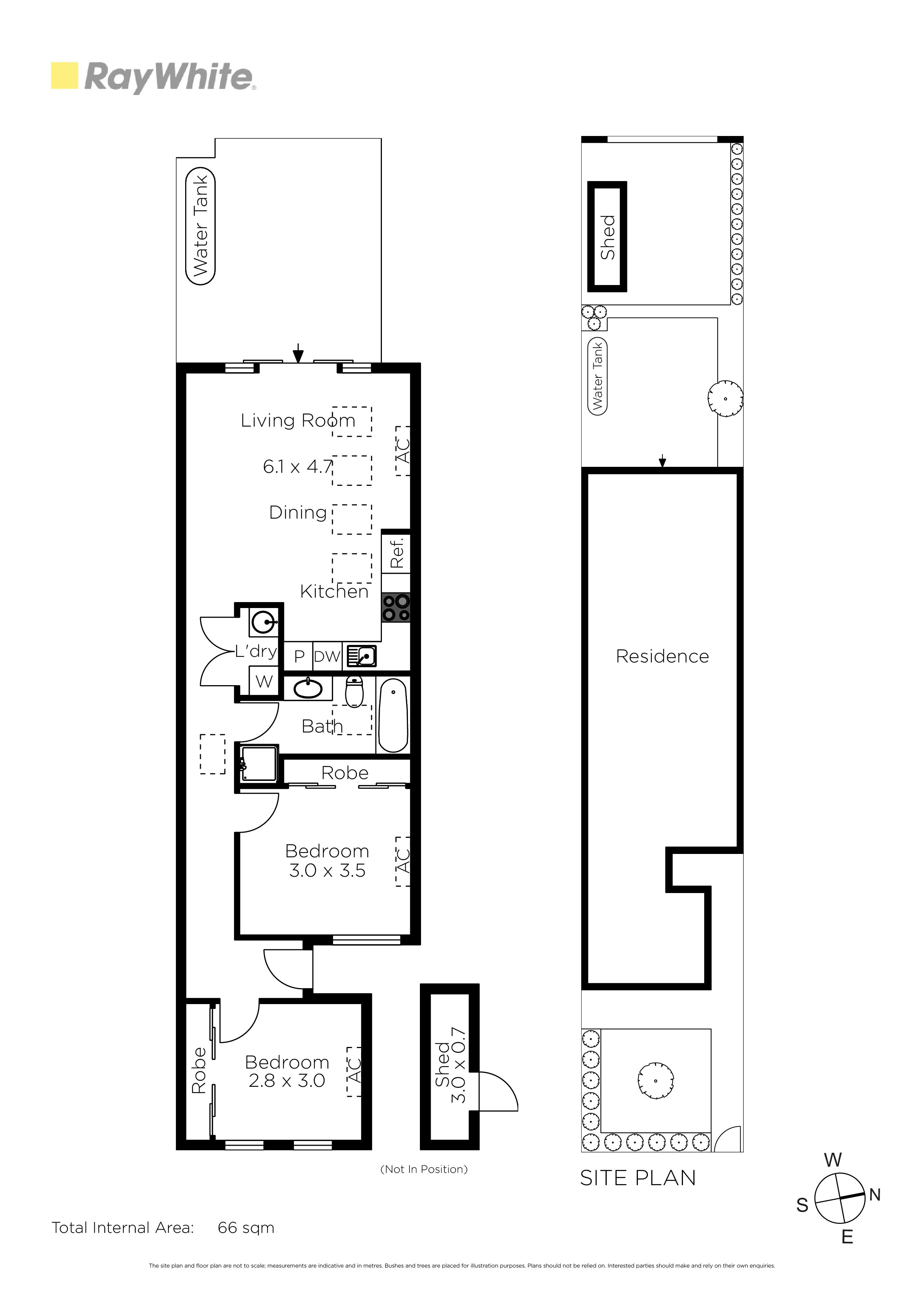
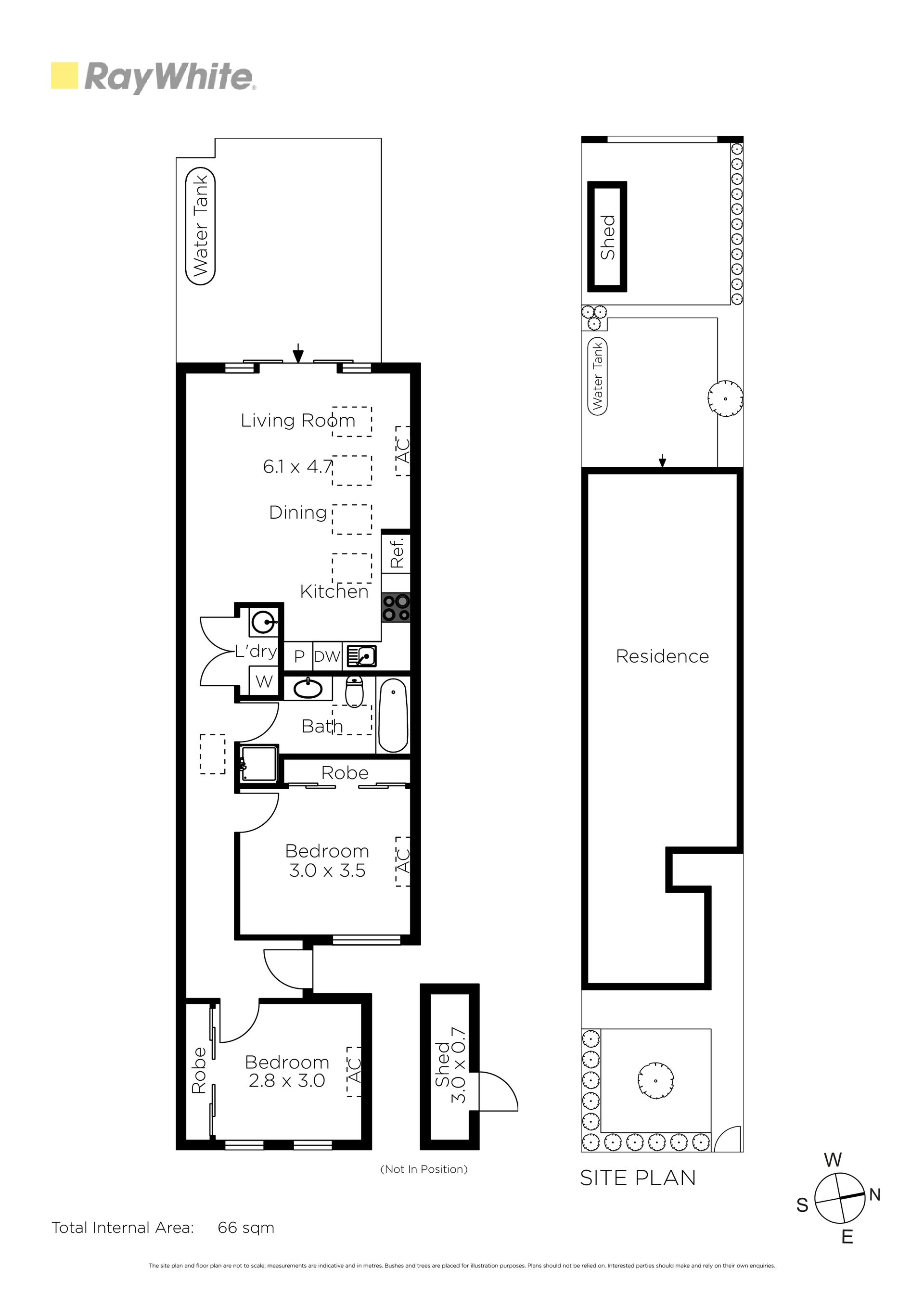
Terrace Traditions For Today

A sensational contemporary interpretation of timelessly appealing cottage traditions, this beautifully fitted and finished two bedroom home retains all the verve and freshness that defined its c2022 construction and completion.
External lines that immediately convey the cool sense of style that's so evident throughout this property's single level spaces, including a living/dining area featuring a sequence of exceptionally effective skylights, low-maintenance timber flooring and fabulous presentation. The stone benches, stainless steel appliances, designer splashbacks and soft-closing cabinetry of the open-plan kitchen further emphasize the focus on quality that's such a distinctive attribute of this address.
Split system heating/cooling ensures each room stays totally comfortable, including the format's two double bedrooms, each with built-in robes, both sharing a central bathroom where a free-standing bath, separate shower and impeccable details deliver instant desirability.
A welcoming courtyard backdrop and the convenience of secure car parking, a storage shed and water tank conclude an exceptional opportunity in a superb setting moments from Wheelahan Gardens, Sunshine Harvester Primary School, Caroline Chisholm Catholic College and Sunshine town centre.

All information about the property has been provided to Ray White by third parties. Ray White has not verified the information and does not warrant its accuracy or completeness. Parties should make and rely on their own enquiries in relation to the property.

Due diligence checklist for home and residential property buyers.

Get in touch

We'd love to hear from you

If you're interested in looking at properties around the area, or want the latest information on the market in your neighbourhood, we'd love to hear from you. 

3C Thomson Street Sunshine 3020, Victoria
Back to top