We bring market insights, news and lifestyle updates direct to your inbox.

Sign up to our newsletters

See the properties 
defining luxury in the 
Luxury Homes magazine

Property main details

3
1
1

Home For Rent

  • Leased
  • House

Specifications

  • Property Type
    House
  • Land
    738 m2

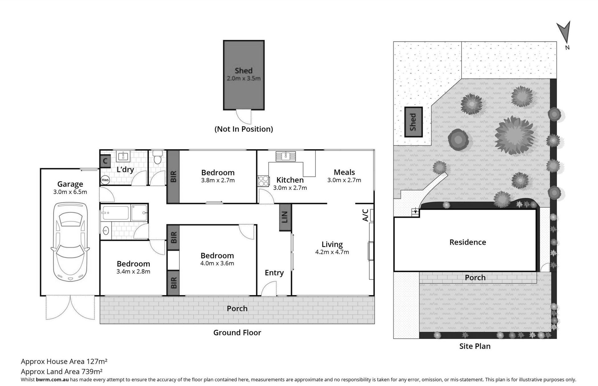
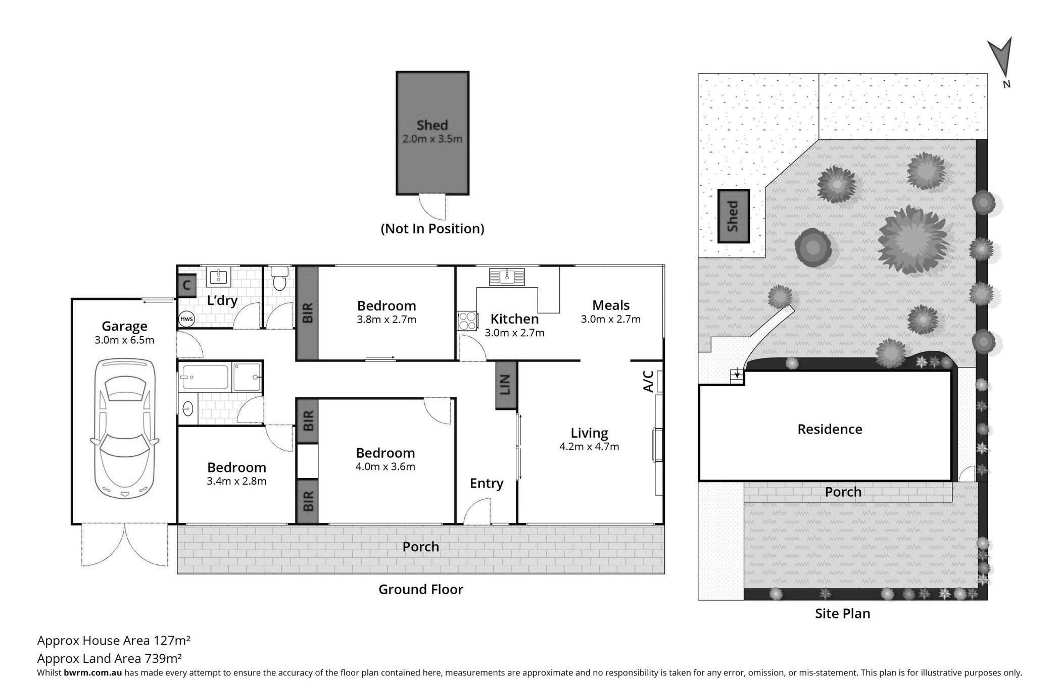
Highton Central Location

Enviably located within walking distance to Highton Village, North Valley Road Shops, the Barwon River, Public Transport, Quality Schools and only moments to the M1 taking you to Melbourne in under an hour.
- Three bedrooms, two with built in robes
- Serviced by the family bathroom
- Sizeable kitchen and meals area
- Spacious sunny lounge
- Lockable rear yard and well-maintained garden, complete with mature trees
- Single lock up garage

Register your interest in this property and be kept up to date with any changes to open times or leasing status.
To REGISTER, click "request a time" to register for an available inspection and submit your details.
To APPLY, click "get in touch" and an application link will be emailed.

All information about the property has been provided to Ray White by third parties. Ray White has not verified the information and does not warrant its accuracy or completeness. Parties should make and rely on their own enquiries in relation to the property.

Due diligence checklist for home and residential property buyers.

Get in touch

We'd love to hear from you

If you're interested in looking at properties around the area, or want the latest information on the market in your neighbourhood, we'd love to hear from you. 

213 Mount Pleasant Road Highton 3216, Victoria
Back to top