We bring market insights, news and lifestyle updates direct to your inbox.

Sign up to our newsletters

See the properties 
defining luxury in the 
Luxury Homes magazine

Property main details

7
4
3

Home For Sale

  • Sold For $2,830,000
  • House

Specifications

  • Property Type
    House
  • Land
    820 m2

One-of-a-Kind Grand Family Masterpiece with Panoramic City Views

Sale in Conjunction with Elsa Zhang | Professionals First and Co

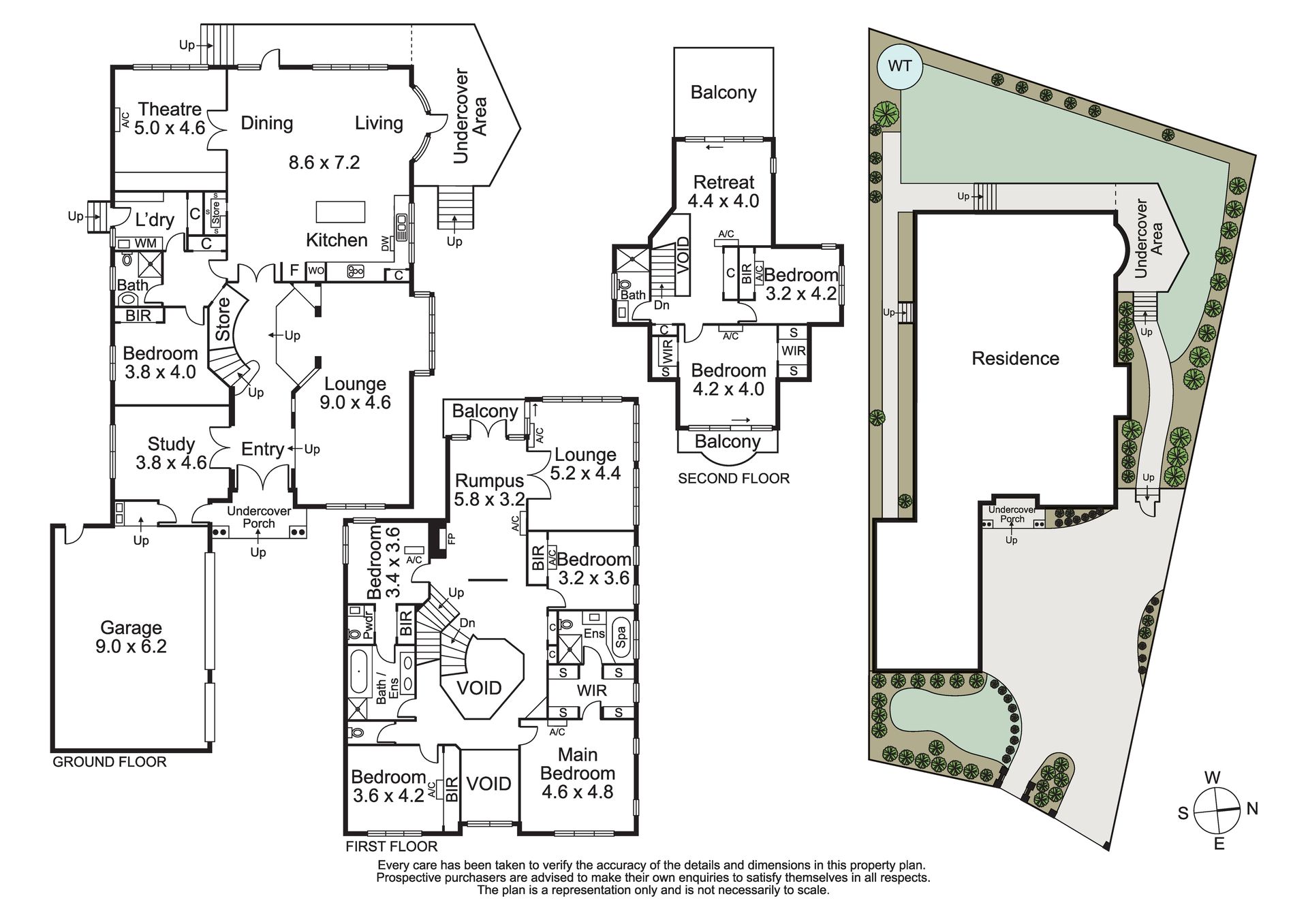
Welcome to a residence that redefines family luxury and offers scale, versatility, and sophistication on an extraordinary level. Spanning nearly 70 squares across three expansive levels and set on a substantial 820m² (approx.) allotted in a peaceful Chadstone family enclave, this extraordinary 7-bedroom, 4-bathroom residence with 5 living zones and a 3-car lock-up garage is a triumph of size, style, and comfort. Thoughtfully designed for large, blended, or multigenerational families, this home is in a league of its own offering an abundance of natural light, unrivaled accommodation, and breathtaking panoramic city views from the upper-level balcony.

From the moment you step inside, you're enveloped by the grandeur of soaring spaces, multiple living zones across all levels, and an intuitive floorplan that effortlessly accommodates the changing dynamics of modern family living. The expansive open-plan zones are complemented by north-west-facing windows that flood the interiors with glorious sunlight, enhancing the home's warmth and livability throughout the day. Whether it's relaxing in one of the many lounge areas, hosting lively family gatherings, or simply enjoying a quiet morning coffee from your balcony with a view, every inch of this home has been created for lifestyle and longevity.

The top floor is a true highlight, with commanding views of the city skyline that must be seen to be believed, alongside elevated vistas from multiple balconies throughout the property. This commanding presence is matched by its seamless proximity to every imaginable convenience. Families will appreciate the easy access to some of Melbourne's most sought-after amenities, including Chadstone Shopping Centre, Holmesglen TAFE, and Monash University. Everyday practicality is also at your fingertips, with nearby parklands, bus routes, train stations, and major arterials ensuring easy commuting. For families with children, a variety of quality local schools and early learning centers are just minutes away.

This home isn't just impressive, it's unmatched in Chadstone. It's rare to find a property of this calibre, scale, and orientation that so perfectly blends opulence with functionality, especially in such a tightly held family-focused location.


Disclaimer: We have, in preparing this document, used our best endeavors to ensure that the information contained in this document is true and accurate, but we accept no responsibility and disclaim all liability in respect to any errors, omissions, inaccuracies or misstatements in this document. Prospective purchasers should make their own enquiries to verify the information contained in this document. Purchasers should make their own enquiries and refer to the due diligence checklist provided by Consumer Affairs. Click on the link for a copy of the due diligence checklist from Consumer Affairs. http://www.consumer.vic.gov.au/duediligencechecklist

All information about the property has been provided to Ray White by third parties. Ray White has not verified the information and does not warrant its accuracy or completeness. Parties should make and rely on their own enquiries in relation to the property.

Due diligence checklist for home and residential property buyers.

Get in touch

We'd love to hear from you

If you're interested in looking at properties around the area, or want the latest information on the market in your neighbourhood, we'd love to hear from you. 

29 Carramar Street Chadstone 3148, Victoria
Back to top