We bring market insights, news and lifestyle updates direct to your inbox.

Sign up to our newsletters

See the properties 
defining luxury in the 
Luxury Homes magazine

Property main details

3
2
1

Home For Sale

  • Sold For $545,000
  • House

Specifications

  • Property Type
    House

100 on Woodville. The West's Newest & Finest Lifestyle Address.

For its St. Clair connections or purely for the security and sophistication it promises, explore 100 on Woodville, where character evolves into cutting edge...

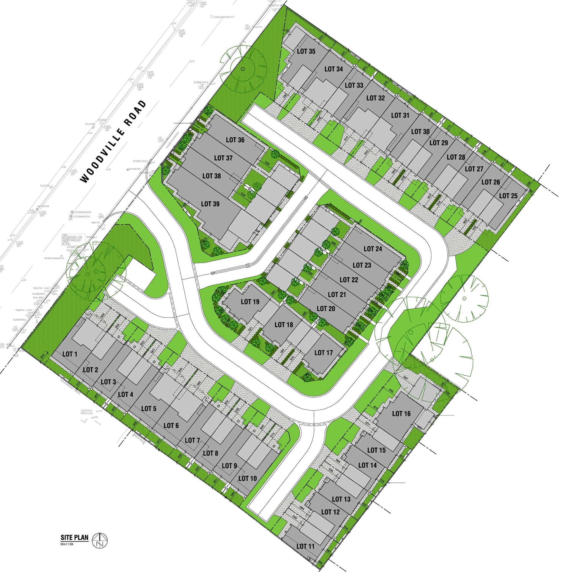
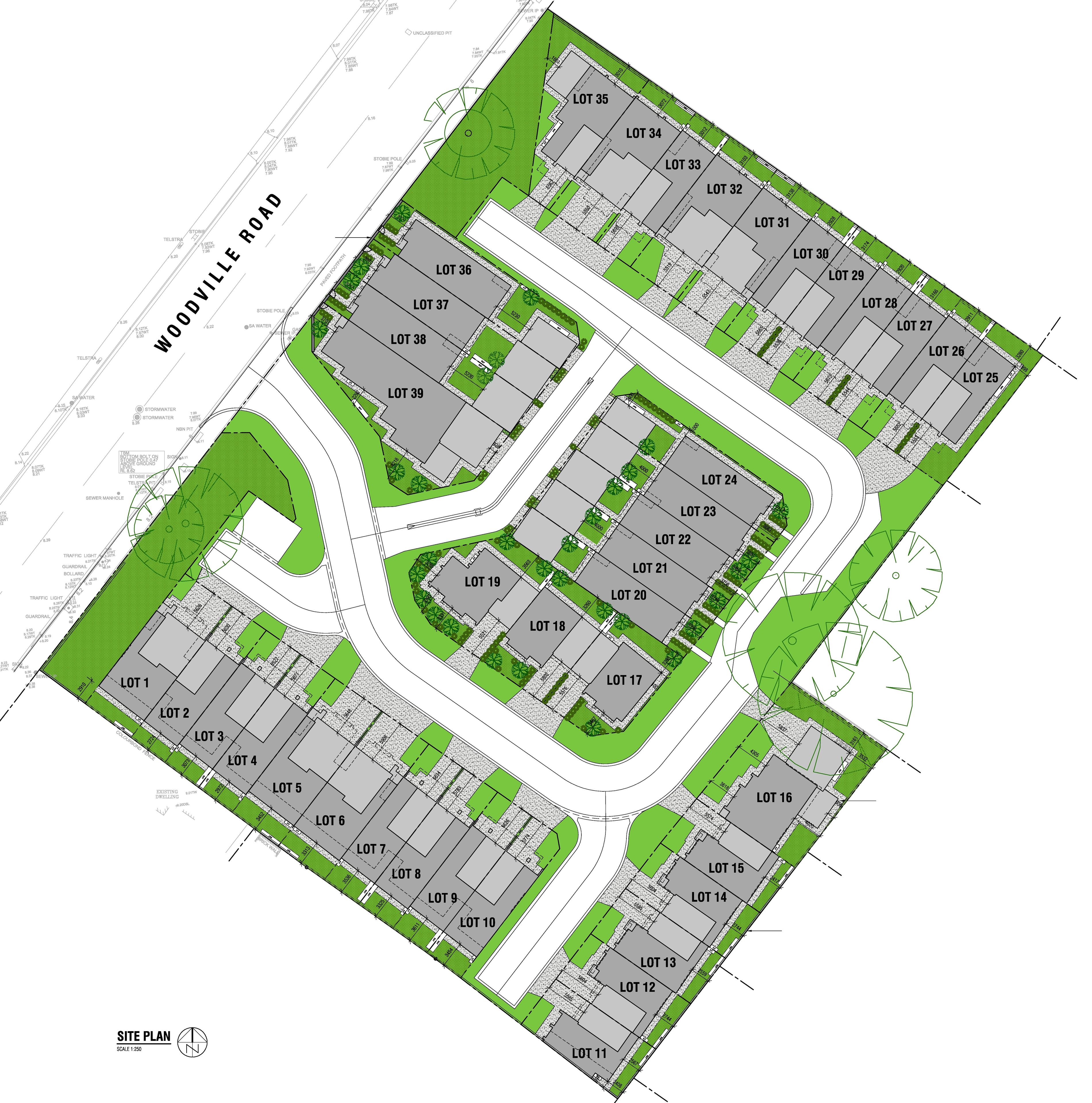
Without doubt the finest and largest urban declaration of style the west has seen to date; 39 innovative, energy-efficient, and Torrens titled town homes offering a selection of floorplans, (both single and dual level), with eco-friendly ingenuity at the hands of Eastern Building Group Pty Ltd.

Whether you're socially-driven, a city-commuter, or simply discerning, there's every reason to call 100 on Woodville home - first-home buyers, now more than ever, can capitalise on Government incentives dispensing up to $30,000 in grants (eligibility criteria applies.)

Beyond the immediate visual hit of high-end living, expect state-of-the-art interiors, soaring glass, secure single or double garaging and off-street parking, privacy, security, and surprising affordability.

Unlike other developments, the site remains sensitive to its established trees, incorporating many of them into the lush, new landscape design.

As for your selection, 100 on Woodville's progress will occur in stages as set out below. Please refer to the site plan, proposed renders, and interior specs for more information:

Stage 1: Lots 25-35
Stage 2: Lots 11-16
Stage 3: Lots 20-24
Stage 4: Lots 36-39
Stage 5: Lots 17-19
Stage 6: Lots 1-10

Progress meets finesse, and such finesse fits perfectly between the city and coast, an easy stroll to Woodville train station, minutes to Westfield West Lakes, the QEH, Grange beach, and the historic Port Adelaide precinct undertaking its own evolution...

Discover Woodville like you've never seen it before, and live it, 100 percent.

Features To Note:
39 bespoke Torrens titled designs
Environmentally sensitive architecture
Multiple floorplan options & colour schemes available
Invaluable potential to invest
Eco-friendly water collection & storage
5% Deposit Scheme
$15000 First Home-Owner Grant / $15000 Home-Builder Grant (conditions apply)
Adjoining St. Clair's lifestyle & retail precinct
Direct train links to Grange Beach & the City
Approx. 10kms west of the CBD
Unprecedented design & lifestyle...


*We make no representation or warranty as to the accuracy, reliability or completeness of the information relating to the property. Some information has been obtained from third parties and has not been independently verified. Pictures are for illustration purposes only.*

Get in touch

We'd love to hear from you

If you're interested in looking at properties around the area, or want the latest information on the market in your neighbourhood, we'd love to hear from you. 

Lot 31 Woodville Road Woodville 5011, South Australia
Back to top