We bring market insights, news and lifestyle updates direct to your inbox.

Sign up to our newsletters >

See the properties 
defining luxury in the 
Luxury Homes magazine

Property main details

3
1
5

Home For Sale

  • Sold For $500,000
  • House

Specifications

  • Property Type
    House
  • Land
    792 m2

UNDER CONTRACT PRIOR TO AUCTION UNDER VENDOR'S INSTRUCTION!!

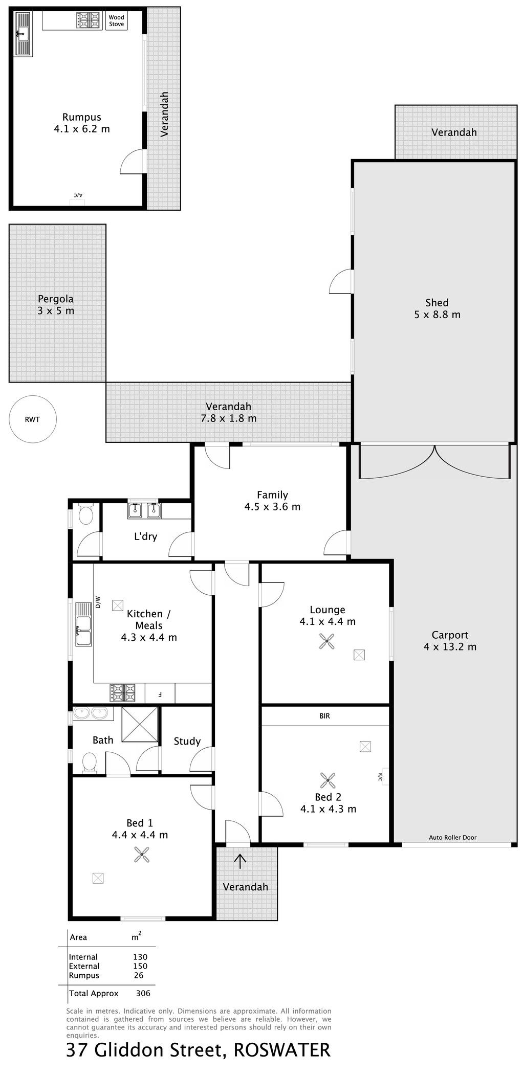
Nick Psarros & Nathaniel Kennerdale of Ray White Port Adelaide is pleased to present to the market this great opportunity to own this beautifully renovated 3 bedroom family home with a granny flat on a huge block in a wide tree lined street. Don't miss this great opportunity!!

FEATURES WE LOVE:
*3 Good size bedrooms
*Huge master with ceiling fan, access to stunning two way bathroom, character ceiling rose
*2nd bedroom with huge mirrored built-in robes, ceiling fan, split system a/c
*Granny flat/studio with kitchenette & original wood burning stove
*Central corridor
*Brand new Braemar ducted air conditioning
*Polished hardwood timber boards
*Sparking top quality & fully tiled bathroom with double vanity, double rainforest shower
*Stunning eat-in country kitchen with double sink, lots of storage & bench space & sought after gas top cooking
*Large lounge with hardwood floors, ceiling fan & character ceiling rose
*Study
*Family room flooded with natural light overlooking the backyard
*Good size laundry with original trough & linen storage
*Separate 2nd toilet
*Large back garden with lush lawns, mature plants and fruit trees with raised garden beds
*Rain water tank
*Low maintenance front yard
*Off street parking for 3x vehicles
*Undercover secure carport for 3x carport
*Drive through garage access for 2x vehicles
*Tool shed
*Mechanic's Pit
*Screen doors

Rosewater is situated in the western suburbs of Adelaide and is located 10 km north-west of Adelaide's central business district. Local schools include Mount Carmel College and Our Lady of Mount Carmel Parish School. Attractions nearby include the Rosewater Football Club, Rosewater Bowling Club, fantastic parks & walking trails. Amenities include, Alberton IGA, Discount Pharmacy, Fish & Chip Shops, Rosewater Foodland, Grand Health Medical Clinic and many more. Although mainly residential, there are many shops along Grand Junction Road and the retired "Rosewater Loop" railway line runs through the suburb. Originally, the area was mainly used as vegetable and dairy farmland but became more and more residential as the railway lines and Grand Junction Road were completed and as Port Adelaide grew and developed. Rosewater was also the site of the Adelaide Radio (VIA) maritime radio station system from 1912 to 1963.

Disclaimer: Neither the Agent nor the Vendor accept any liability for any error or omission in this advertisement.
Any prospective purchaser should not rely solely on 3rd party information providers to confirm the details of this property or land and are advised to enquire directly with the agent in order to review the certificate of title and local government details provided with the completed Form 1 vendor statement.

"The vendors statement may be inspected at 129 Port Road, Queenstown for 3 consecutive days preceding the auction and at the auction for 30 minutes before it starts."

Get in touch

We'd love to hear from you

If you're interested in looking at properties around the area, or want the latest information on the market in your neighbourhood, we'd love to hear from you. 

37 Gliddon Street Rosewater 5013, South Australia
Back to top