We bring market insights, news and lifestyle updates direct to your inbox.

Sign up to our newsletters

See the properties 
defining luxury in the 
Luxury Homes magazine

Property main details

3
2
2

Home For Sale

  • Sold
  • House

Specifications

  • Property Type
    House

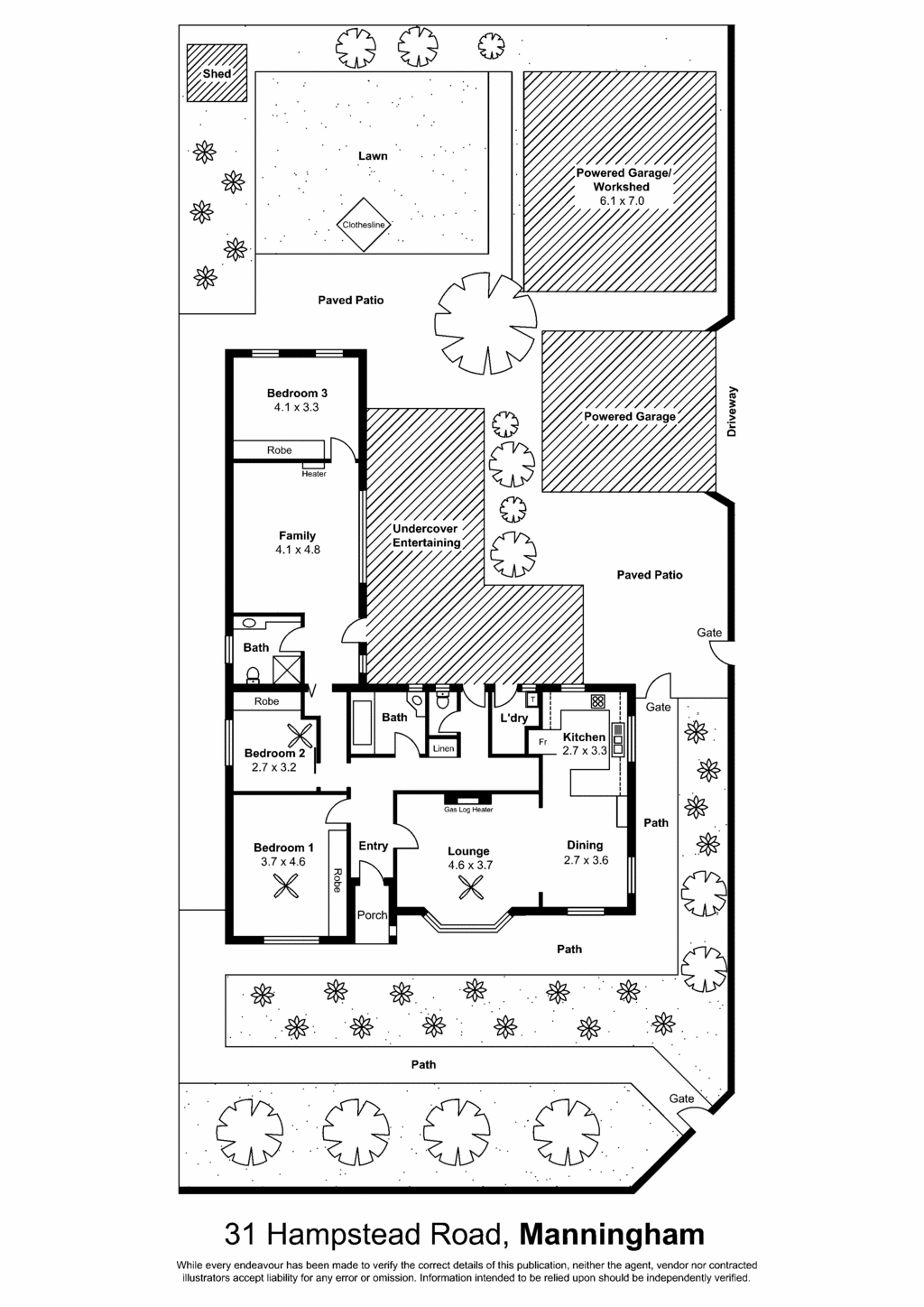
Charming Character Residence On Large Corner Block

Appealing solid brick three bedroom character home with attractive gabled facade includes a red brick perimeter wall to both street frontages.

Situated on a large level corner allotment, the driveway and garage are located on the side street where there is also plenty of parking available.

The front porch leads into an entrance hall with polished timber floors which continue into the lounge and bedrooms. Tall ceilings and light neutral colour scheme feature throughout.

An elegant formal lounge boasts a wide bay window, ceiling fan, downlights and a beautiful gas log fireplace.

Adjacent is the fabulous open plan kitchen and dining area featuring stunning solid timber cabinetry with plenty of overheads and a built in wall unit. Quality appliances include an old world style under bench oven plus a gas stainless steel cook top with retractable rangehood.
The generous master bedroom is situated at the front and includes a built in robe plus ceiling fan as does bedroom two.

The home also boasts two lovely bathrooms with heritage style tiling and polished timber vanities.

A rear extension has been cleverly integrated with the original dwelling and incorporates a spacious family room with carpet and space heater, plus a big third bedroom with built in robe.

This wing of the home also includes the second bathroom and would suit a grandparent, older teen or boarder. It has its own separate entrance which leads out to a large undercover entertaining patio and side street access gate.

Family and pet friendly the established rear garden includes level lawn area, paved patios, clothesline and garden shed.

Other notable features of this great property include ducted evaporative cooling, separate laundry, undercover entertaining, big powered workshed ideal for handyperson, security alarm system plus front and rear security screen doors.

In a highly sought after location and positioned for living convenience it is within close proximity to shops, schools and transport and just a few minutes drive to the CBD.
Comfortable as is, it has great potential for further renovation and would make a fantastic investment property with possibility of redevelopment in the future.

Overview:
- Character solid brick home
- Large level corner allotment
- Side street access to driveway and garage
- Three bedrooms all with robes
- Elegant formal lounge with bay window
- Open plan kitchen and dining
- Stunning solid timber kitchen
- Quality gas appliances
- Family room with space heater
- Separate entrance via family room
- Suits grandparents or boarder
- Gas log fireplace in lounge
- Ducted evaporative cooling
- Ceiling fans
- Two heritage style bathrooms
- Two toilets
- Separate laundry
- Built in linen press
- Tall ceilings
- Polished timber floors
- Outdoor undercover entertaining
- Powered garage with concrete driveway
- Large powered work shed
- Security screen doors
- Alarm system
- Established gardens
- Garden shed
- Clothesline
- Great investment/rental property
- First home buyers
- Fantastic opportunity in top location
- Attention all investors/developers
- Close to local shopping centres and transport
- Close to schools and all amenities
- Minutes to CBD

For Investment Information on this property please copy and paste this link into your browser
http://www.propertymanagersadelaide.com.au/

Get in touch

We'd love to hear from you

If you're interested in looking at properties around the area, or want the latest information on the market in your neighbourhood, we'd love to hear from you. 

31 Hampstead Road MANNINGHAM 5086, South Australia
Back to top