We bring market insights, news and lifestyle updates direct to your inbox.

Sign up to our newsletters

See the properties 
defining luxury in the 
Luxury Homes magazine

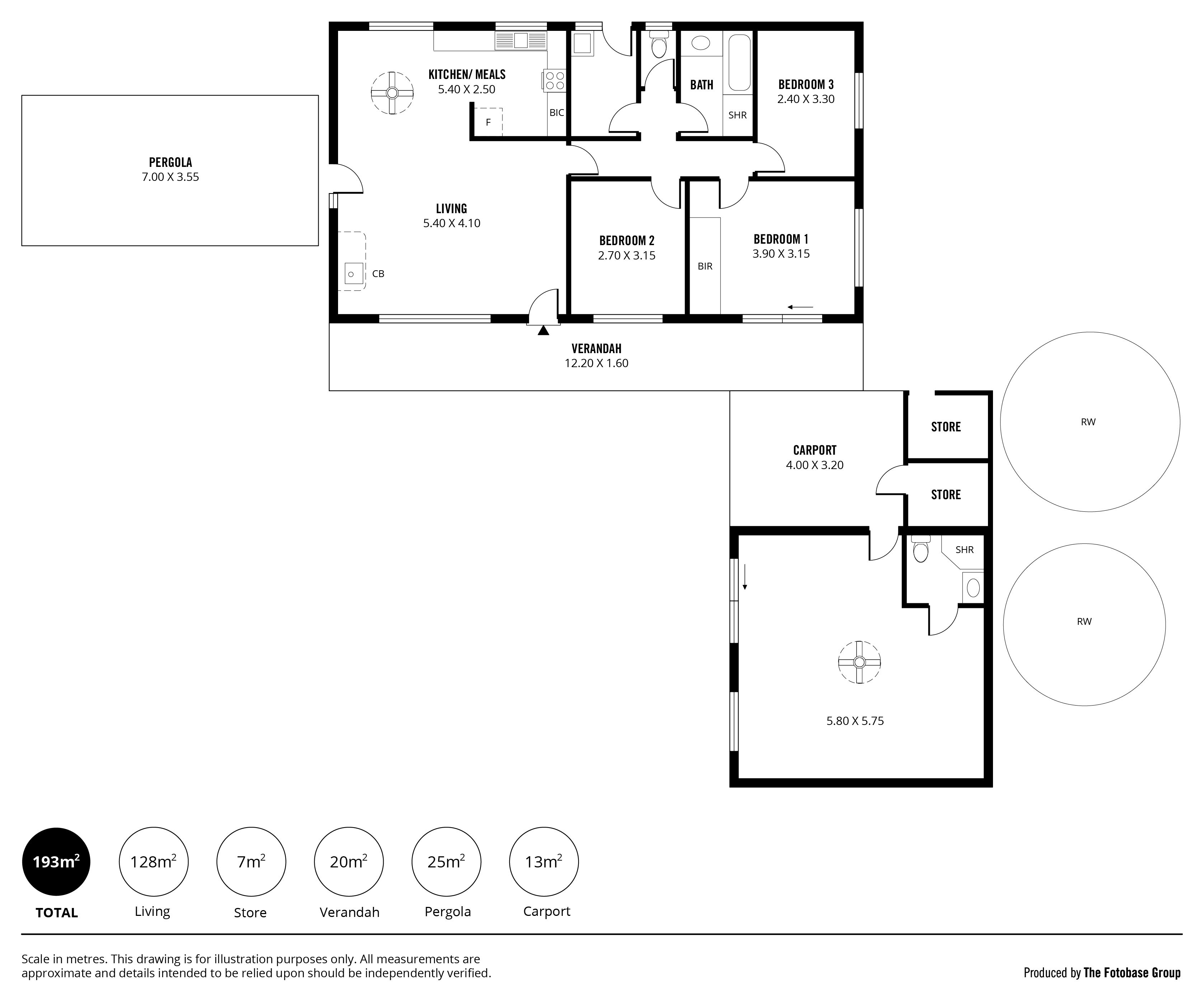
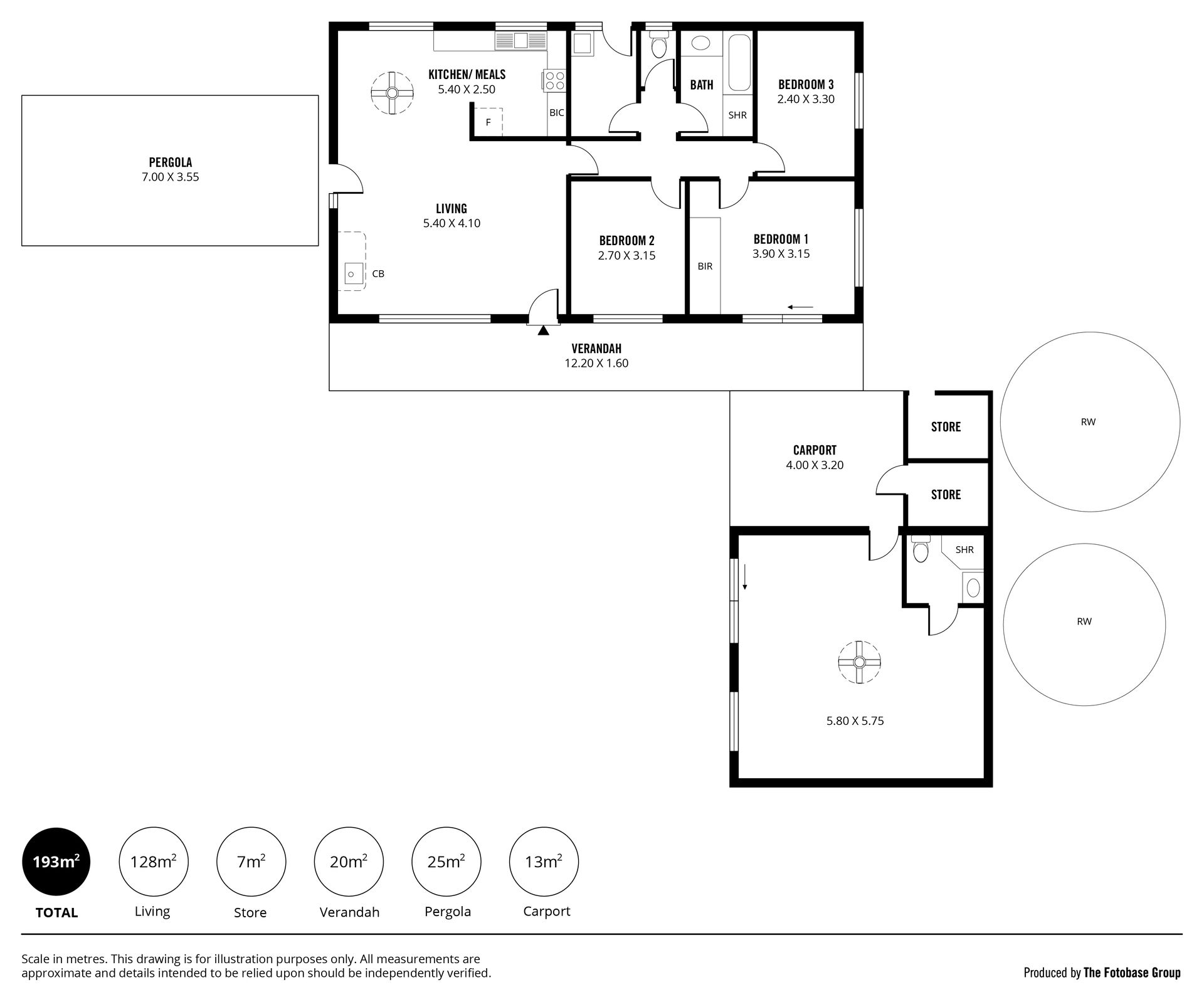
Property main details

3
1
1

Home For Sale

  • Sold For $490,000
  • House

Specifications

  • Property Type
    House
  • Land
    1248 m2

Hidden Away Amongst The Nature

Ray White Strathalbyn is delighted to present this 1991-built home situated on a gorgeous 1,248 sqm allotment.

Hidden away, amongst nature, this intimate 3 bed, 1 bath home, you're welcomed into the home by plenty of natural light in the open-plan living area, with a toasty combustion heater to keep you warm on those cold nights. The generously sized master bedroom once again has plenty of natural light streaming through as well as a built-in robe.

Outside among the trees, is a 1 bedroom, 1 bath studio. The possibilities for this studio are endless. Whether it's for teenagers, a quiet space for the visiting family members, or for the home office, the studio is definitely a welcomed addition. Complemented by a paved undercover entertaining area situated on the side of the house, it is the perfect place to sit with your morning coffee taking in the quiet scenery before starting a busy day.

This home suits all types of buyers' needs, whether you're a first home owner, downsizer or someone who would like a little project to make their own, this intimate home is not to be missed!

Internal Features include:

• Master bedroom with BIR
• Open-plan living
• Combustion heating
• Natural tones and lighting

External features include:

• Surrounded by natural scenery
• Granny flat with ensuite
• 2 large water tanks
• 1,248sqm allotment
• 7m x 3.55m Pergola

Nearby features
• 1-minute drive to Macclesfield Primary School
• 1-minute drive to Crystal Lake Park
• 2-minute drive to local wineries
• 3-minute drive to local cafes

Just 15 minutes from Mount Barker and 45 minutes from Adelaide CBD. In addition, Macclesfield itself has a lot to offer.

This home is a must to inspect!

For more information, contact Joshua Bagley available 7 days on 0487 823 645.

Get in touch

We'd love to hear from you

If you're interested in looking at properties around the area, or want the latest information on the market in your neighbourhood, we'd love to hear from you. 

49 Luck Street Macclesfield 5153, South Australia
Back to top