We bring market insights, news and lifestyle updates direct to your inbox.

Sign up to our newsletters

See the properties 
defining luxury in the 
Luxury Homes magazine

Property main details

Commercial

  • Sold
  • Land/Development

Specifications

  • Property Type
    Land/Development
  • Building
    1 m2
  • Land
    11360 m2

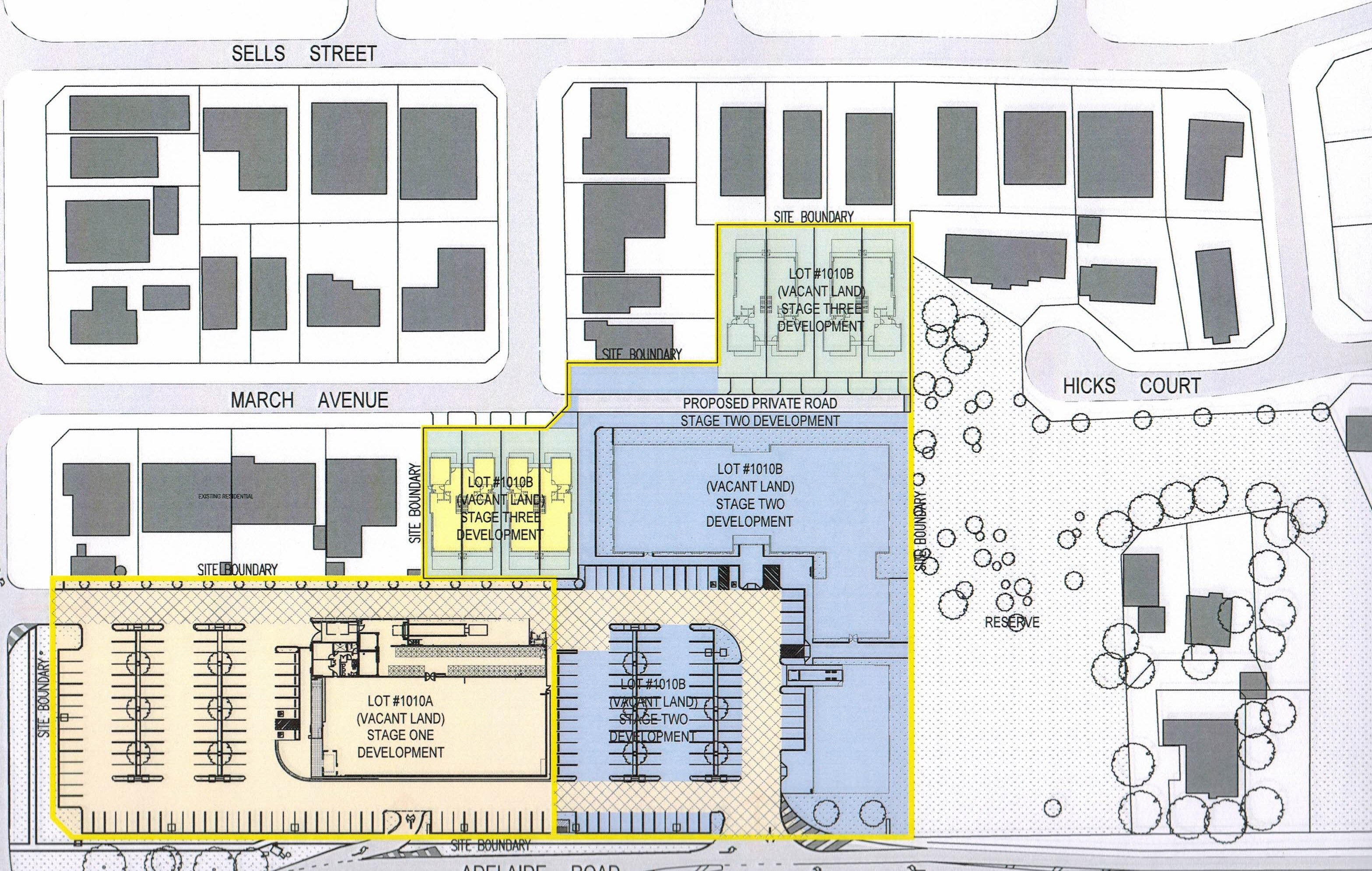
Prime Commercial Development Site adjacent to Aldi, walking distance to Bunnings, Coles, Liquorland and Reject Shop

This is a rare opportunity to purchase a premium land holding of 11,630 sqm in this newly formed Arterial Road retail precinct with valuable exposure to Adelaide Road, gateway to Victor Harbor with 10,000 vehicles passing daily.

The link to video is as follows:
https://youtu.be/KqPjV8WHBkA

Zoned Suburban Activity Centre

Suit a wide range of retail, commercial,residential, medical, hospitality, education, community, recreational uses (STCC).

Approval is granted for a mixed use development comprising medical, residential and retail uses.

The site has a recently completed 97 vehicle car park with underground stormwater drainage, car park lighting, landscaping and kerbing.

EOI Closing Thursday 1 pm 24 June 2021

_________________

Victor Harbor, South Australia's major regional centre and tourist destination is experiencing a period of significant growth and renewal with the recent redevelopment of the Adelaide Road gateway and retail precinct incorporating Aldi, Bunnings, Coles, Liquorland and the Reject Shop. With future projects to include major fuel/convenience retailers.

Add to this, international investment in the iconic McCracken Country Club soon to become a major Discovery parks tourist resort with a $40 million upgrade providing an international standard 18 hole golf course, 100 powered caravan sites, restaurant and conference facilities, accommodation options and a fun park just a stone's throw from the subject property.

The Anchorage redevelopment in the city centre will incorporate a 126 room 4.5 star hotel with 400 seat function centre, operated by the international Wyndham Group and constructed at an estimated cost of $40 million. At the rear of the site a new 226 space multi-level car park which will service the growing number of visitors to Victor Harbor. The City of Victor Harbor has demonstrated that they are 'open for business' completing their award winning Main Street re- development incorporating main street, historic railway precinct and future arts & culture centre, creating a truly impressive seaside destination.

Meanwhile, the State Government has invested $43 million in the construction of a new Causeway linking Victor Harbor to the beautiful Granite Island.

In summary:
-Prime Commercial Development Site 11,630 sqm with 97 new car parks
-New Retail Hub, Aldi, Bunning, Coles, Liquorland and Reject Shop
-McCracken Country Club - Discovery Parks $40 million redevelopment
-The Anchorage - Wyndam Group $40 million redevelopment
-New 226 multi-level car park in city centre
-Adelaide Road gateway & Main Street upgrade
-New Causeway link to Granite Island $43 million
-New Arts and Culture Centre

Get in touch

We'd love to hear from you

If you're interested in looking at properties around the area, or want the latest information on the market in your neighbourhood, we'd love to hear from you. 

50-54 Adelaide Road Hayborough 5211, South Australia
Back to top