We bring market insights, news and lifestyle updates direct to your inbox.

Sign up to our newsletters

See the properties 
defining luxury in the 
Luxury Homes magazine

Property main details

4
1
3

Home For Sale

  • Sold
  • House

Specifications

  • Property Type
    House
  • Building
    156 m2
  • Land
    1011 m2

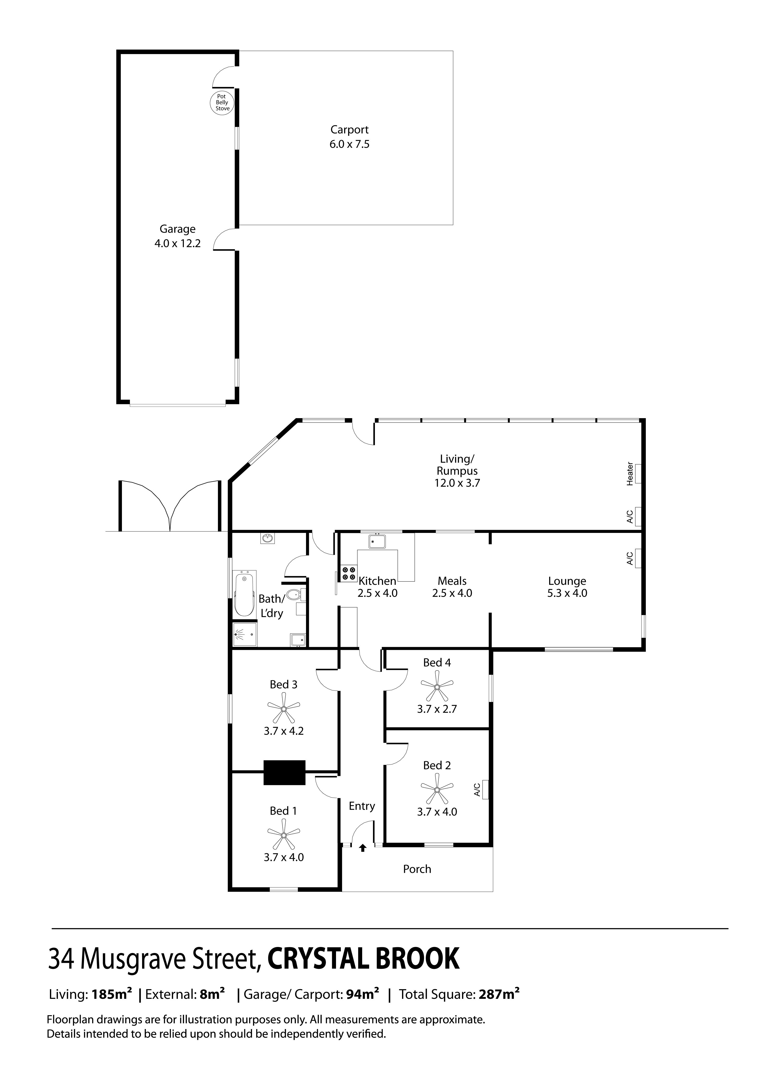
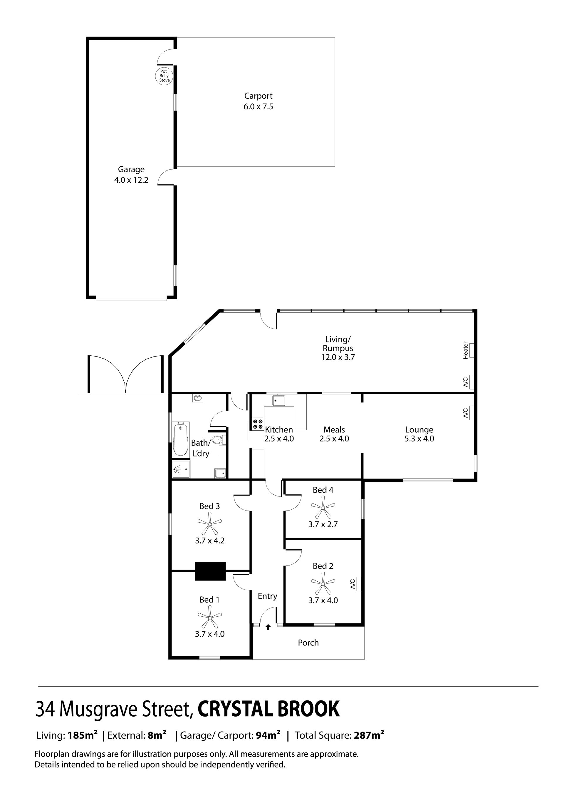
Homely and Spacious Stone Home

Walk through the front door into a well designed, 1890 stone home. A blank canvas, to create a new look, a modern touch and a place to call home.

The foundations are here:
• Polished floor boards in the entrance hall and bedrooms.
• Four bedrooms at the front, three with a ceiling fan, one with both a fan and split system.
• High ceilings opening into the large tiled kitchen and dining space.
• Generous size lounge room. Split system over a freshly carpeted family or entertaining space.
• Main bathroom is spacious and consists of a shower and claw-foot bath.
• Rear of the house offers a second living space, beaming with natural light. Equip with both a split system air conditioner and a wood combustion heater for year-round comfort.
• Large low maintenance back yard.
• Three bay garage with cement floor and power. There is also a pot belly fire for an additional entertaining space.
• Large outdoor pergola with cement floor.
• Rainwater storage and mains connection.
• Set on a 1,011m2 block.

A property set for entertaining and ready for a family to come in with a open heart. Alternatively, take advantage of the current rental demand and have this property as a profitable investment.

$270,000

Lauren Ferme
0466 072 288

Get in touch

We'd love to hear from you

If you're interested in looking at properties around the area, or want the latest information on the market in your neighbourhood, we'd love to hear from you. 

34 Musgrave Street Crystal Brook 5523, South Australia
Back to top