We bring market insights, news and lifestyle updates direct to your inbox.

Sign up to our newsletters

See the properties 
defining luxury in the 
Luxury Homes magazine

Property main details

3
1
2

Home For Sale

  • Sold
  • House

Specifications

  • Property Type
    House
  • Land
    809 m2

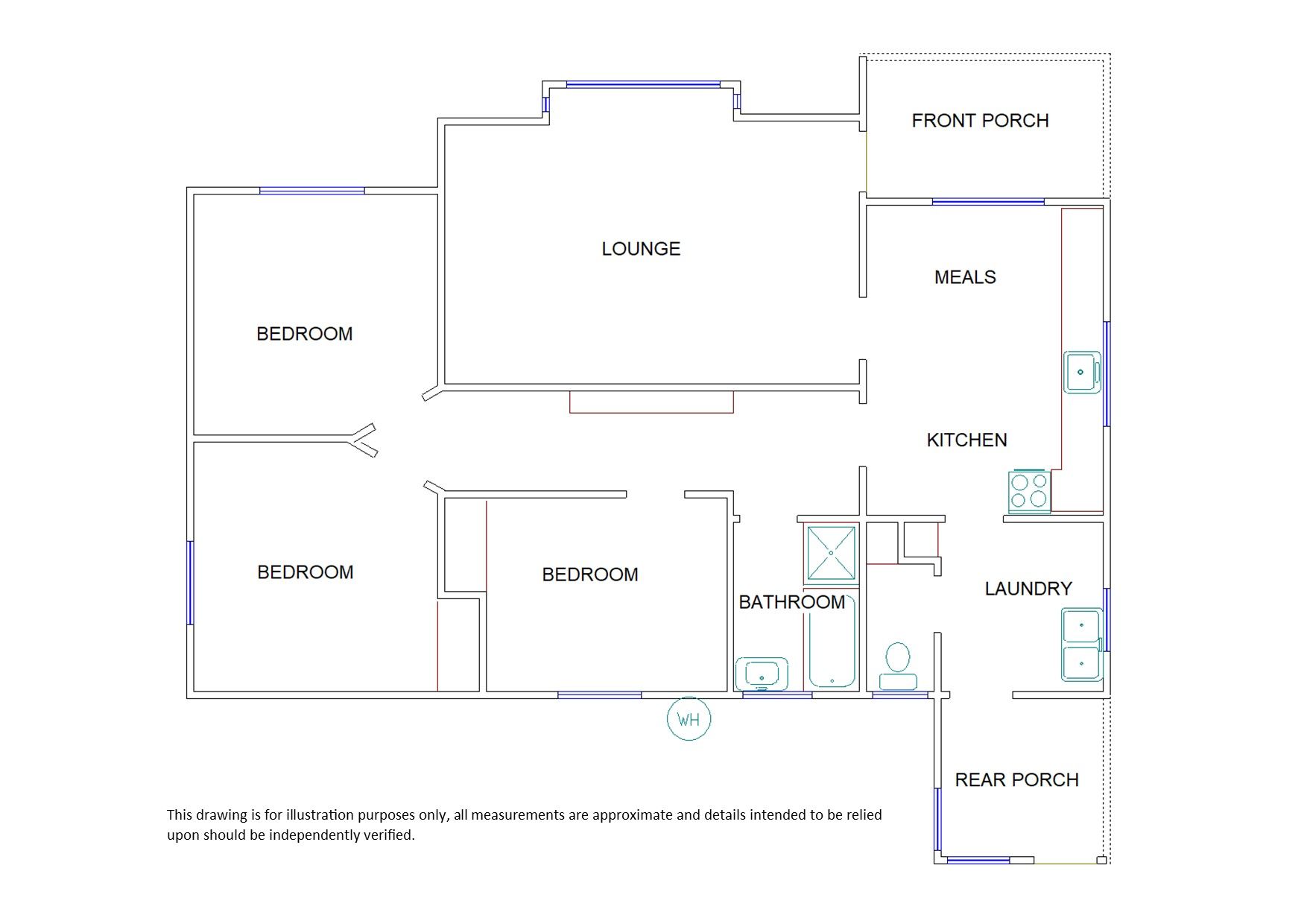
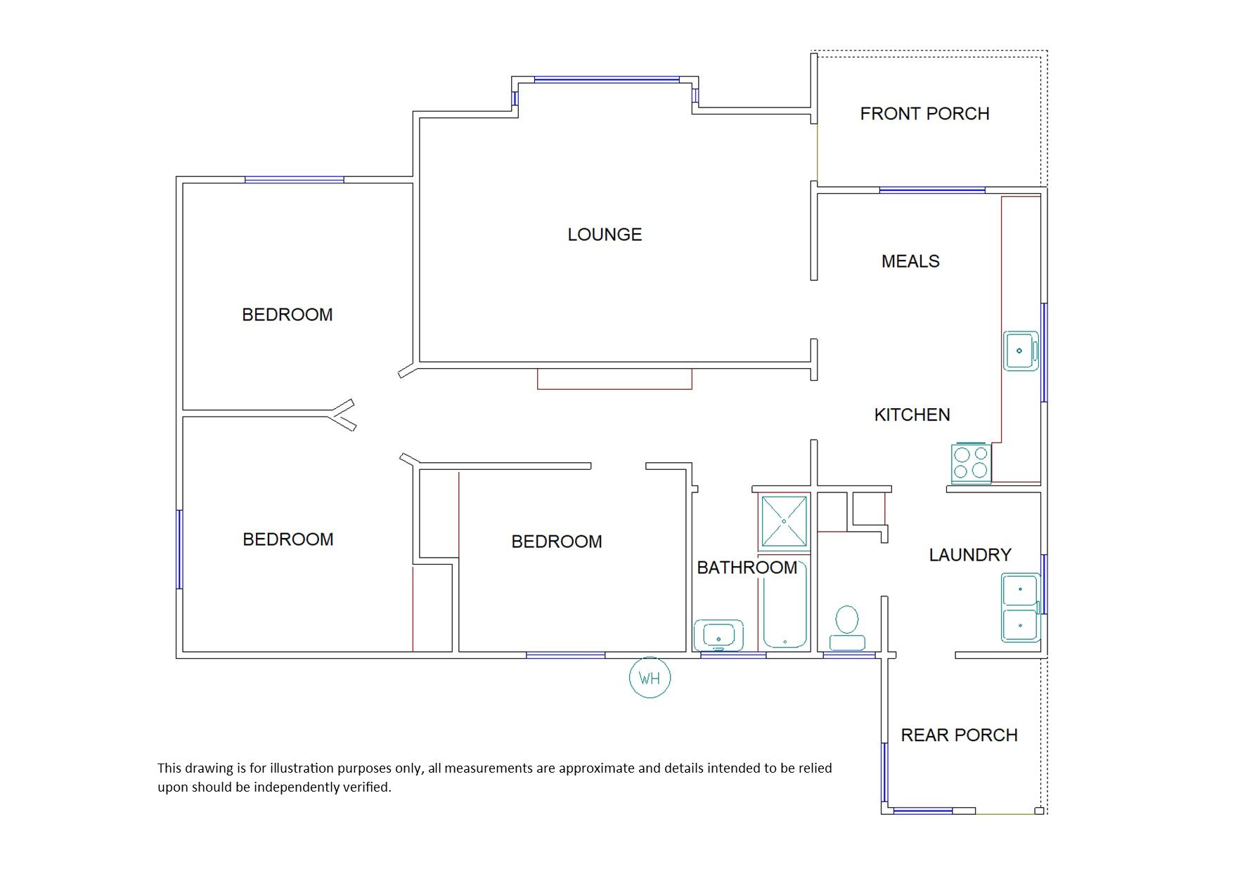
Home Sweet Home!

Neat, sweet and perfect for the first home buyer or investor! Situated on an approx. 809m2 corner allotment in a quiet residential area, yet short walking distance to schools, sporting grounds and Main Street makes its location well desired.

Three bedrooms, two with the convenience of built-in cupboards and one with ceiling fan. Central bathroom with bath, shower and separate toilet off the laundry.

Light and bright kitchen with gas oven and enough room for a family dining table. Spacious lounge room with split system air conditioner, gas heater and ceiling fan. Rear porch, front porch with blinds and roller shutters along the front.

Outside features include shed/garage with concrete floor, garden shed, established gardens and fully fenced rear yard. Fruit trees and room for a chicken yard out the back.

With the current rental shortage, this property may stand out to the investor. And with the lack of properties on the market at this price point, it's sure to move quickly!

Keep a look out for open inspections or contact us to organise a viewing.
For more information or for any real estate enquires, current market trends or to sell your property please call our friendly team today.

RLA 153432

Get in touch

We'd love to hear from you

If you're interested in looking at properties around the area, or want the latest information on the market in your neighbourhood, we'd love to hear from you. 

8 Jervois Street Bordertown 5268, South Australia
Back to top