We bring market insights, news and lifestyle updates direct to your inbox.

Sign up to our newsletters

See the properties 
defining luxury in the 
Luxury Homes magazine

Property main details

4
1
4

Home For Sale

  • Sold For $1,210,000
  • House

Specifications

  • Property Type
    House
  • Building
    282 m2
  • Land
    750 m2

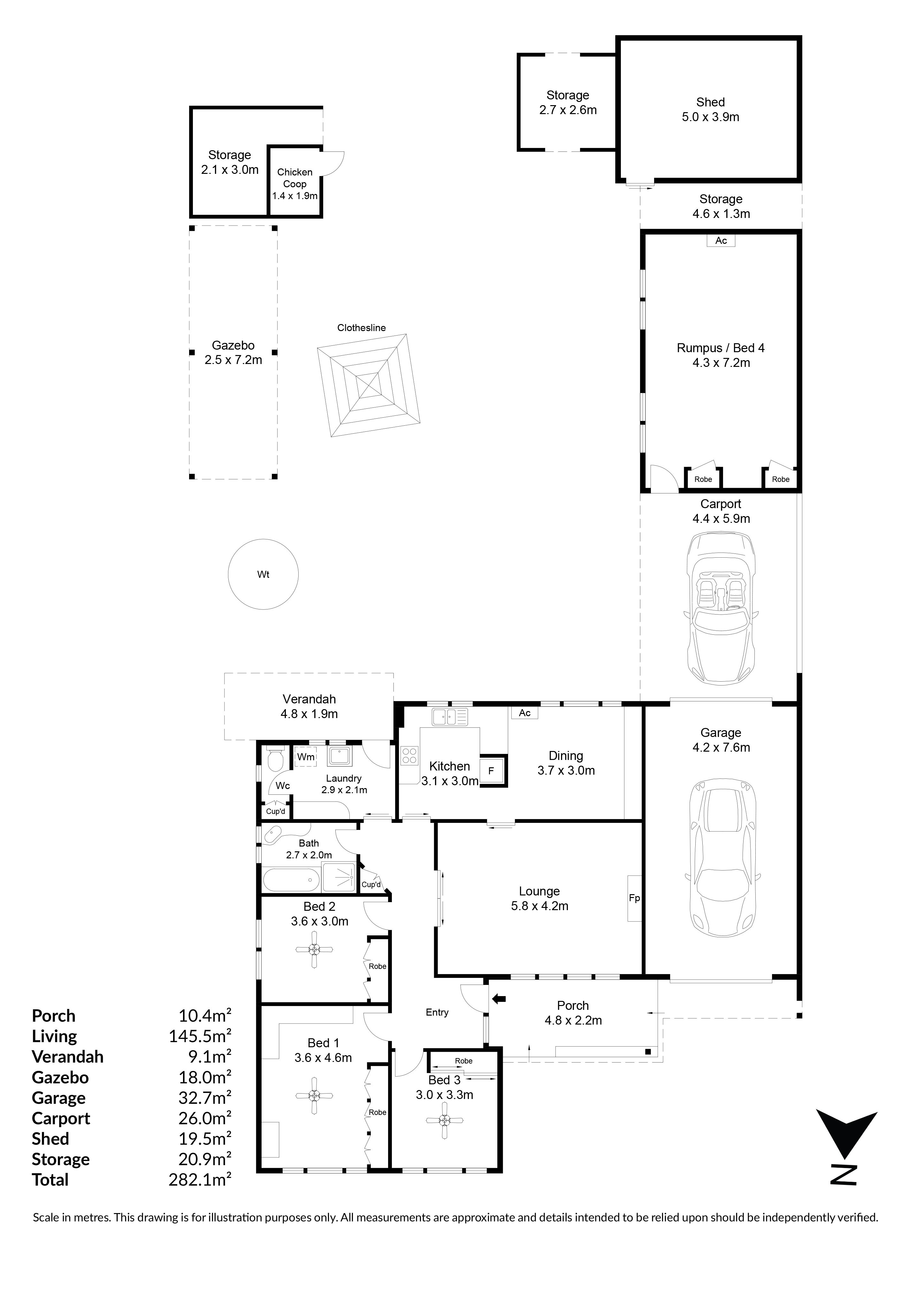
Solid, Mid-Century Marvel with Pristine Gardens

Step into a world where classic mid-century elegance meets lovingly cultivated landscapes at 55 Manuel Ave, Blair Athol. This gorgeous solid brick home, firmly rooted in its 1967 origins, presents not just a living space but a testament to the care and devotion it has enjoyed over the years. Now, it seeks a new steward, someone who appreciates its retro charm and the potential that its generous 750sqm allotment holds.

Within its secure fencing, you'll discover three bedrooms, each a cozy sanctuary featuring carpeted floors, built-in wardrobes, and ceiling fans. The main bathroom stand centrally within the home, ready to cater for the whole family, while an additional toilet conveniently sits within the private laundry.

An external granny flat stands as a testament to this property's versatility. Equipped with a built-in robe and an air conditioning unit, this additional dwelling offers an array of possibilities, from a private retreat for extended family to a creative studio space.

At the heart of the residence, a large lounge room invites intimate gatherings with its warm fireplace, plush carpet, and sliding wooden glass doors adorned with lead lattice detail-a nod to the exquisite craftsmanship of its era.

A 1.5kw solar panel system adorns the roof, contributing to the home's energy efficiency and environmental responsibility.

Culinary pursuits await in the U-shaped kitchen, where classic timber cabinetry houses a Nobel oven and gas stove, ready to serve. The adjoining dining area, with a custom-built wooden display unit and a split system air conditioner, provides a delightful setting for cherished family dinners.

The beauty of this home extends to the pristine backyard, where a white pergola area overlooks crisp manicured lawns, inviting outdoor living and celebrations. A large shed and workshop area cater to the hands-on enthusiast, offering space for garden tools and appliances.

Ideally situated just a short walk from bus stops and shopping centers. Located under 8 km from the CBD and only minutes' drive from Prospect and North Adelaide, this property offers unparalleled convenience and connectivity. Don't miss this exceptional opportunity!

Vehicle accommodation is a breeze with a two-car garage complete with a roller door and an additional carport, ensuring plenty of space for cars, hobbies, or even a boat.

This Blair Athol home offers a slice of history, ready and waiting to shape the stories for its newest residents, promising endless enjoyment and the continuation of a legacy of love and meticulous care. Here, mid-century style, quality craftsmanship and garden serenity come together, offering a unique opportunity to reside in a suburb both tranquil and teeming with promise.

Additional Features:
• White boundary fencing at the front of the property ensure full security and privacy
• Original Hills Hoist clothes line in the backyard
• External retro style blinds on most windows
• Timber cladded ceiling in the granny flat

• Nearby schools include: Enfield Primary School, St Brigid's School, Prospect North Primary School, Paul Lutheran School, Blair Athol North School, Our Lady of the Sacred Heart School, Roma Mitchell Secondary College, Cedar College, Prescott College, Blackfriars Priory School


Disclaimer: As much as we aimed to have all details represented within this advertisement be true and correct, it is the buyer/purchaser's responsibility to complete the correct due diligence while viewing and purchasing the property throughout the active campaign.


PLEASE NOTE: This property is being auctioned with no price in line with current real estate legislation. Should you be interested, we can provide you with a list of recent local sales to help you with your market and value research.

Get in touch

We'd love to hear from you

If you're interested in looking at properties around the area, or want the latest information on the market in your neighbourhood, we'd love to hear from you. 

55 Manuel Avenue Blair Athol 5084, South Australia
Back to top