We bring market insights, news and lifestyle updates direct to your inbox.

Sign up to our newsletters

See the properties 
defining luxury in the 
Luxury Homes magazine

Property main details

4
1
2

Home For Sale

  • Sold For $837,000
  • House

Specifications

  • Property Type
    House
  • Land
    576 m2

To finalise an estate!

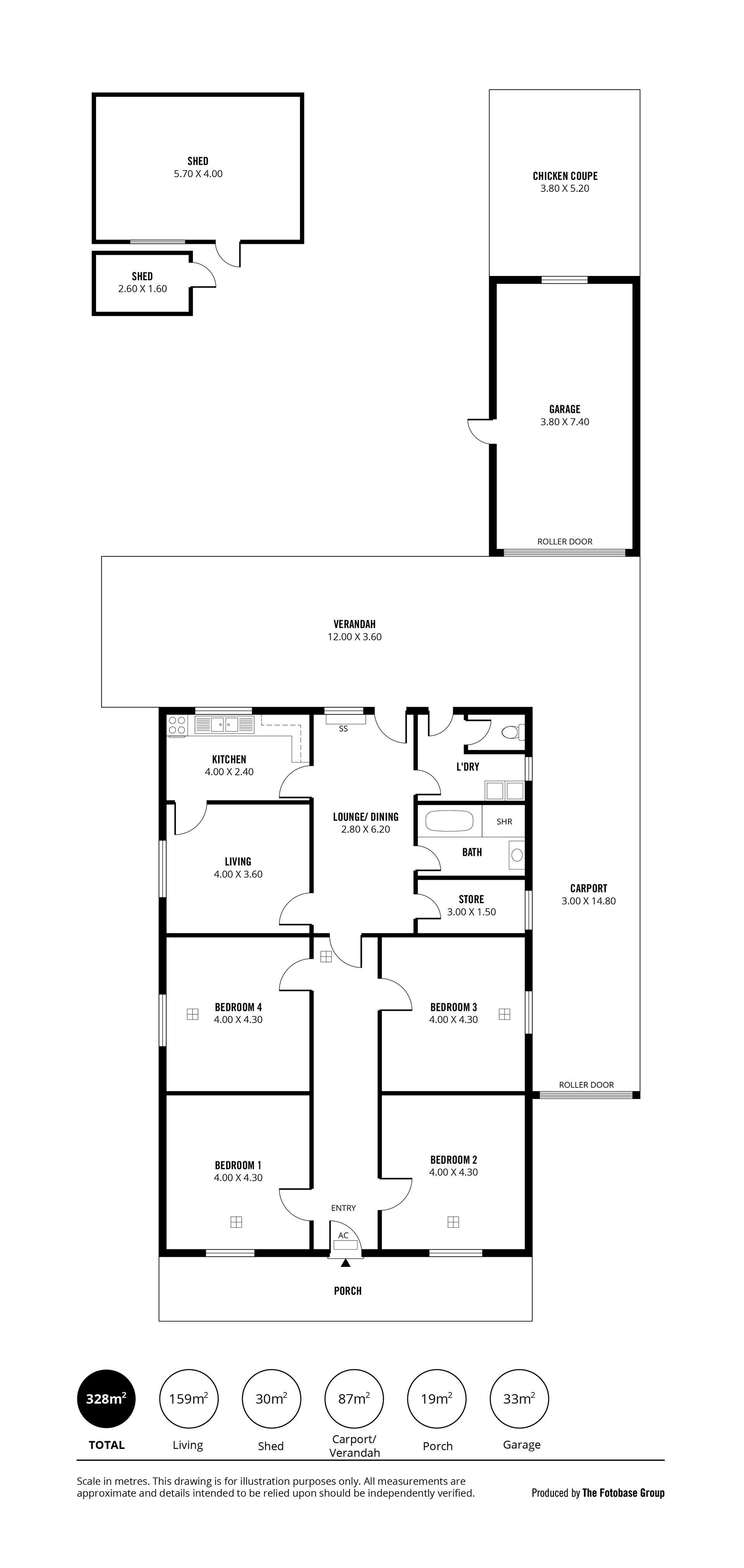
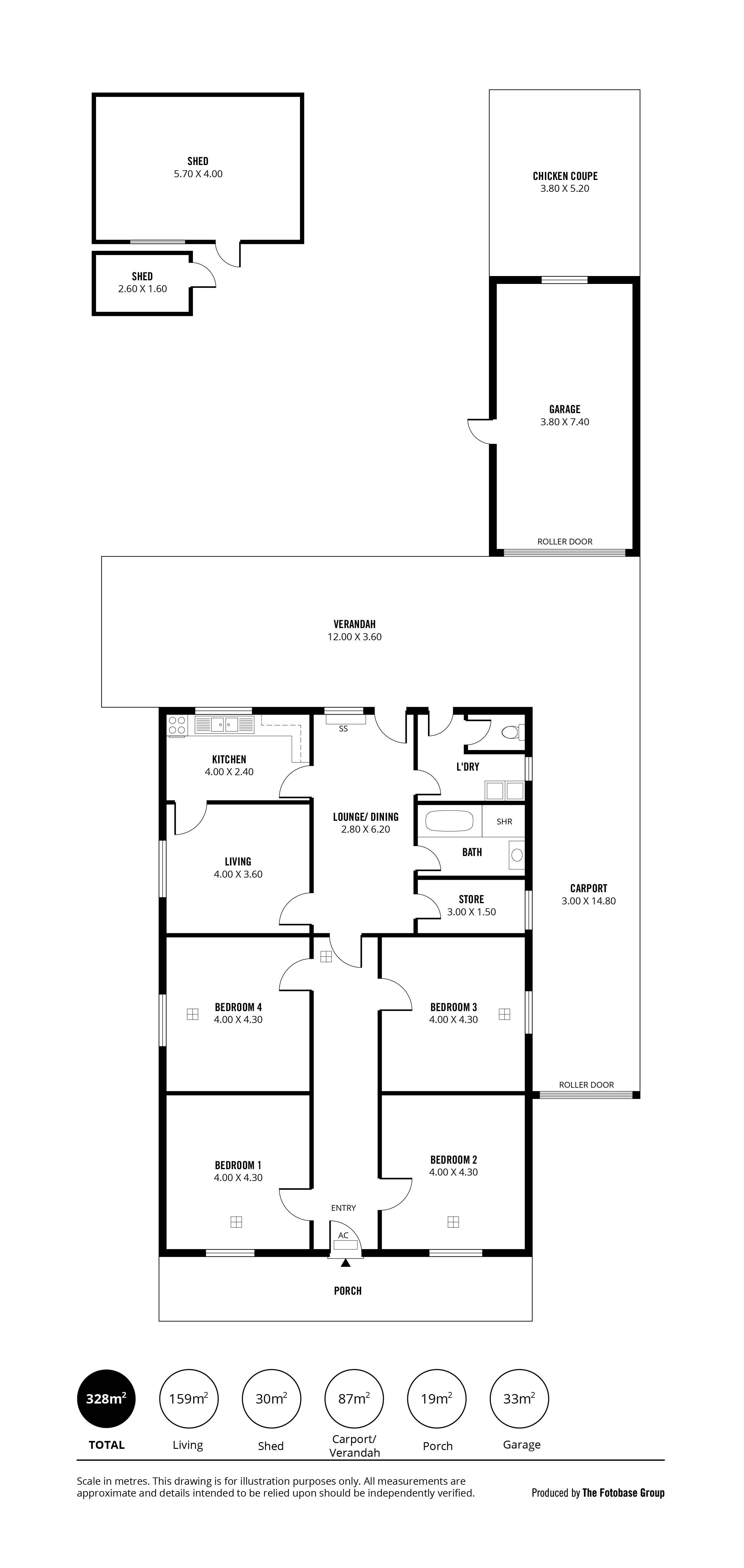
A remarkable Symmetrical style cottage home situated in the Eastern suburbs ripe for refurbishment. This stone fronted home has all the character and charm of the early 1900's. Solid brick in construction, offering high ceilings, 4 extra-large bedrooms located at the front of the home with ducted reverse cycle air throughout. A neat and tidy kitchen onlooking the abundant backyard with a separate meals and lounge area to boot. Plenty of room to move out the back and entertain friends and family under the veranda. Or even perhaps extend and expand (STCC).
A large undercover carport that extends through to the garage perfect for a workmen's shed or simply used for extra storage. Situated on 576 sqm of land approx in a quiet setting only minutes from the Norwood Parade and only 5 km approx from the Adelaide CBD. Shopping is made a breeze with great facilities available at Erindale Shopping centre as well as the Norwood parade. This is an ideal location to bring up your family in a highly desired city fringe location. Entrenched with great parks such as Kensington Oval and Haslam Oval as well as School zoned for Marryatville Primary School amd Norwood Morialta High school. This home truly ticks all the boxes.


All information provided has been obtained from sources we believe to be accurate, however, we cannot guarantee the information is accurate and we accept no liability for any errors or omissions (including but not limited to a property's land size, floor plans and size, building age and condition) Interested parties should make their own enquiries and obtain their own legal advice.

Get in touch

We'd love to hear from you

If you're interested in looking at properties around the area, or want the latest information on the market in your neighbourhood, we'd love to hear from you. 

10 Scott Street Beulah Park 5067, South Australia
Back to top