We bring market insights, news and lifestyle updates direct to your inbox.

Sign up to our newsletters

See the properties 
defining luxury in the 
Luxury Homes magazine

Property main details

3
1
2

Home For Sale

  • Sold For $125,000
  • House

Specifications

  • Property Type
    House
  • Building
    99 m2

Invest in this address!

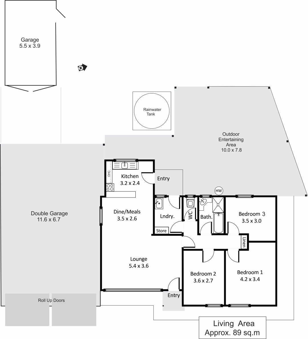
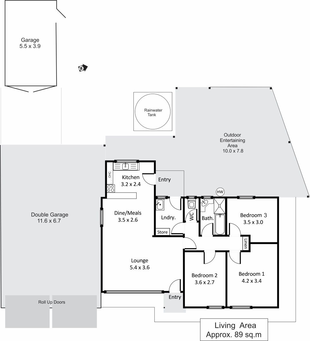
If you're looking for an investment or your own first home, well look no further as this maybe the one for you. This property is priced sell is a double brick home that boasts three good size bedrooms and has housed the current tenant for the past two years.
Open entry from the front porch into the lounge with its polished timber floors and reverse cycle air conditioning, which is over looked by the open plan kitchen and dining area that has solid timber overhead and under bench cabinetry and electric stove.
Down through the passage that has a four door linen press are the three good size bedrooms that are carpeted, and have previsions for built in robes and ceiling fans
Located centrally to the home is the bathroom with a corner shower, separate bath, mirrored shaving cabinet and a bar heater for those chilly mornings.
You have a laundry with four door storage cupboard, stainless wash tub and outside access onto the back veranda that's undercover. There is also a spacious pergola which is fully weather proofed and has concrete floor which would be perfect for year round entertainment.
To the side of the home you have a large two bay carport with roller doors that has been concreted and has great lighting. In this good size yard you also have a fully fence and separated rear yard that's great for the large pets or children's play area. With the added bonus of a 3m x 6m shed with concrete floor, power and lighting which is great for all your storage needs.

Get in touch

We'd love to hear from you

If you're interested in looking at properties around the area, or want the latest information on the market in your neighbourhood, we'd love to hear from you. 

1 Gillespie Street Berri 5343, South Australia
Back to top