We bring market insights, news and lifestyle updates direct to your inbox.

Sign up to our newsletters >

See the properties 
defining luxury in the 
Luxury Homes magazine

Property main details

3
1
2

Home For Sale

  • Sold
  • Under Offer
  • House

Specifications

  • Property Type
    House

SOLD BY PAUL ARNOLD 0433 677 696

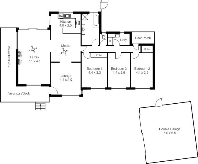
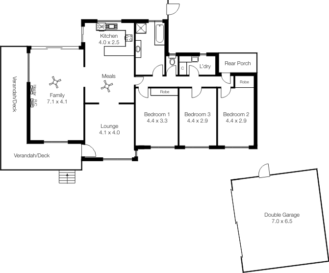
Large 3 bedroom home with 3 living spaces and glorious views to Black Hill. Enjoy the coming summer evenings from the covered balcony deck. Open plan living of generous proportions with neutral colours, picture windows to enjoy the view and new carpet throughout. Plenty of bench space in the fresh kitchen with dishwasher. Set on a large corner block with room for the kids and lock up double garage, this home will suit first home owners, the growing family or investors.

This well presented home is priced to sell and has many additional features, close to schools and all facilities. Be very quick for this one.
Call the agent Paul Arnold 0433 677 696 for further information.

RLA119246

Get in touch

We'd love to hear from you

If you're interested in looking at properties around the area, or want the latest information on the market in your neighbourhood, we'd love to hear from you. 

4 Lymn Avenue ATHELSTONE 5076, South Australia
Back to top