We bring market insights, news and lifestyle updates direct to your inbox.

Sign up to our newsletters

See the properties 
defining luxury in the 
Luxury Homes magazine

Property main details

3
1
2

Home For Sale

  • Sold
  • House

Specifications

  • Property Type
    House

Stone Fronted Character Home

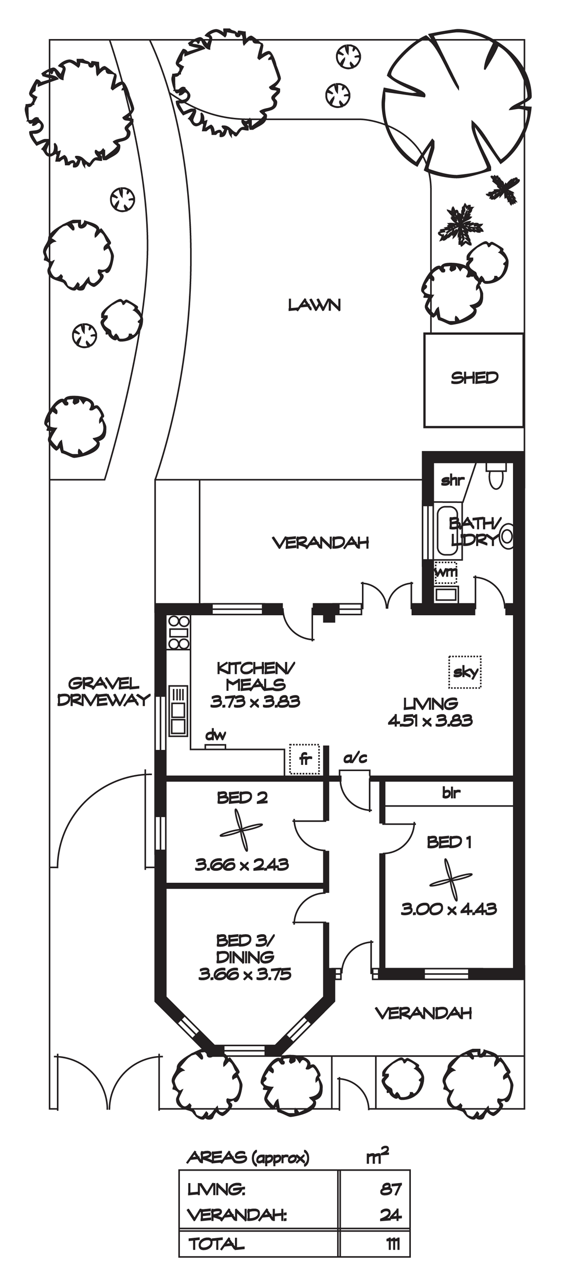
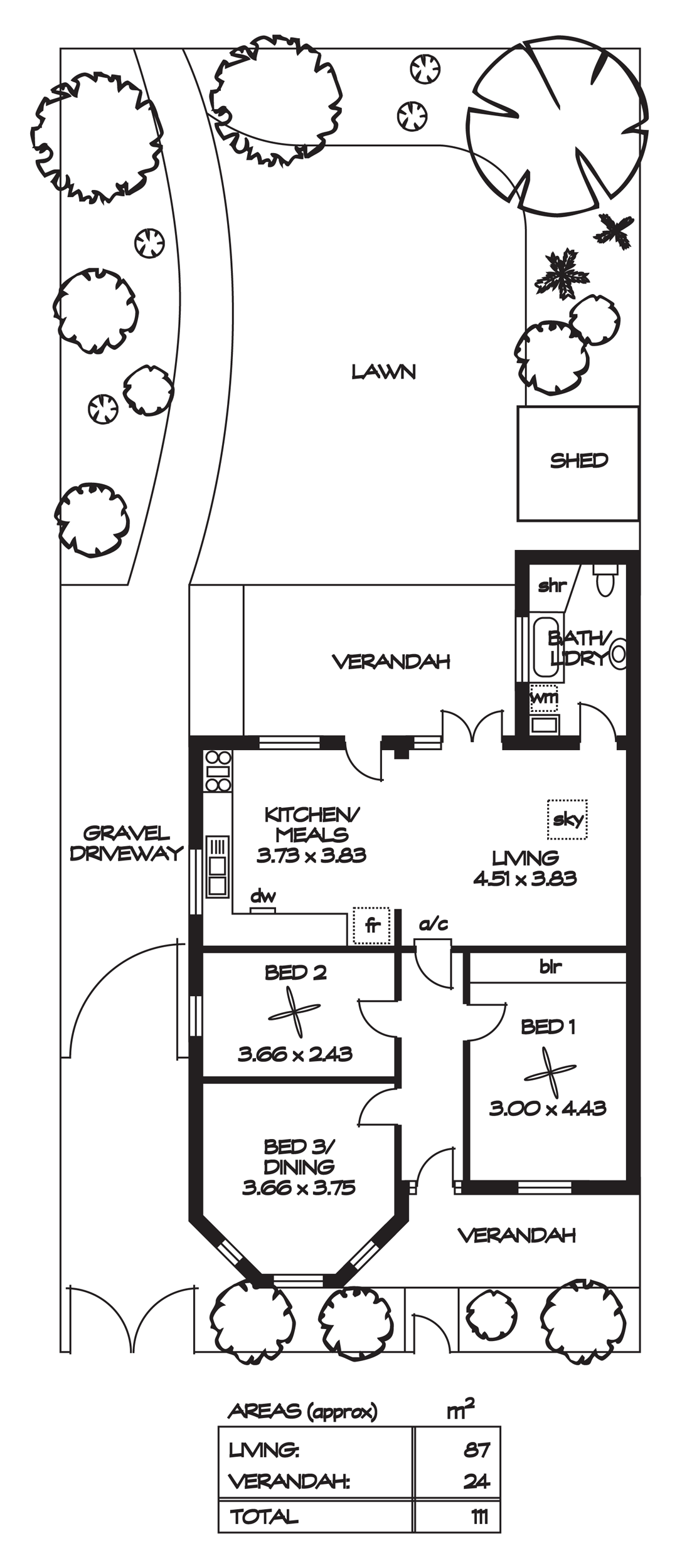
Polished floorboards, high skirtings, ornate cornices and 3.1m high ceilings with ornate ceiling roses are the order of the day in this built stone fronted, solid brick character home.

A classic bullnose verandah and sandstone frontage is the street presence, nicely tucked in, amongst other simular character homes. A stunning gallery hallway greets us upon entering and the character features flow right through the home. An amazing bay windowed front room being the main prize.

The home consists of 3 bedrooms (or 2 bedrooms and a formal lounge / dining), all with polished timber floors and high ceilings. Bedrooms 1 & 2 boast ceiling fans, bedroom 1 has built-in robes.

The kitchen / living area overlooking a verdant backyard with mature plants is neat and tidy, in fact a very comfortable family living space with its neutral colour scheme and timber finishes. The kitchen is large enough to eat-in. Modern stainless steel appliances are a welcome upgrade. A carpeted lounge is adjacent where a skylight ensures a bright light environment and french doors open to the rear yard.

A full bathroom and laundry with separate shower and bath, plus toilet and laundry trough take care of the wet area requirements. Clean bright tiles create a well balanced bathroom and feature sensor floor lighting adds a touch of class.

Outdoors offers a clear covered pergola, ideal for alfresco entertaining, overlooking a lush backyard with established garden beds and mature plants. Create your own piece of paradise in the busy city, with this evergreen back yard as a great foundation for your future projects.
At a glance:

* Bullnose veranda and huge bay window frontage
* Quiet street amongst other simular homes
* 2 or 3 bedrooms with formal dining / lounge option
* Ceiling fans to bedrooms 1 & 2
* Built-in robes in bedroom 1
* Polished floorboards
* 3.1m high ceilings
* Ornate cornices
* Large eat-in kitchen with modern stainless steel appliances
* Large living room adjacent kitchen with French doors and skylight
* Reverse cycle split system air conditioner to the living room
* Outdoor living pergola overlooking generous sized lush backyard
* Full bath / laundry with separate shower and bath plus sensor floor lighting
* Valuable off street parking for 2 vehicles
* Handy tool shed for garden storage
* Instant gas hot water service

Perfectly sited in Adelaide's south eastern residential precinct in a quiet low traffic street, the perfect inner city residential location. Walk to the restaurants, hotels and eateries of Hutt Street and beyond and enjoy the cosmopolitan lifestyle that Adelaide city eastern living has to offer.
Quality colleges and public schools are within easy reach and the parklands belt is your playground.

Get in touch

We'd love to hear from you

If you're interested in looking at properties around the area, or want the latest information on the market in your neighbourhood, we'd love to hear from you. 

15 Ada Street Adelaide 5000, South Australia
Back to top