We bring market insights, news and lifestyle updates direct to your inbox.

Sign up to our newsletters

See the properties 
defining luxury in the 
Luxury Homes magazine

Property main details

6
6
4

Home For Sale

  • Sold
  • House

Specifications

  • Property Type
    House
  • Land
    2381 m2

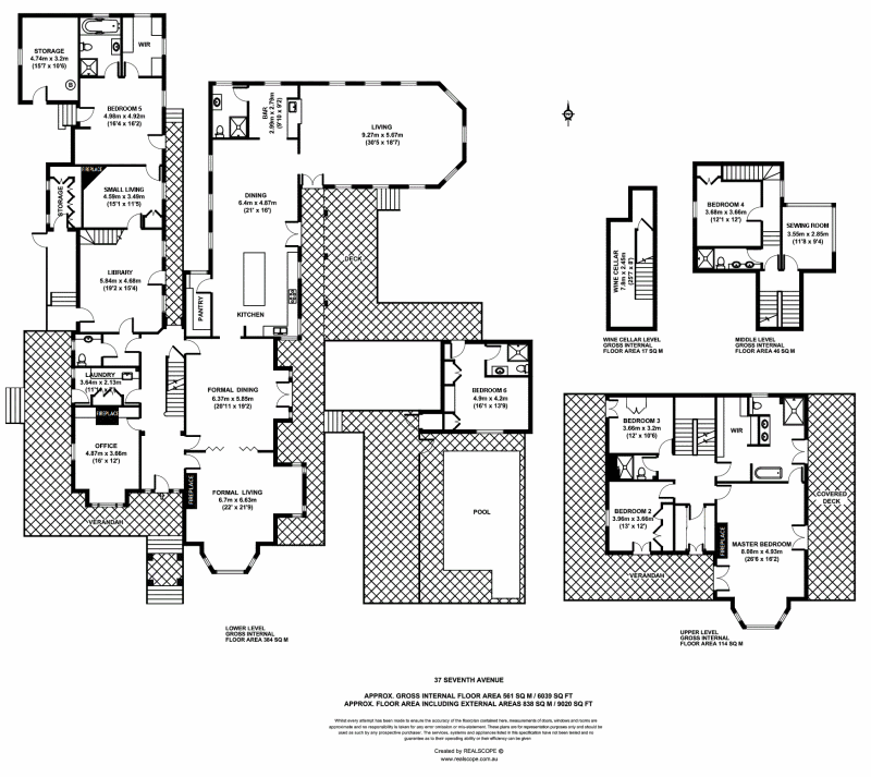
Boothville - An Iconic Residence, A Privileged Lifestyle

A true Brisbane landmark, Boothville has been extensively and respectfully renovated to create an elegant and stately residence of a caliber seldom available to purchase.

Built in 1887 for the Queensland National Bank to provide residential accommodation for their managers, it was purchased by William Booth, the son of the founder of the Salvation Army, in 1923. Less than twelve months later, the Salvation Army Mothers Hospital moved to the property and the house was renamed Boothville. For nearly 7 decades thereafter the home functioned as a maternity hospital - chances are, you will know of someone who was born there.

In 2012, Boothville presents as a large happy family home high on a hill in the central suburb of Windsor. Enjoying sweeping views across Brisbane, the home continues to command attention. Built in a time of servants quarters and grand reception rooms, the quality of the original dwelling is evident in the finely crafted timber work, the ornate plaster ceilings and cornicing.

It is the exquisite craftsmanship, attention to detail and a sense of history which set Boothville apart from other properties; the fireplaces are the work of artisans and incorporate intricate mosaic detailing. The stone entry vestibule welcomes visitors to the house at the foot of finely carved timber stairs, the cedar balustrade is one beautiful piece of timber. Large folding cedar doors separate the original parlor from the formal dining room, and the cellar is fit for a wine connoisseur.

The house is a functioning home to a large family and reflects love and laughter with no compromises on contemporary lifestyle.

Boothville is offered for sale by Tender.
Private buyer inspections are invited.
Tender document; reiq house and land contract ninth edition
Tender closes Friday 2nd March 2012, 6.00pm
Documents to Ray White Paddington - 181 Given Terrace Paddington

Features include:
6 - 8 beds
6 bathrooms
A library
A formal office
A sewing room
A bar
Stunning family kitchen
Walk in pantry
Informal family room
Original birthing room now freestanding guest house
Marble detail in the bathrooms and kitchen
Ducted air-conditioning
Ionised pool
Foxtel connection points
Rain Water tanks
Pump reticulated hot water - fast hot water guaranteed
Original outer storage rooms
Lower level basement area - perfect wine cellar
Wrapped in generous verandahs
Barbeque deck area adjacent to family living areas
Extra level grassed land perfect for a game of cricket.

Do not miss out on the opportunity to secure yourself one of Brisbanes premiere residences.

Rates; $1798.27 gross


Further Historical reading;
Heritage Trail - Windsor, Brisbane City Council booklet, 1991
David Teague, Windsor Council Chambers 1897-1997, Windsor, Windsor and Districts Historical Society, 1997


Sustainability Declaration available on request

Get in touch

We'd love to hear from you

If you're interested in looking at properties around the area, or want the latest information on the market in your neighbourhood, we'd love to hear from you. 

37 Seventh Avenue WINDSOR 4030, Queensland
Back to top