We bring market insights, news and lifestyle updates direct to your inbox.

Sign up to our newsletters

See the properties 
defining luxury in the 
Luxury Homes magazine

Property main details

3
1
1

Home For Sale

  • Sold
  • House

Specifications

  • Property Type
    House

PRICE REDUCED - THIS PROPERTY MUST BE SOLD !!

Functional Queenslander on city fringe

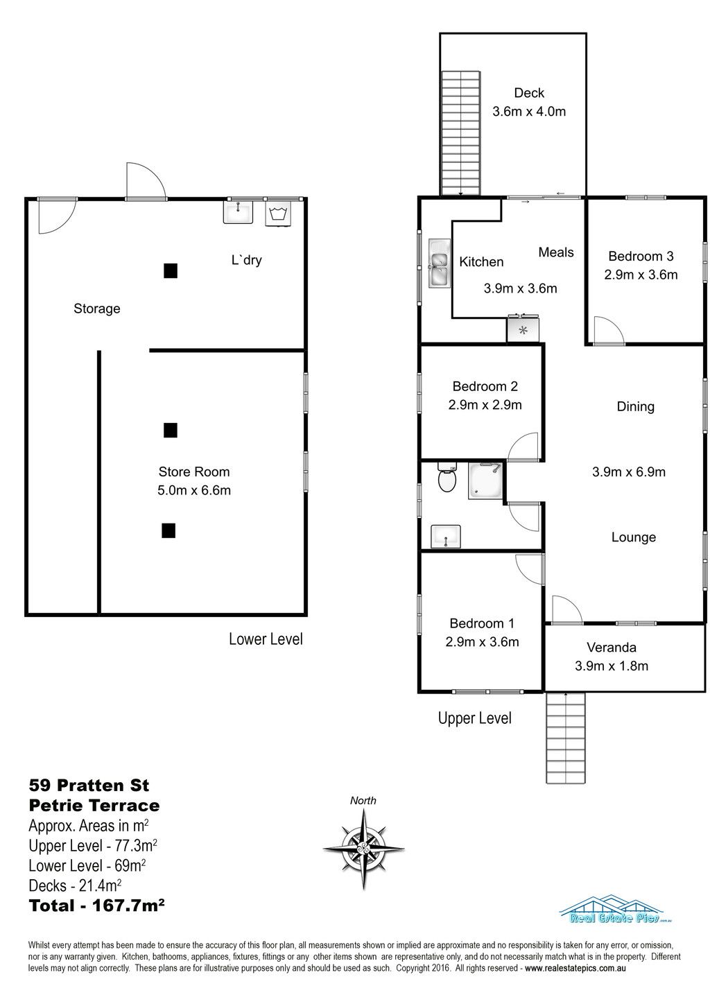
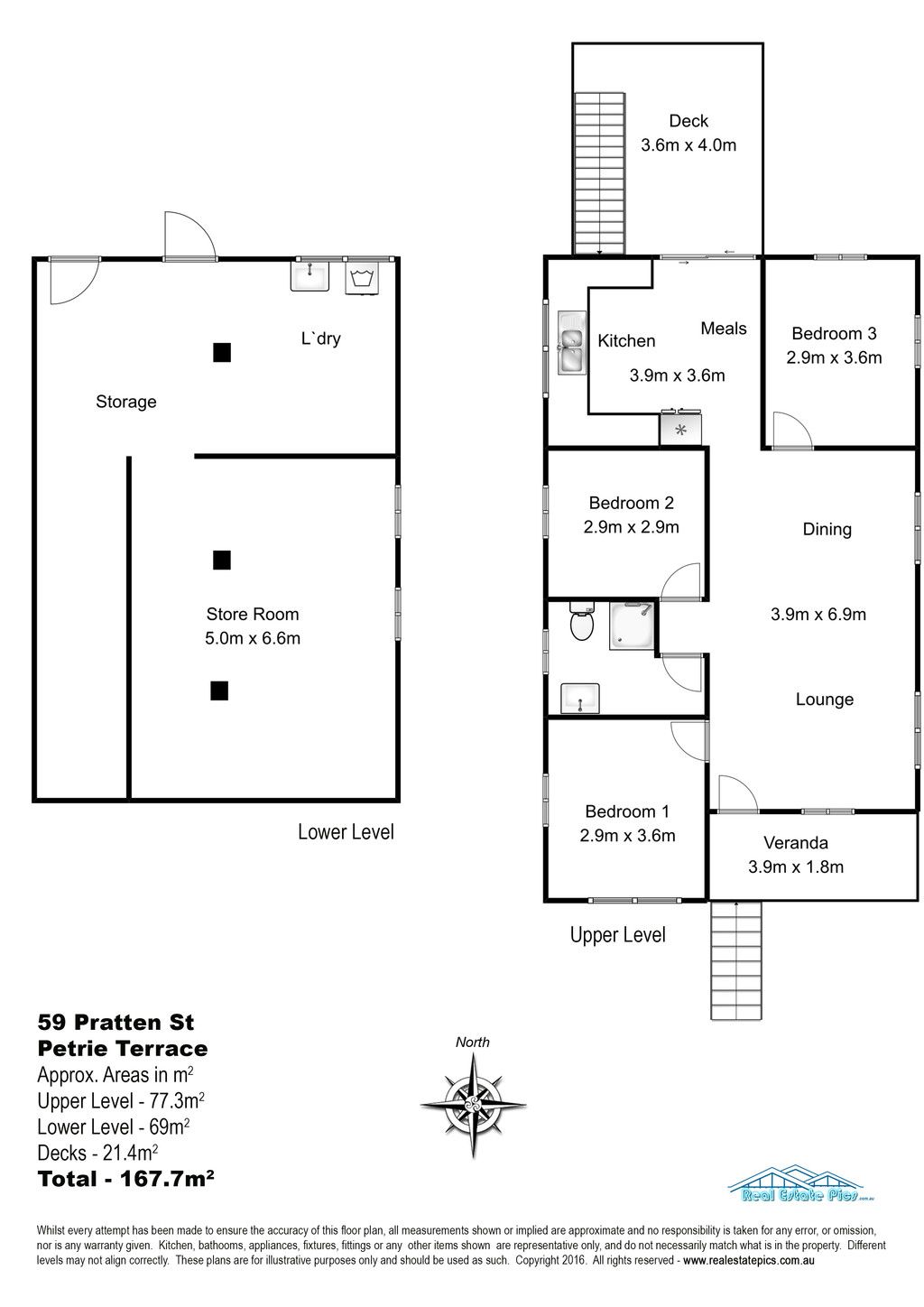
This gorgeous Queenslander located in a quiet street in historic Petrie Terrace is just minutes from the centre of Brisbane. The property, situated on 304m2 provides off street parking, a rarity in inner Brisbane!! The front and rear gardens are neat and easily maintainable as well as fully fenced, with the front garden bounded by the iconic, but cute white picket fence.

Stepping up into the property and onto the front veranda, pause and enjoy the view. Entry through the front door reveals an expansive, air conditioned, open plan living area with polished floor boards throughout. The three good sized bedrooms all feature VJ walls and the modern bathroom is neat and tidy. Towards the back of the property is the kitchen and dining area which roll out onto a generous rear deck through double glass sliding doors, offering views of the Petrie Terrace district and mountains to the West. From the rear deck, stairs lead to the laundry and a huge underneath storage area which could, easily be converted into a multi-purpose area.

This property is located within a short stroll of:
• Caxton Street precinct, Barracks & Paddington cafes & restaurants
• Suncorp Stadium
• Roma Street Parklands
• Brisbane CBD
• Bus and train stations
• Brisbane's most elite schools and universities.
Other features include
• 4000 Postcode
• Off street Parking
• Currently leased at $600 per week

This property is one not to missed, the inner west Brisbane market is extremely strong and offers the astute buyer a great investment with strong capital growth expected.

Get in touch

We'd love to hear from you

If you're interested in looking at properties around the area, or want the latest information on the market in your neighbourhood, we'd love to hear from you. 

59 Pratten Street Petrie Terrace 4000, Queensland
Back to top