We bring market insights, news and lifestyle updates direct to your inbox.

Sign up to our newsletters

See the properties 
defining luxury in the 
Luxury Homes magazine

Property main details

4
3
2

Home For Rent

  • Leased
  • House

Specifications

  • Property Type
    House

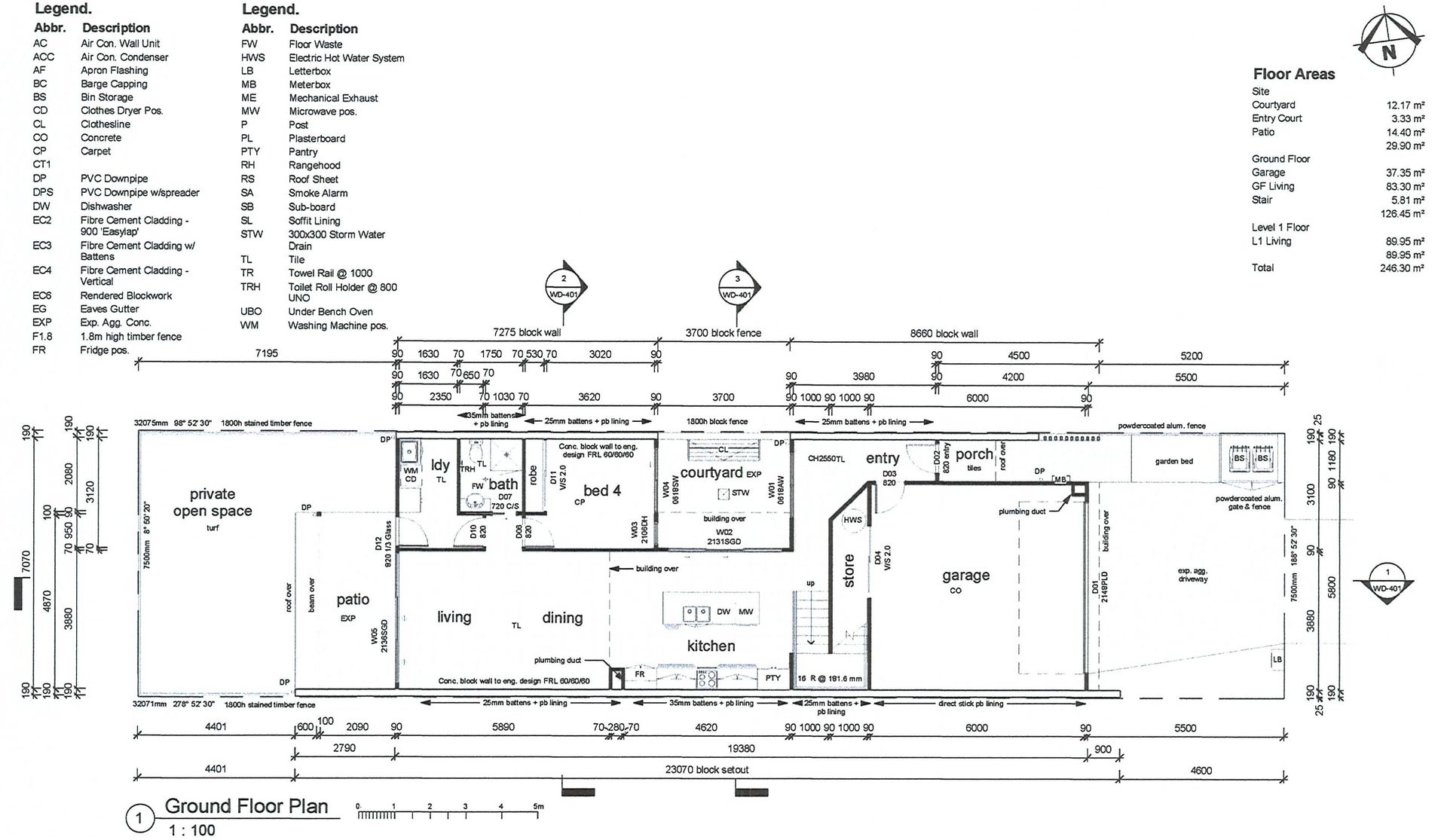
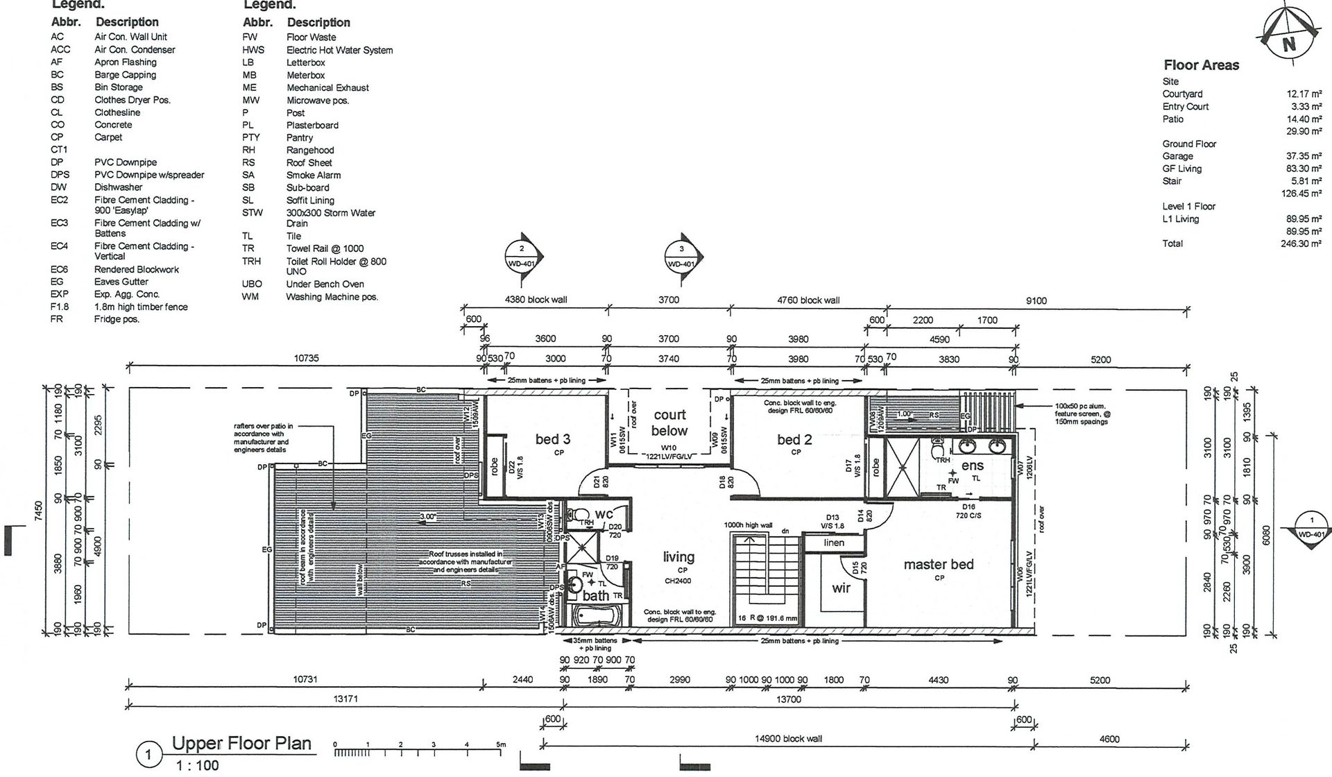
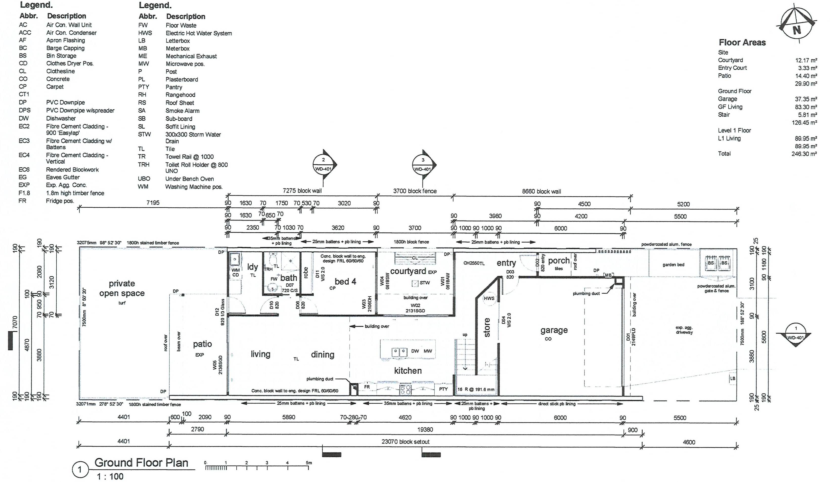
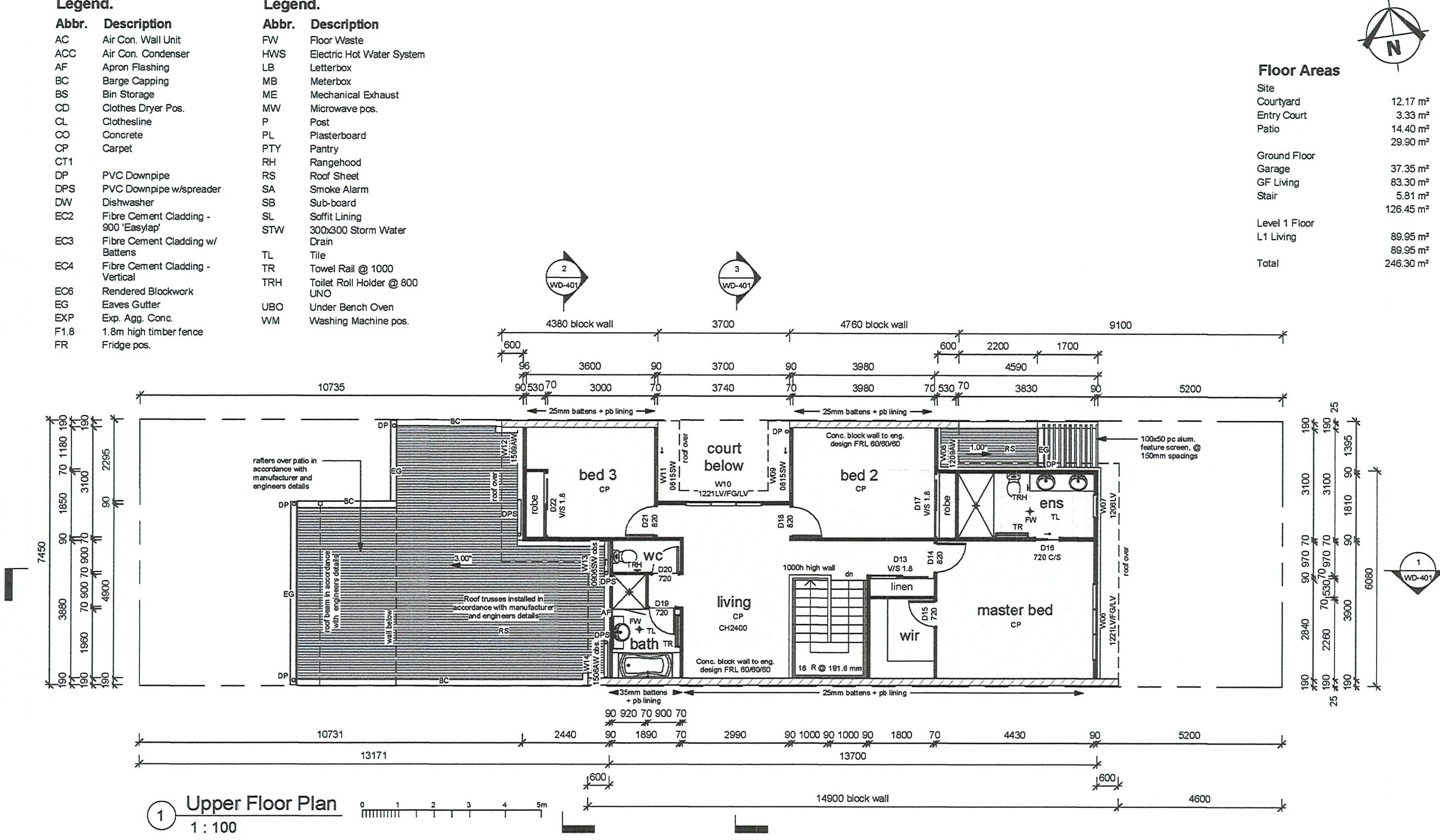
Sunshine Cove - I am not like the rest

The Sunshine Cove Estate - I'm sure you have heard of me, and if you haven't you better come and check me out.

- Two storey home
- Recently built, modern and low maintenance
- Main bathroom, ensuite and extra bathroom downstairs
- 3 bedrooms upstairs and a second living space or study
- Remote controlled double lock up garage
- Vacant land across the road, so a better view than most
- Large storage area in the garage
- Video intercom at the front door
- Located with visitor parking just across the road
- Pets on application
- 3 Wels water rated, tenants pay for water use

HOW TO APPLY:
Once you have inspected the property, select the "Apply Online' button on Realestate.com.au or apply directly on 1form.com. 1Form is an online tenancy application system that makes applying for rental properties quick and easy. You will be sent the inspection code required to apply after viewing the property.

Get in touch

We'd love to hear from you

If you're interested in looking at properties around the area, or want the latest information on the market in your neighbourhood, we'd love to hear from you. 

26 St Quentin Avenue Maroochydore 4558, Queensland
Back to top