We bring market insights, news and lifestyle updates direct to your inbox.

Sign up to our newsletters

See the properties 
defining luxury in the 
Luxury Homes magazine

Property main details

Commercial

  • Leased
  • Retail

Specifications

  • Property Type
    Retail
  • Building
    484 m2
  • Land
    993 m2

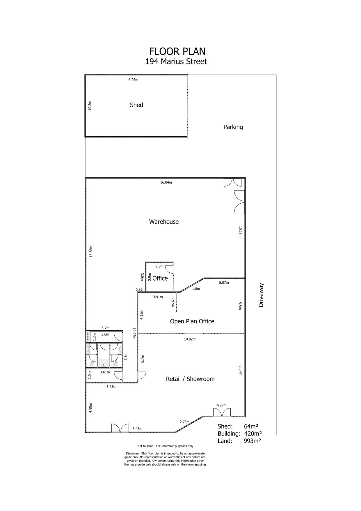
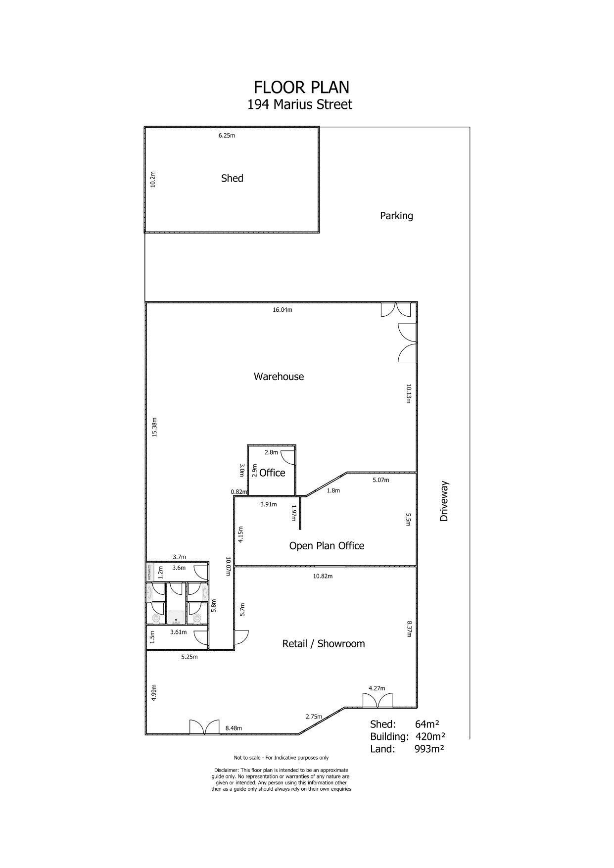
High Exposure Retail/Office Location

An opportunity has come up to relocate your business or start your business on a high exposure location on Marius Street which is adjacent to the Tamworth CBD!

Features Include:

* Fantastic highway exposure
* Ideal for either retail with its exposure or office being within the Tamworth CBD.
* A total floor area of 420m² building area plus an additional 64m² of shed area*
* Front display area or showroom
* Car parking at rear
* Storeroom/loading area at rear of property
* This property Neighbors one of Tamworth's most successful car yards as well as has a Caltex service station is located across the street

Not Familiar with Tamworth? Visit Destination Tamworth's Website to find out more! http://www.destinationtamworth.com.au/

Get in touch

We'd love to hear from you

If you're interested in looking at properties around the area, or want the latest information on the market in your neighbourhood, we'd love to hear from you. 

194 Marius Street Tamworth 2340, New South Wales
Back to top