We bring market insights, news and lifestyle updates direct to your inbox.

Sign up to our newsletters

See the properties 
defining luxury in the 
Luxury Homes magazine

Property main details

5
5
2

Home For Sale

  • Sold
  • House

Specifications

  • Property Type
    House

Magnificent oceanfront residence with panoramic views

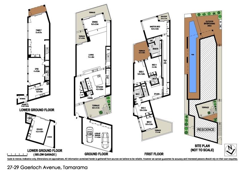
Positioned on the peninsula of Gaerloch Avenue above Tamarama Beach and along the iconic Coastal Walk, this stunning contemporary home is a rare sanctuary offering 180 degree panoramic ocean and beach views. Across three floors of unique living spaces, including a luxurious master bedroom retreat, this magnificent family residence offers perfect beachside living with inspiring design in an incredible location.

Set behind a large double garage, the secluded and well-appointed living spaces stretch out onto a wide balcony with a breathtaking outlook over Tamarama Beach. Upstairs, the master bedroom features a glamorous walk-through wardrobe and sumptuous ensuite, and boasts the property's most spectacular ocean views from a private terrace. Four additional bedrooms feature cleverly designed adjoining ensuites, spectacular views from elevated terraces and a spacious shared study zone. The garden level features a sheltered outdoor entertaining and barbecue area; a home gymnasium and 25-metre lap pool complete a resort-inspired lifestyle.

• Elegant contemporary oceanfront home
• Integrated living, dining and kitchen areas with breathtaking ocean views
• Outstanding master bedroom with luxurious ensuite and wardrobe
• Elevated bedroom balcony views over Tamarama Beach and Mackenzies Bay
• Extensive poolside entertaining area
• Lap pool and gymnasium, large double-space garage
• Sun bathed courtyard extending from kitchen, generous storage areas

Ray White Double Bay - The Team of Professionals You Deserve
Our recommended loan broker www.loanmarket.com.au/daniel-pym

Get in touch

We'd love to hear from you

If you're interested in looking at properties around the area, or want the latest information on the market in your neighbourhood, we'd love to hear from you. 

27-29 Gaerloch Avenue Tamarama 2026, New South Wales
Back to top