We bring market insights, news and lifestyle updates direct to your inbox.

Sign up to our newsletters

See the properties 
defining luxury in the 
Luxury Homes magazine

Property main details

2
2
1

Home For Sale

  • Sold
  • Townhouse

Specifications

  • Property Type
    Townhouse

Convenient Quiet Location

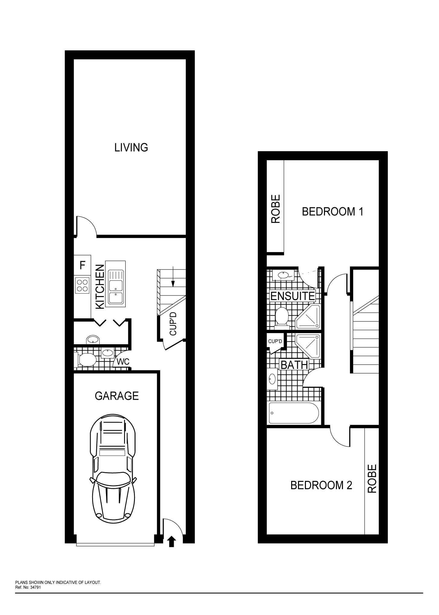
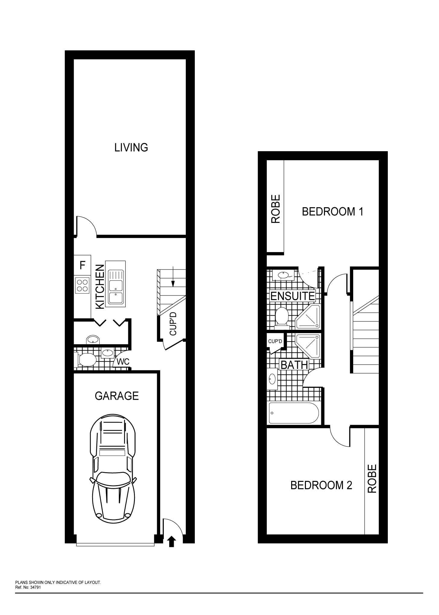
This near-new 2 bedroom townhouse is located with an easy access to Canberra's amenities and the airport. It will make a great addition to your investment portfolio!

All your modern fixtures, fittings and features are on display when you view this lovely townhouse. It includes internal access from the garage with remote entry, convenient on a rainy day.

Once inside you will be impressed with the modern kitchen complete with stainless steel appliances including a dishwasher. It is just the place to prepare an evening meal while you converse with your family in the living room.

The bedrooms are large and located upstairs, positioned on either side of the bathroom (provided for the 2nd bedroom) for added privacy. Both bedrooms include floor to ceiling built in robes.

An ensuite is featured in the master bedroom which also provides plenty of room for bedroom furniture.
In addition to the upstairs separate bathroom, a handy study nook is adjacent, just the position to set up your computer.

Other features worth noting include a convenient powder room located downstairs and ducted reverse cycle heating and cooling for assured year round comfort. Additional storage is located in the cupboard under the stairwell while washing is a breeze from the internal Swiss European style laundry.

Outside you can enjoy a BBQ with friends in the easy-care courtyard. It is has A sunny North facing aspect, perfect for informal entertaining with convenient access to the kitchen.

This is just the home to jump in to the property market to as an addition to your investment portfolio. For your convenience, the owner has provided a very recent depreciation schedule and building report.

• 2 Bedroom ensuite townhouse
• Built-in Robes in both bedrooms
• Modern Kitchen with stainless steel appliances
• Dishwasher
• Internal Swiss European style Laundry
• Shower and bath in bathroom
• Additional 3rd toilet downstairs
• Ducted reverse cycle heating and cooling
• Internal access
• Remote entry to the Garage
• Easy-care courtyard
• Recent depreciation schedule and building report.

* From 1st July, 2017 first home buyers will have stamp duty abolished for properties up to $650,000. This is for established & new properties *

Leased to 11 January 2018 at $390 per week

Handy easy access location to:
• Canberra airport
• Fyshwick retail
• Food establishments
• Public transport
• Sporting club and restaurant
• Services NSW (RTA)

Get in touch

We'd love to hear from you

If you're interested in looking at properties around the area, or want the latest information on the market in your neighbourhood, we'd love to hear from you. 

7/26 Carrington Street Queanbeyan East 2620, New South Wales
Back to top