We bring market insights, news and lifestyle updates direct to your inbox.

Sign up to our newsletters

See the properties 
defining luxury in the 
Luxury Homes magazine

Property main details

3
1
1

Home For Sale

  • Sold For $660,000
  • House

Specifications

  • Property Type
    House
  • Land
    746 m2

East Orange Location

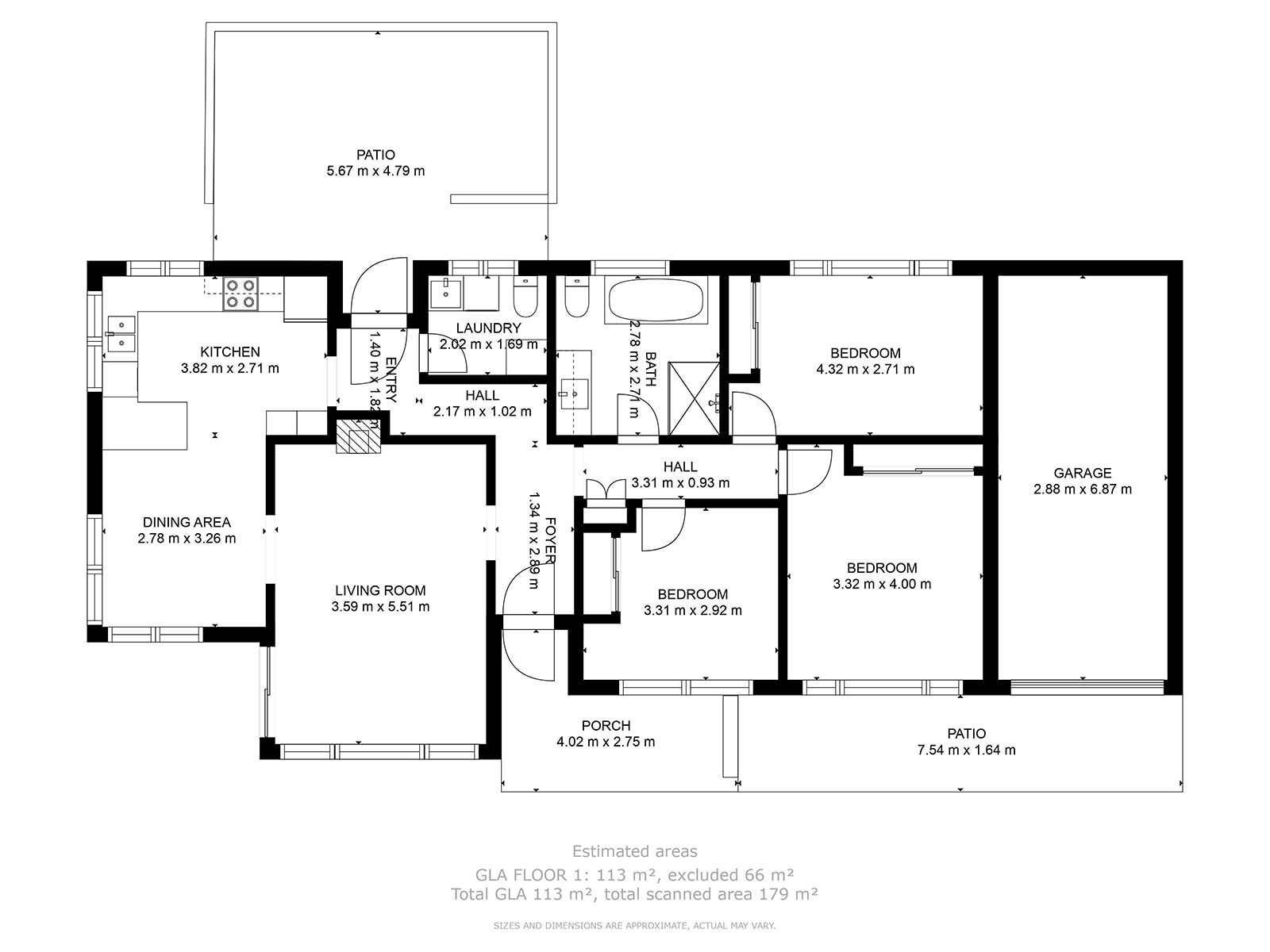
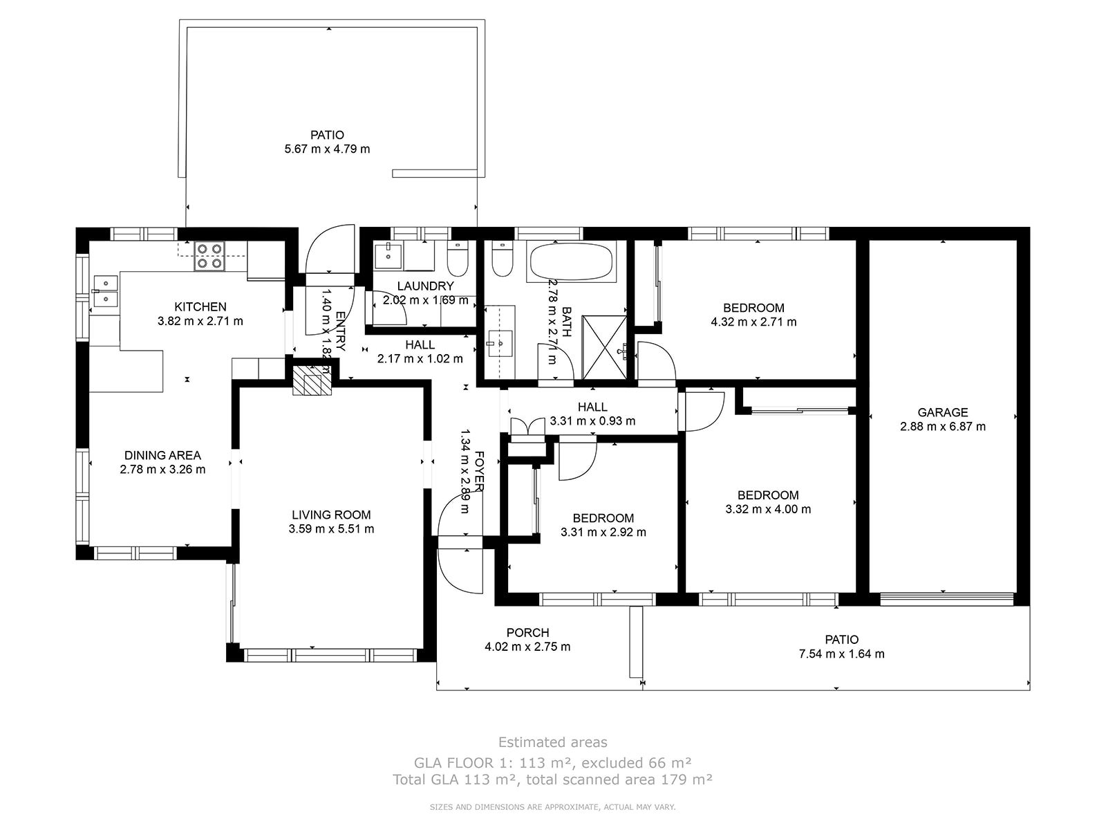
As neat as a pin, and within walking distance to medical centers, schools, parks, and the CBD, you will be hard-pressed to find a property that represents better value in this price bracket. The current owners have tastefully renovated and modernised this sturdy brick veneer residence that would make for a sound investment or a fantastic place to live for a growing family, or first home buyer.
Spend the warmer months catering to family and guests under the north-facing entertaining area which overlooks the low maintenance rear yard

• 3 generous sized bedrooms all with BIR
• Freshly renovated bathroom fitted with separate bath and shower
• Second toilet in the laundry
• Gas heating with reverse cycle split system
• Set on approx 746sqm block

Auction: Friday 8th July, 10.30am
The Auction Centre
152 William Street, Bathurst

For more information, or to book a private inspection please contact James Taylor on 0457792800 or Brooke Tonkin on 0400286541.

Disclaimer: All information contained herein is gathered from sources we believe reliable. We have no reason to doubt its accuracy, however, we cannot guarantee it.

Get in touch

We'd love to hear from you

If you're interested in looking at properties around the area, or want the latest information on the market in your neighbourhood, we'd love to hear from you. 

6 James Sheahan Orange 2800, New South Wales
Back to top