We bring market insights, news and lifestyle updates direct to your inbox.

Sign up to our newsletters

See the properties 
defining luxury in the 
Luxury Homes magazine

Property main details

Commercial

  • Leased
  • Offices

Specifications

  • Property Type
    Offices
  • Building
    267 m2

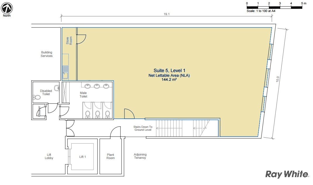
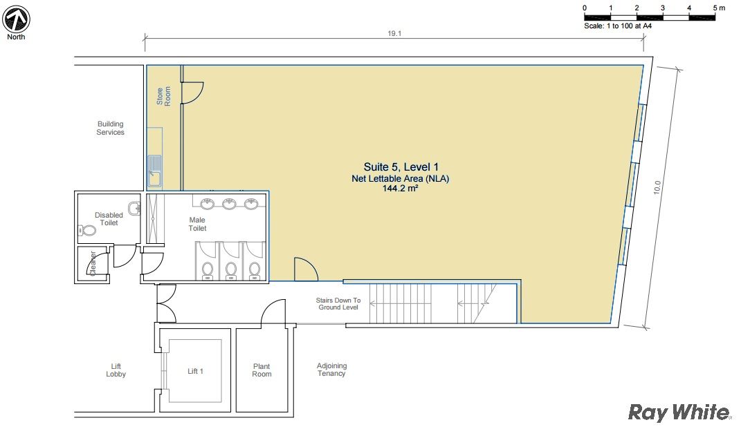
DA APPROVED EDUCATIONAL FACILITY

This large top level office is situated in the heart of the Concord Food and Retail sector offering:
- 144 sqm floor area with new fit-out and cabling.
- East facing windows with ample natural light.
- Internal kitchenette with storage.
- Ample Shared parking via rear and underground car park, with lift access.
- Shared bathroom facilities.
- Positioned above Coles Supermarket and Commonwealth Bank, providing consistent high levels of foot traffic..
For more information or to arrange an inspection please contact:
For more information please contact the below agents

Mark Ammoun - 0410 532 733
Director.
mark.ammoun@raywhite.com
Ray White Concord Commercial & Industrial Division

Garry Kelly- 0418 230 000
Principal
garry.kelly@raywhite.com.au
Ray White Concord Commercial & Industrial Division

Get in touch

We'd love to hear from you

If you're interested in looking at properties around the area, or want the latest information on the market in your neighbourhood, we'd love to hear from you. 

Suite 5/48 Majors Bay Road Concord 2137, New South Wales
Back to top