We bring market insights, news and lifestyle updates direct to your inbox.

Sign up to our newsletters

See the properties 
defining luxury in the 
Luxury Homes magazine

Property main details

1
1
1

Home For Sale

  • Sold For $385,000
  • House

Specifications

  • Property Type
    House

Fabulous Apartment in a Prime Location!!

Offers Invited!

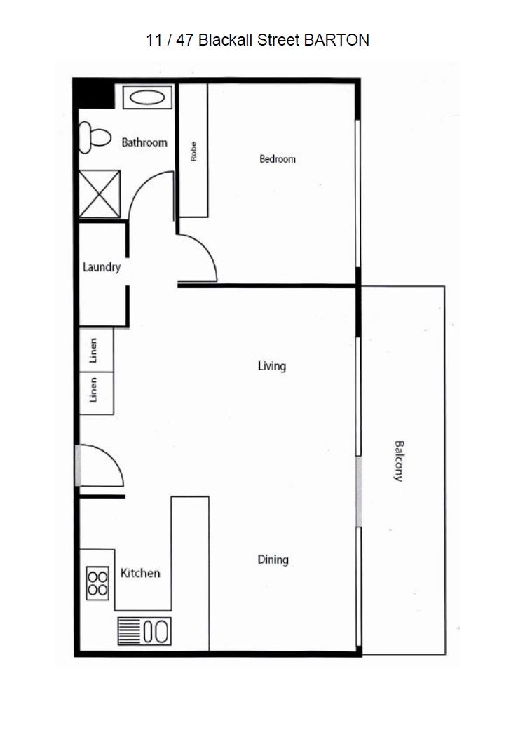
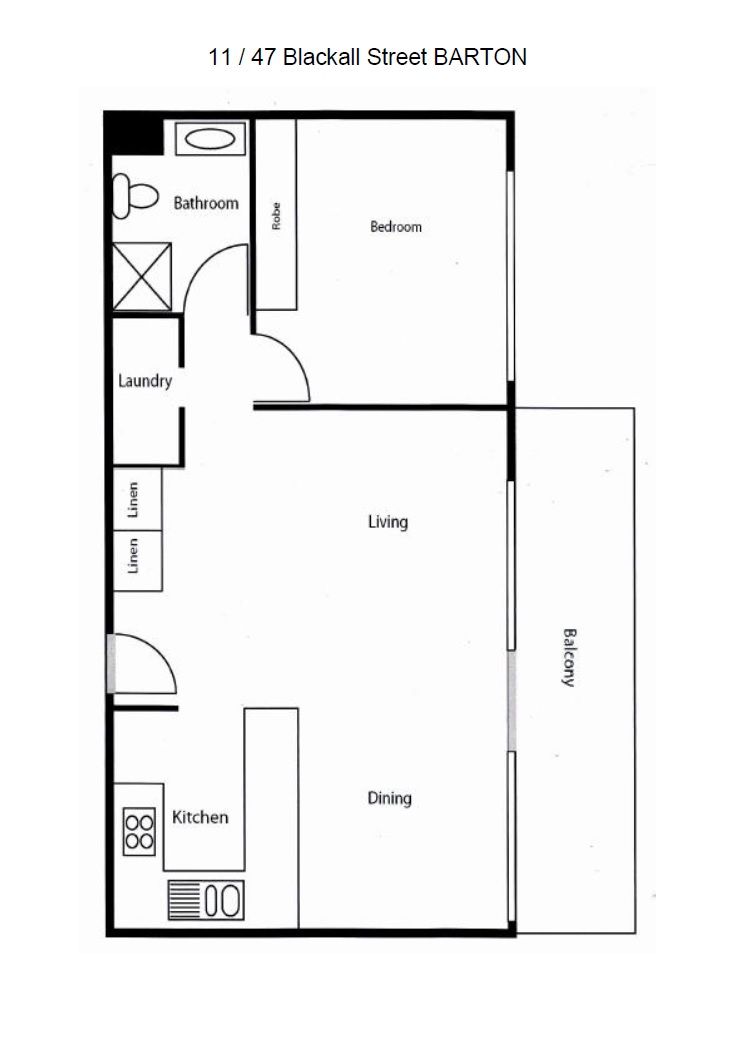
This is an exceptionally maintained sun-filled executive apartment set on the ground level of the secure and prestigious Landmark complex on Blackall Street Barton and located on the shores of Lake Burley Griffin. It is just a short stroll to Telopea Park, Kingston Foreshore, Manuka Village, key Government departments, the National Gallery and other iconic landmarks.

The apartment itself is classic in design and offers generous light filled open plan interiors, with modern fitting and fixtures. The kitchen is complete with Smeg appliances including the dishwasher. The large master bedroom includes a full sized built in robe. The apartment features a separate, spacious European laundry to maximise space and convenience. Ducted reverse cycle air-conditioning provides comfort all year round.

The complex features one of the best landscaped private courtyards available in the Triangle, with BBQ facilities and an extremely well equipped gymnasium in the complex. Wheelchair accessible as well as secure, the complex features a ramp to the building, swipe access to the basement car park with a lift up to the apartment and intercom access for guests.

Quality tenant in place on a fixed term lease at $430.00 per week.

Features include:

Secluded ground floor apartment
Light filled open plan living areas
Master bedroom with built in robe
Ducted reverse cycle air-conditioning
Spacious European laundry
Terrace overlooking the beautiful gardens
Apartment is networked for data and phone
Secure building with intercom at entry for visitors
Wheelchair accessible building
Lift access to secure care park & Separate storage cage
Excellent gymnasium facilities in the complex
Manicured gardens and BBQ in the common areas
Superb location in Parliamentary Triangle
Close to Manuka, Kingston, the Lake and the City
Body corporate fees: approx $848.18 per quarter
Currently rented on a fixed term lease for $430 per week

Get in touch

We'd love to hear from you

If you're interested in looking at properties around the area, or want the latest information on the market in your neighbourhood, we'd love to hear from you. 

11/47 'Landmark' Blackall Street Barton 2600, Australian Capital Territory
Back to top