We bring market insights, news and lifestyle updates direct to your inbox.

Sign up to our newsletters >

See the properties 
defining luxury in the 
Luxury Homes magazine

Property main details

2
2
2

Home For Sale

  • Sold
  • Under Offer
  • House

Specifications

  • Property Type
    House

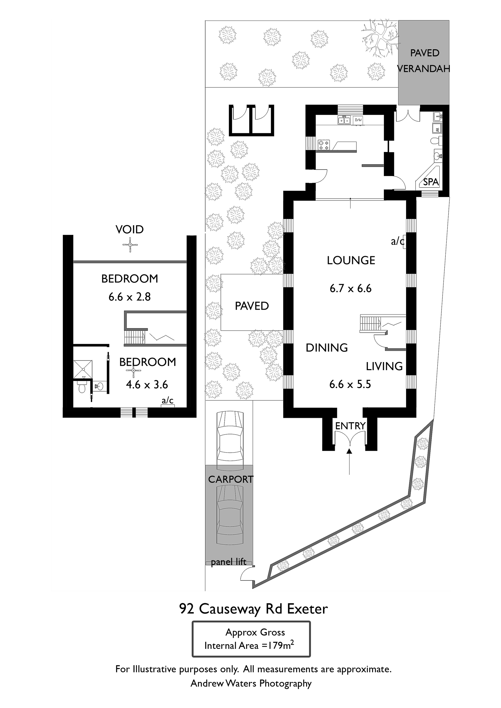
EXETER HALL Circa 1863

Luxurious contemporary finishes blend with the original rustic features to create a chic urban retreat in this Architect Designed Church conversion.

Crafted to maximise natural light and air flow across a fluid open plan living area, the vaulted ceilings with their original timber lining and exposed beams create a classical feel to this expansive area and also provide a private cocoon of personal space in the mezzanine bedroom and studio.

Renovated to a high standard, incorporating an up to the minute kitchen with new quality appliances including stainless steel dishwasher and upright five-burner gas stove. Other modern conveniences include two palatial bathrooms (one with large spa bath), two air conditioning systems, 5KW photovoltaic solar panels and much more.

Another feature of this amazing transformation is the professionally designed private botanic garden surrounding the main building, each area of the garden has a different character. Depending on your mood, you can take a cup of tea in the shade or sit out in the sun with a gin and tonic. An undercover out door entertaining area is situated to the rear of the building taking full advantage of the garden.

Other features include spectacular Baltic pine floors, secure off-street car parking for two vehicles with remote control access, storage areas and much more. Located within close walking distance of public transport, Semaphore Road shopping and cafes, The Port and the Beach.

Embrace a lifestyle of absolute convenience from this amazing residence perfectly balancing space and privacy.

Please note: the owner's collection of furniture and furnishings are also being sold giving potential purchasers a unique opportunity to literally own this stunning home as it is now presented.

Get in touch

We'd love to hear from you

If you're interested in looking at properties around the area, or want the latest information on the market in your neighbourhood, we'd love to hear from you. 

92 Causeway Road EXETER 5019, South Australia
Back to top