We bring market insights, news and lifestyle updates direct to your inbox.

Sign up to our newsletters >

See the properties 
defining luxury in the 
Luxury Homes magazine

Property main details

3
2
2

Home For Sale

  • Sold
  • Townhouse

Specifications

  • Property Type
    Townhouse

Brand New - Townhouse's - Off the Plan - Only 2 Available

These spacious, architect designed, two storey townhomes are due for completion early 2023.

Located just 600 meters from Westfield Chermside, conveniently positioned with great shopping, restaurants, cinemas, supermarkets, transport and entertainment within walking distance. Across the road from the Burnie Brae Park, walking tracks, council provided gym equipment and dedicated fitness circuit.

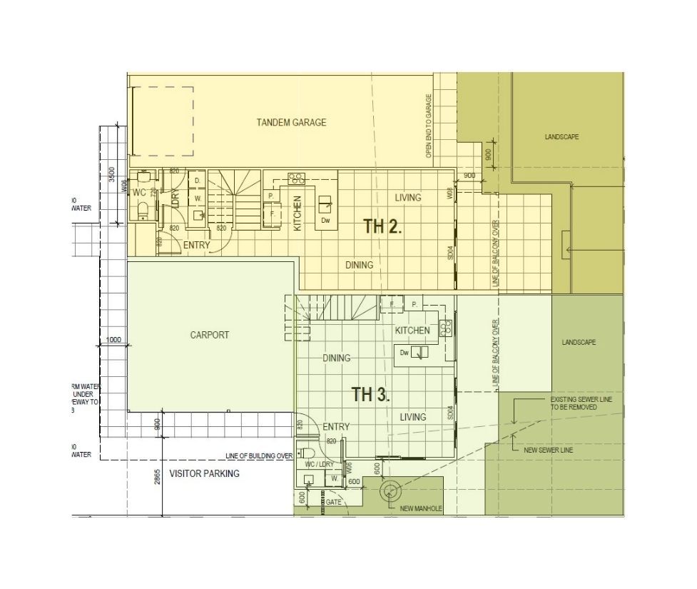
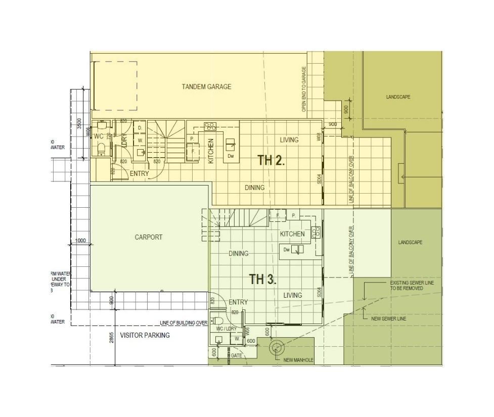
The property features:
• 3 Bedrooms,
• 2.5 Bathrooms,
• 2 Car garaging,
• Ducted Air Conditioning,
• Light coloured timber style flooring downstairs.
• Quality carpet to stairs, bedrooms and upper level living areas.
• Kitchen- Off white 2 pack painted profile finish
• Bosch kitchen appliances including induction cooktop, dishwasher, oven, and range hood.
• Solar power.
• Unit 2 has an office area/ small tv area upstairs.
• Unit 3 has a large second tv area.
• Landscaped Courtyards

This property is situated within an exclusive development with only 3, ideal for first home buyers, investors or those seeking to down-size to a low maintenance lifestyle in a very convenient location.

Walking and cycling tracks, the Prince Charles & St Vincent's Hospitals are also situated nearby.

Body Corporate to be advised.

PHONE CINDY McGRATH OF RAY WHITE CHERMSIDE FOR VIEWINGS AND FURTHER DETAILS ON 0407 639 561. Disclaimer: This property is being sold without a price and therefore a price guide cannot be provided. The website may have filtered the property into a price bracket for website functionally purposes.

Get in touch

We'd love to hear from you

If you're interested in looking at properties around the area, or want the latest information on the market in your neighbourhood, we'd love to hear from you. 

Lot 2 & 3/39 Kuran Street CHERMSIDE 4032, Queensland
Back to top